ライオンズマンション新大阪第6 1109号室(11階/3LDK)の賃貸物件(賃貸マンション)
大阪府大阪市淀川区にあるライオンズマンション新大阪第6 1109号室はバス・トイレ別、シューズボックス、ルーフバルコニー、2階以上、都市ガスなどが特徴です。最寄り駅の大阪メトロ 御堂筋線新大阪駅から徒歩14分です。ライオンズマンション新大阪第6 1109号室の詳細はミニミニ FC江坂店までお気軽にお問い合わせください!
情報更新日:
次回更新予定日:
※次回更新予定日について:お店側では順次空室確認を行っていますが、次回更新予定日までに空室確認が行えない場合には、この物件情報は自動的に削除されます。
ライオンズマンション新大阪第6 1109号室の賃貸物件部屋概要
家賃 |
12万円
初期費用を |
|---|---|
共益費 |
9,900円
入居可能時期 |
敷金/礼金 |
1ヶ月 / 1ヶ月 |
保証金/ |
- / - |
最寄駅 |
|
所在地 |
大阪府大阪市淀川区木川東 |
部屋番号 |
1109号室 |
間取り |
3LDK |
専有面積 |
56.16㎡ |
築年数 |
1988年10月(築38年) |
階数 |
11階部分(地上15階地下1階建) |
方位・位置 |
南 / その他 |
物件種別 |
賃貸マンション |
構造 |
SRC |
駐車場 |
- |
小学校学区 |
木川小学校 |
中学校学区 |
十三中学校 |
他の空き部屋 |
1503号室 ***号室 |
- 学区データについて
- ※学区データは必ずしも正確とは限りません。詳細に関しては最寄店舗または各自治体の教育委員会に必ずご確認ください。
ライオンズマンション新大阪第6 1109号室の特徴
契約条件
ご契約時に保証人は不要です。
室内設備
システムキッチンが備え付けられています。
居室状況
収納スペースとして、玄関にはシューズボックスがあります。
建物設備共用部分
居室外の専有スペースとして、洗濯物を干すなどの用途として利用できるバルコニーがあります。
周辺施設
この物件の学区は、木川小学校区・十三中学校区です。
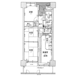
ライオンズマンション新大阪第6 1109号室の間取り
間取り:3LDK
間取詳細:3LDK
専有面積:56.16㎡
方位:南
部屋位置:その他
ライオンズマンション新大阪第6 1109号室の設備
キッチン
システムキッチン
バス・トイレ
バス・トイレ別
収納
シューズボックス
バルコニー
バルコニー
ルーフバルコニー
位置・立地
2階以上
南向き
インフラ
都市ガス
入居条件
保証人不要
ライフステージ
一人暮らしに人気の設備
カップルに人気の設備
家族に人気の設備
夫婦に人気の設備
三世代で人気の設備
こだわり
外で子どもと遊びたい
趣味
ガーデニングが好き
ライオンズマンション新大阪第6 1109号室の賃貸契約情報
毎月支払う |
家賃12万円/月共益費9,900円/月 |
|---|---|
初期費用 |
敷金1ヶ月 (12万円)礼金1ヶ月 (12万円)保証金-敷引き償却金- |
更新料 |
- |
鍵交換費用 |
33,000円 |
室内清掃費用 |
86,240円 |
初期費用:エステム安心クラブ入会金、契約事務手数料 |
16,500円 |
ランニング費用:エステム安心クラブ(月額)、更新事務手数料(更新時) |
50,490円 |
その他費用:エアコンクリーニング代(一台につき)(退去時) |
13,200円 |
駐車場料金 |
- |
損保・ |
借家賠付きの火災保険にご加入いただきます。 |
保証会社 |
加入要 保証会社利用料:エステム保証サービス 初回保証料:総賃料の50% 月額更新料:総賃料の1.5% 初回保証料は決済金預かりです |
契約期間 |
1年 |
入居可能日 |
相談 |
フリーレント期間 |
- |
取引形態 |
一般媒介 |
備考 |
- |
ライオンズマンション新大阪第6 1109号室の建物情報
建物名称 |
ライオンズマンション新大阪第6 |
|---|---|
最寄駅 |
|
所在地 |
大阪府大阪市淀川区木川東 |
階層 |
11階部分(地上15階地下1階建) |
構造 |
SRC |
築年数 |
1988年10月(築38年) |
駐車場 |
- |
小学校学区 |
木川小学校 |
中学校学区 |
十三中学校 |
1/2 外観
- 学区データについて
- ※学区データは必ずしも正確とは限りません。詳細に関しては最寄店舗または各自治体の教育委員会に必ずご確認ください。
無料この物件に問い合わせ
- ライオンズマンション新大阪第6 1109号室

-
12万円
(共益費
9,900円)
- 敷
- 1ヶ月
- 礼
- 1ヶ月
- 保
- -
- 償
- -
ライオンズマンション新大阪第6 1109号室の物件のお問い合わせ先・取り扱い店舗
ミニミニ FC江坂店
駅徒歩3分以内
駅徒歩5分以内
水曜日営業
- アクセス
-
大阪メトロ 御堂筋線「江坂駅」徒歩1分
- 住所
- 〒564-0063 大阪府吹田市江坂町1-23-34 第二梓ビル2F
- 営業時間
- 10:00~18:00
- 定休日
- なし
- 営業エリア
- 大阪府下全域
- 取引態様
- 賃貸仲介業
お問い合わせNo. HC5-4734436-1109-0241









