レオパレス明和 ***号室(1階/1K)の賃貸物件(賃貸マンション)
三重県四日市市にあるレオパレス明和 ***号室は浴室乾燥機、TVモニタ付インターホン、室内洗濯機置場、プロパンガス、保証人不要などが特徴です。最寄り駅の関西本線(JR東海)四日市駅から徒歩26分です。レオパレス明和 ***号室の詳細はハウスコム 四日市店までお気軽にお問い合わせください!
情報更新日:
次回更新予定日:
※次回更新予定日について:お店側では順次空室確認を行っていますが、次回更新予定日までに空室確認が行えない場合には、この物件情報は自動的に削除されます。
レオパレス明和 ***号室の賃貸物件部屋概要
家賃 |
4.5万円
初期費用を |
|---|---|
共益費 |
7,000円
入居可能時期 |
敷金/礼金 |
- / 45,000円 |
保証金/ |
- / - |
最寄駅 |
|
所在地 |
三重県四日市市午起 |
部屋番号 |
***号室 |
間取り |
1K(K1) |
専有面積 |
23.18㎡ |
築年数 |
2009年7月(築17年) |
階数 |
1階部分(地上3階建) |
方位・位置 |
東 / 角部屋 |
物件種別 |
賃貸マンション |
構造 |
鉄骨造 |
駐車場 |
4,950円 |
小学校学区 |
橋北小学校 |
中学校学区 |
橋北中学校 |
他の空き部屋 |
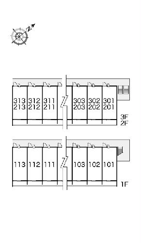
111号室 ***号室 113号室 ***号室 202号室 203号室 206号室 208号室 210号室 211号室 212号室 213号室 302号室 ***号室 304号室 305号室 306号室 307号室 308号室 309号室 ***号室 312号室 313号室 |
- 学区データについて
- ※学区データは必ずしも正確とは限りません。詳細に関しては最寄店舗または各自治体の教育委員会に必ずご確認ください。
レオパレス明和 ***号室の特徴
契約条件
ご契約時に保証人は不要です。 敷金が無料なため、初期費用が比較的安くなる傾向にあります。 お支払いは、初期費用がクレジットカードにて決済できます。
セキュリティ
来客時には居室内のテレビモニターにて訪問者の顔を確認することができます。
室内設備
IHコンロが備え付けられています。 トイレは、温水洗浄便座機能付きになります。 洗濯に便利な設備として、室内洗濯機置場があります。浴室乾燥機も設置されているので、梅雨時の生乾き臭も比較的防ぐことができます。
居室状況
エアコンが設置されています。 家具が備え付けられており、入居後すぐ生活が始められます。
建物設備共用部分
居室外の専有スペースとして、洗濯物を干すなどの用途として利用できるバルコニーがあります。 平面駐車場があります。駐輪場が利用できます。
周辺施設
この物件の学区は、橋北小学校区・橋北中学校区です。
レオパレス明和 ***号室の間取り
間取り:1K
間取詳細:1K(K1)
専有面積:23.18㎡
方位:東
部屋位置:角部屋
レオパレス明和 ***号室の設備
キッチン
IHコンロ
バス・トイレ
バス・トイレ別
浴室乾燥機
温水洗浄便座
玄関
TVモニタ付インターホン
バルコニー
バルコニー
ルーフバルコニー
室内設備
エアコン
室内洗濯機置場
家具付
位置・立地
1階
角部屋
インフラ
インターネット可
CATV
プロパンガス
建物設備
駐車場
平面駐車場
駐輪場
入居条件
保証人不要
ライフステージ
一人暮らしに人気の設備
カップルに人気の設備
家族に人気の設備
夫婦に人気の設備
三世代で人気の設備
こだわり
外で子どもと遊びたい
雨の日でも洗濯したい
寝るためだけの部屋
趣味
ガーデニングが好き
お得な条件
初期費用カード決済可
レオパレス明和 ***号室の賃貸契約情報
毎月支払う |
家賃4.5万円/月共益費7,000円/月 |
|---|---|
初期費用 |
敷金-礼金45,000円保証金-敷引き償却金- |
更新料 |
- |
鍵交換費用 |
16,500円 |
室内清掃費用 |
41,800円 |
抗菌施工(任意) |
23,760円 |
駐車場料金 |
4,950円 |
損保・ |
借家賠付きの火災保険にご加入いただきます。 |
保証会社 |
加入要 保証会社利用料:保証料:55790円(契約内容により100~120%で変動有)※記載金額は120%の場合 |
契約期間 |
- |
入居可能日 |
即入居可 |
フリーレント期間 |
- |
取引形態 |
一般媒介 |
備考 |
鍵交換費10260円、抗菌施工(任意)17712円から23328円(税込)、環境維持費540円/月 |
レオパレス明和 ***号室の建物情報
建物名称 |
レオパレス明和 |
|---|---|
最寄駅 |
|
所在地 |
三重県四日市市午起 |
階層 |
1階部分(地上3階建) |
構造 |
鉄骨造 |
築年数 |
2009年7月(築17年) |
駐車場 |
4,950円 |
小学校学区 |
橋北小学校 |
中学校学区 |
橋北中学校 |
- 学区データについて
- ※学区データは必ずしも正確とは限りません。詳細に関しては最寄店舗または各自治体の教育委員会に必ずご確認ください。
無料この物件に問い合わせ
- レオパレス明和 ***号室

-
4.5万円
(共益費
7,000円)
- 敷
- -
- 礼
- 45,000円
- 保
- -
- 償
- -
レオパレス明和 ***号室の物件のお問い合わせ先・取り扱い店舗
ハウスコム 四日市店
- アクセス
-
近鉄名古屋線「近鉄四日市駅」西口より送迎あり
- 住所
- 〒510-0064 三重県四日市市新正2丁目7−25
- 営業時間
- 10:00~18:00
- 定休日
- なし
- 営業エリア
- 四日市市、桑名市、鈴鹿市、いなべ市、三重郡川越町、三重郡朝日町、三重郡菰野町、三重郡東員町
- 取引態様
- 賃貸仲介業

























