グランメール 101号室(1階/1DK)の賃貸物件(賃貸アパート)
静岡県浜松市中央区にあるグランメール 101号室はシステムキッチン、温水洗浄便座、シャワー付洗面化粧台、シューズボックス、南向きなどが特徴です。最寄り駅の東海道本線(JR東海)浜松駅からバスで15分、六間坂上から徒歩4分です。グランメール 101号室の詳細はハウスコム 浜松店までお気軽にお問い合わせください!
情報更新日:
次回更新予定日:
※次回更新予定日について:お店側では順次空室確認を行っていますが、次回更新予定日までに空室確認が行えない場合には、この物件情報は自動的に削除されます。
グランメール 101号室の賃貸物件部屋概要
家賃 |
5万円
初期費用を |
|---|---|
共益費 |
-
入居可能時期 |
敷金/礼金 |
2ヶ月 / - |
保証金/ |
- / - |
最寄駅 |
|
所在地 |
静岡県浜松市中央区城北 |
部屋番号 |
101号室 |
間取り |
1DK(洋3.5・DK7.5) |
専有面積 |
30.91㎡ |
築年数 |
2008年9月(築18年) |
階数 |
1階部分(地上2階建) |
方位・位置 |
南 / 角部屋 |
物件種別 |
賃貸アパート |
構造 |
軽量鉄骨 |
駐車場 |
無 |
小学校学区 |
ー |
中学校学区 |
ー |
他の空き部屋 |
ー |
- 学区データについて
- ※学区データは必ずしも正確とは限りません。詳細に関しては最寄店舗または各自治体の教育委員会に必ずご確認ください。
グランメール 101号室の特徴
契約条件
礼金が無料なため、初期費用が比較的安くなる傾向にあります。
セキュリティ
来客時には居室内のテレビモニターにて訪問者の顔を確認することができます。
室内設備
システムキッチンが備え付けられています。 トイレは、温水洗浄便座機能付きになります。 女性に嬉しい設備のシャワーの付いている洗面化粧台があります。 洗濯に便利な設備として、室内洗濯機置場があります。
居室状況
お部屋の床は、フローリングとなっており、エアコンが設置されています。 インターネットも無料で入居後すぐ生活が始められます。 収納スペースとして、基本的な居室にクローゼットを設置、玄関にはシューズボックスがあります。
建物設備共用部分
居室外の専有スペースとして、洗濯物を干すなどの用途として利用できるバルコニーがあります。
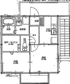
グランメール 101号室の間取り
間取り:1DK
間取詳細:1DK(洋3.5・DK7.5)
専有面積:30.91㎡
方位:南
部屋位置:角部屋
グランメール 101号室の設備
キッチン
システムキッチン
バス・トイレ
バス・トイレ別
温水洗浄便座
独立洗面台
シャワー付洗面化粧台
玄関
TVモニタ付インターホン
収納
クローゼット
シューズボックス
バルコニー
バルコニー
ルーフバルコニー
室内設備
エアコン
フローリング
室内洗濯機置場
位置・立地
1階
角部屋
南向き
インフラ
CATV
プロパンガス
入居条件
オンライン相談可
オンライン内見可
ライフステージ
一人暮らしに人気の設備
カップルに人気の設備
家族に人気の設備
夫婦に人気の設備
三世代で人気の設備
こだわり
外で子どもと遊びたい
雨の日でも洗濯したい
洋室で暮らしたい
趣味
ガーデニングが好き
お得な条件
インターネット無料
グランメール 101号室の賃貸契約情報
毎月支払う |
家賃5万円/月共益費- |
|---|---|
初期費用 |
敷金2ヶ月 (10万円)礼金-保証金-敷引き償却金- |
更新料 |
- |
鍵交換費用 |
- |
室内清掃費用 |
- |
自治会入会金 |
4,000円 |
自治会費年払い |
4,800円 |
祭り費 |
4,800円 |
駐車場料金 |
無 |
損保・ |
借家賠付きの火災保険にご加入いただきます。 |
保証会社 |
加入要 保証会社利用料:初回保証料:月額賃料総額の30%、月額保証料:月額賃料総額の1% |
契約期間 |
2年 |
入居可能日 |
2026年04月中旬 |
フリーレント期間 |
- |
取引形態 |
一般媒介 |
備考 |
初期:自治会入会金 4000円、自治会費年払い 4800円、祭り費 4800円 |
グランメール 101号室の建物情報
建物名称 |
グランメール |
|---|---|
最寄駅 |
|
所在地 |
静岡県浜松市中央区城北 |
階層 |
1階部分(地上2階建) |
構造 |
軽量鉄骨 |
築年数 |
2008年9月(築18年) |
駐車場 |
無 |
小学校学区 |
ー |
中学校学区 |
ー |
- 学区データについて
- ※学区データは必ずしも正確とは限りません。詳細に関しては最寄店舗または各自治体の教育委員会に必ずご確認ください。
無料この物件に問い合わせ
- グランメール 101号室

-
5万円
(共益費
-)
- 敷
- 2ヶ月
- 礼
- -
- 保
- -
- 償
- -
グランメール 101号室の物件のお問い合わせ先・取り扱い店舗
ハウスコム 浜松店
- アクセス
-
東海道本線(JR東海)「浜松駅」より車で10分、浜松学院高等学校前
- 住所
- 〒430-0906 静岡県浜松市中央区住吉2丁目2−19
- 営業時間
- 10:00~18:00
- 定休日
- 水曜日
- 営業エリア
- 浜松市《中央区》,浜松市《浜名区》,浜松市《天竜区》,湖西市,磐田市
- 取引態様
- 賃貸仲介業














