SYFORME GAKUSHUINSHITA 606号室(6階/1K)の賃貸物件(賃貸マンション)
東京都豊島区にあるSYFORME GAKUSHUINSHITA 606号室はオートロック、2階以上、インターネット可、BS、エレベーターなどが特徴です。最寄り駅の東京メトロ 副都心線雑司が谷駅から徒歩6分です。SYFORME GAKUSHUINSHITA 606号室の詳細はハウスコム 練馬店までお気軽にお問い合わせください!
情報更新日:
次回更新予定日:
※次回更新予定日について:お店側では順次空室確認を行っていますが、次回更新予定日までに空室確認が行えない場合には、この物件情報は自動的に削除されます。
SYFORME GAKUSHUINSHITA 606号室の賃貸物件部屋概要
家賃 |
9.2万円
初期費用を |
|---|---|
共益費 |
8,000円
入居可能時期 |
敷金/礼金 |
1ヶ月 / 1ヶ月 |
保証金/ |
- / - |
最寄駅 |
|
所在地 |
東京都豊島区高田 |
部屋番号 |
606号室 |
間取り |
1K(洋6) |
専有面積 |
20.29㎡ |
築年数 |
2014年12月(築12年) |
階数 |
6階部分(地上9階建) |
方位・位置 |
北 / その他 |
物件種別 |
賃貸マンション |
構造 |
RC |
駐車場 |
- |
小学校学区 |
高南小学校 |
中学校学区 |
千登世橋中学校 |
他の空き部屋 |
ー |
- 学区データについて
- ※学区データは必ずしも正確とは限りません。詳細に関しては最寄店舗または各自治体の教育委員会に必ずご確認ください。
SYFORME GAKUSHUINSHITA 606号室の特徴
-
一人暮らしに人気の設備

-
カップルに人気の設備

-
家族に人気の設備

-
夫婦に人気の設備

-
三世代で人気の設備

-
外で子どもと遊びたい

-
身だしなみに気をつかいたい

-
雨の日でも洗濯したい

-
洋室で暮らしたい

-
オークション・通販が好き

-
ガーデニングが好き

契約条件
ご契約時に保証人は不要です。
セキュリティ
この物件の建物には、オートロックや防犯カメラや宅配ボックスが設置されております。
室内設備
システムキッチンには、2つ以上のガスコンロが備え付けられています。 トイレは、温水洗浄便座機能付きになります。 女性に嬉しい設備の独立した洗面化粧台があります。 洗濯に便利な設備として、室内洗濯機置場があります。浴室乾燥機も設置されているので、梅雨時の生乾き臭も比較的防ぐことができます。
居室状況
お部屋の床は、フローリングとなっており、エアコンが設置されています。 インターネットも無料で入居後すぐ生活が始められます。 収納スペースとして、基本的な居室にクローゼットを設置、玄関にはシューズボックスがあります。
建物設備共用部分
居室外の専有スペースとして、洗濯物を干すなどの用途として利用できるバルコニーがあります。 建物の共用スペースに、日々の出入に便利なエレベーターや、いざという時の防犯カメラや、急な外出や不在がちのご家庭の荷物受け取りに便利な宅配ボックスが設置されています。
周辺施設
この物件の学区は、高南小学校区・千登世橋中学校区です。
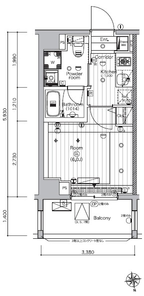
SYFORME GAKUSHUINSHITA 606号室の間取り
間取り:1K
間取詳細:1K(洋6)
専有面積:20.29㎡
方位:北
部屋位置:その他
SYFORME GAKUSHUINSHITA 606号室の設備
キッチン
システムキッチン
ガスコンロ
ガスコンロ二口以上
バス・トイレ
バス・トイレ別
浴室乾燥機
温水洗浄便座
独立洗面台
玄関
オートロック
宅配ボックス
収納
クローゼット
シューズボックス
バルコニー
バルコニー
ルーフバルコニー
室内設備
エアコン
フローリング
室内洗濯機置場
位置・立地
2階以上
インフラ
インターネット可
BS
CS
都市ガス
建物設備
エレベーター
防犯カメラ
分譲賃貸
入居条件
保証人不要
ライフステージ
一人暮らしに人気の設備
カップルに人気の設備
家族に人気の設備
夫婦に人気の設備
三世代で人気の設備
こだわり
外で子どもと遊びたい
身だしなみに気をつかいたい
雨の日でも洗濯したい
洋室で暮らしたい
趣味
オークション・通販が好き
ガーデニングが好き
お得な条件
インターネット無料
SYFORME GAKUSHUINSHITA 606号室の賃貸契約情報
毎月支払う |
家賃9.2万円/月共益費8,000円/月 |
|---|---|
初期費用 |
敷金1ヶ月 (9.2万円)礼金1ヶ月 (9.2万円)保証金-敷引き償却金- |
更新料 |
- |
鍵交換費用 |
33,000円 |
室内清掃費用 |
52,800円 |
SYLAプレミアムクラブ |
24,200円 |
駐車場料金 |
- |
損保・ |
借家賠付きの火災保険にご加入いただきます。 |
保証会社 |
加入要 保証会社:クレディセゾン 保証会社利用料:初回40%、以降10,000円/年(総賃料15万円以上:14,000円/年)~ 外国籍の方:GTNを利用。初回保証料100%(最低保証料40,000円)、月額保証料1,000円 |
契約期間 |
定期借家 2年 |
入居可能日 |
2026年05月上旬 |
フリーレント期間 |
- |
取引形態 |
一般媒介 |
備考 |
- |
SYFORME GAKUSHUINSHITA 606号室の建物情報
建物名称 |
SYFORME GAKUSHUINSHITA |
|---|---|
最寄駅 |
|
所在地 |
東京都豊島区高田 |
階層 |
6階部分(地上9階建) |
構造 |
RC |
築年数 |
2014年12月(築12年) |
駐車場 |
- |
小学校学区 |
高南小学校 |
中学校学区 |
千登世橋中学校 |
- 学区データについて
- ※学区データは必ずしも正確とは限りません。詳細に関しては最寄店舗または各自治体の教育委員会に必ずご確認ください。
無料この物件に問い合わせ
- SYFORME GAKUSHUINSHITA 606号室

-
9.2万円
(共益費
8,000円)
- 敷
- 1ヶ月
- 礼
- 1ヶ月
- 保
- -
- 償
- -
SYFORME GAKUSHUINSHITA 606号室の物件のお問い合わせ先・取り扱い店舗
ハウスコム 練馬店
- アクセス
-
西武池袋線・豊島線「練馬駅」南口徒歩1分
都営大江戸線「練馬駅」A2出口徒歩1分
- 住所
- 〒176-0001 東京都練馬区練馬1丁目2−9 K&Iビル 1階
- 営業時間
- 10:00~18:00
- 定休日
- なし
- 営業エリア
- 練馬区、中野区、杉並区、板橋区、豊島区、西東京市、和光市、朝霞市、新座市お探しとあればどこでもお探し致します。
- 取引態様
- 賃貸仲介業









