ロータス静岡 0210号室(2階/1LDK)の賃貸物件(賃貸マンション)
静岡県静岡市駿河区にあるロータス静岡 0210号室はシステムキッチン、浴室乾燥機、TVモニタ付インターホン、宅配ボックス、駐輪場などが特徴です。最寄り駅の東海道本線(JR東海)静岡駅から徒歩9分です。ロータス静岡 0210号室の詳細はハウスコム 静岡北店までお気軽にお問い合わせください!
情報更新日:
次回更新予定日:
※次回更新予定日について:お店側では順次空室確認を行っていますが、次回更新予定日までに空室確認が行えない場合には、この物件情報は自動的に削除されます。
ロータス静岡 0210号室の賃貸物件部屋概要
家賃 |
9.9万円
初期費用を |
|---|---|
共益費 |
8,000円
入居可能時期 |
敷金/礼金 |
99,000円 / 148,500円 |
保証金/ |
- / - |
最寄駅 |
|
所在地 |
静岡県静岡市駿河区泉町 |
部屋番号 |
0210号室 |
間取り |
1LDK(LDK12.9・洋7.3) |
専有面積 |
45.49㎡ |
築年数 |
2025年2月(築2年) |
階数 |
2階部分(地上12階建) |
方位・位置 |
北東 / その他 |
物件種別 |
賃貸マンション |
構造 |
RC |
駐車場 |
無 |
小学校学区 |
中田小学校 |
中学校学区 |
大里中学校 |
他の空き部屋 |
0611号室 |
- 学区データについて
- ※学区データは必ずしも正確とは限りません。詳細に関しては最寄店舗または各自治体の教育委員会に必ずご確認ください。
ロータス静岡 0210号室の特徴
セキュリティ
この物件の建物には、オートロックや防犯カメラや宅配ボックスが設置されており、来客時には居室内のテレビモニターにて訪問者の顔を確認することができます。
室内設備
システムキッチンが備え付けられています。 お風呂とトイレは一緒のユニットバスです。お風呂には、追い焚き機能が備わっています。 トイレは、温水洗浄便座機能付きになります。 洗濯に便利な設備として、浴室乾燥機も設置されているので、梅雨時の生乾き臭も比較的防ぐことができます。
居室状況
エアコンが設置されています。 インターネットも無料で入居後すぐ生活が始められます。 収納スペースとして、玄関にはシューズボックスがあります。
建物設備共用部分
建物の共用スペースに、日々の出入に便利なエレベーターや、いざという時の防犯カメラや、急な外出や不在がちのご家庭の荷物受け取りに便利な宅配ボックスが設置されています。 駐輪場、バイク置き場が利用できます。
周辺施設
この物件の学区は、中田小学校区・大里中学校区です。
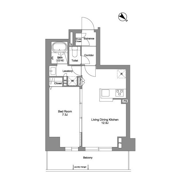
ロータス静岡 0210号室の間取り
間取り:1LDK
間取詳細:1LDK(LDK12.9・洋7.3)
専有面積:45.49㎡
方位:北東
部屋位置:その他
ロータス静岡 0210号室の設備
キッチン
システムキッチン
バス・トイレ
追い焚き
浴室乾燥機
温水洗浄便座
玄関
TVモニタ付インターホン
オートロック
宅配ボックス
収納
シューズボックス
トランクルーム
室内設備
エアコン
位置・立地
2階以上
インフラ
BS
CS
建物設備
エレベーター
防犯カメラ
駐輪場
バイク置き場
ライフステージ
一人暮らしに人気の設備
カップルに人気の設備
家族に人気の設備
夫婦に人気の設備
三世代で人気の設備
こだわり
セキュリティ対策重視
雨の日でも洗濯したい
趣味
オークション・通販が好き
お得な条件
インターネット無料
ロータス静岡 0210号室の賃貸契約情報
毎月支払う |
家賃9.9万円/月共益費8,000円/月 |
|---|---|
初期費用 |
敷金99,000円礼金148,500円保証金-敷引き償却金- |
更新料 |
99,000円 |
鍵交換費用 |
- |
室内清掃費用 |
- |
鍵交換代 |
33,000円 |
駐車場料金 |
無 |
損保・ |
借家賠付きの火災保険にご加入いただきます。 |
保証会社 |
加入要 保証会社:エポスカード 保証会社利用料:保証料:賃料等の50%(最低2万)、月額保証料:賃料等の1%(更新料無) |
契約期間 |
2年 |
入居可能日 |
2026年04月下旬 |
フリーレント期間 |
- |
取引形態 |
一般媒介 |
備考 |
清掃費:48950円(退去時請求).エアコン清掃費:11000円(退去時請求) |
ロータス静岡 0210号室の建物情報
建物名称 |
ロータス静岡 |
|---|---|
最寄駅 |
|
所在地 |
静岡県静岡市駿河区泉町 |
階層 |
2階部分(地上12階建) |
構造 |
RC |
築年数 |
2025年2月(築2年) |
駐車場 |
無 |
小学校学区 |
中田小学校 |
中学校学区 |
大里中学校 |
- 学区データについて
- ※学区データは必ずしも正確とは限りません。詳細に関しては最寄店舗または各自治体の教育委員会に必ずご確認ください。
無料この物件に問い合わせ
- ロータス静岡 0210号室

-
9.9万円
(共益費
8,000円)
- 敷
- 99,000円
- 礼
- 148,500円
- 保
- -
- 償
- -
ロータス静岡 0210号室の物件のお問い合わせ先・取り扱い店舗
ハウスコム 静岡北店
- アクセス
-
東海道本線(JR東海)「静岡駅」北口より徒歩5分
- 住所
- 〒420-0033 静岡県静岡市葵区昭和町10−6 第一富士岡 1階
- 営業時間
- 10:00~18:00
- 定休日
- なし
- 営業エリア
- 静岡市葵区、静岡市駿河区、静岡市清水区
- 取引態様
- 賃貸仲介業

























