THE TOKYO TOWERS MID 2024号室(20階/1K)の賃貸物件(賃貸マンション)
東京都中央区にあるTHE TOKYO TOWERS MID 2024号室はシステムキッチン、クローゼット、2階以上、エレベーター、バイク置き場などが特徴です。最寄り駅の都営大江戸線勝どき駅から徒歩6分です。THE TOKYO TOWERS MID 2024号室の詳細はハウスコム 事業戦略室までお気軽にお問い合わせください!
情報更新日:
次回更新予定日:
※次回更新予定日について:お店側では順次空室確認を行っていますが、次回更新予定日までに空室確認が行えない場合には、この物件情報は自動的に削除されます。
THE TOKYO TOWERS MID 2024号室の賃貸物件部屋概要
家賃 |
22.1万円
初期費用を |
|---|---|
共益費 |
15,000円
入居可能時期 |
敷金/礼金 |
2ヶ月 / 1ヶ月 |
保証金/ |
- / - |
最寄駅 |
|
所在地 |
東京都中央区勝どき |
部屋番号 |
2024号室 |
間取り |
1K |
専有面積 |
50.59㎡ |
築年数 |
2008年1月(築19年) |
階数 |
20階部分(地上58階建) |
方位・位置 |
北西 / その他 |
物件種別 |
賃貸マンション |
構造 |
RC |
駐車場 |
無 |
小学校学区 |
豊海小学校 |
中学校学区 |
晴海西中学校 |
他の空き部屋 |
***号室 1010号室 1108号室 1219号室 1621号室 2010号室 2110号室 2418号室 ***号室 2505号室 2510号室 2601号室 2703号室 2903号室 2928号室 3007号室 3021号室 311号室 403号室 407号室 411号室 522号室 706号室 914号室 |
- 学区データについて
- ※学区データは必ずしも正確とは限りません。詳細に関しては最寄店舗または各自治体の教育委員会に必ずご確認ください。
THE TOKYO TOWERS MID 2024号室の特徴
契約条件
ペットの飼育や楽器演奏もご相談ください。
セキュリティ
この物件の建物には、オートロックや宅配ボックスが設置されております。
室内設備
システムキッチンが備え付けられています。 お風呂とトイレは別です。お風呂には、追い焚き機能が備わっています。 洗濯に便利な設備として、浴室乾燥機も設置されているので、梅雨時の生乾き臭も比較的防ぐことができます。
居室状況
エアコンが設置されています。 収納スペースとして、基本的な居室にクローゼットを設置、通常よりも収納力の高いウォークインクローゼットがあります。
建物設備共用部分
居室外の専有スペースとして、洗濯物を干すなどの用途として利用できるバルコニーがあります。 建物の共用スペースに、日々の出入に便利なエレベーターや、急な外出や不在がちのご家庭の荷物受け取りに便利な宅配ボックスが設置されています。 バイク置き場が利用できます。
周辺施設
この物件の学区は、豊海小学校区・晴海西中学校区です。
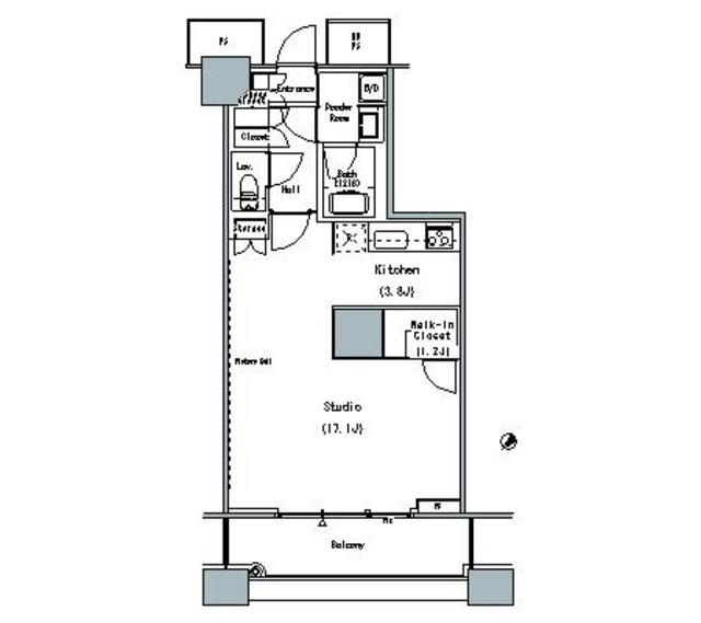
THE TOKYO TOWERS MID 2024号室の間取り
間取り:1K
間取詳細:1K
専有面積:50.59㎡
方位:北西
部屋位置:その他
THE TOKYO TOWERS MID 2024号室の設備
キッチン
システムキッチン
バス・トイレ
バス・トイレ別
追い焚き
浴室乾燥機
玄関
オートロック
宅配ボックス
収納
クローゼット
ウォークインクローゼット
バルコニー
バルコニー
ルーフバルコニー
室内設備
エアコン
位置・立地
2階以上
インフラ
CATV
建物設備
エレベーター
バイク置き場
入居条件
ペット可・相談
楽器可・相談
ライフステージ
一人暮らしに人気の設備
カップルに人気の設備
家族に人気の設備
夫婦に人気の設備
三世代で人気の設備
こだわり
外で子どもと遊びたい
雨の日でも洗濯したい
趣味
服やおしゃれが好き
ガーデニングが好き
THE TOKYO TOWERS MID 2024号室の賃貸契約情報
毎月支払う |
家賃22.1万円/月共益費15,000円/月 |
|---|---|
初期費用 |
敷金2ヶ月 (44.2万円)礼金1ヶ月 (22.1万円)保証金-敷引き償却金- |
更新料 |
221,000円 |
鍵交換費用 |
- |
室内清掃費用 |
- |
駐車場料金 |
無 |
損保・ |
借家賠付きの火災保険にご加入いただきます。 |
保証会社 |
加入要 保証会社:オリコフォレントインシュア 保証会社利用料:初回保証委託料(最低20000円):月額賃料等の50%、2年目以降:10000円/年 |
契約期間 |
2年 |
入居可能日 |
2026年05月下旬 |
フリーレント期間 |
- |
取引形態 |
一般媒介 |
備考 |
フリーレント1ヶ月。FR1ヶ月(賃料の1ヶ月分・1月末契約開始対象) 保証会社利用必須(オリコ |
THE TOKYO TOWERS MID 2024号室の建物情報
建物名称 |
THE TOKYO TOWERS MID |
|---|---|
最寄駅 |
|
所在地 |
東京都中央区勝どき |
階層 |
20階部分(地上58階建) |
構造 |
RC |
築年数 |
2008年1月(築19年) |
駐車場 |
無 |
小学校学区 |
豊海小学校 |
中学校学区 |
晴海西中学校 |
- 学区データについて
- ※学区データは必ずしも正確とは限りません。詳細に関しては最寄店舗または各自治体の教育委員会に必ずご確認ください。
無料この物件に問い合わせ
- THE TOKYO TOWERS MID 2024号室

-
22.1万円
(共益費
15,000円)
- 敷
- 2ヶ月
- 礼
- 1ヶ月
- 保
- -
- 償
- -
THE TOKYO TOWERS MID 2024号室の物件のお問い合わせ先・取り扱い店舗
ハウスコム 事業戦略室
- アクセス
-
山手線「品川駅」港南口徒歩3分
- 住所
- 〒108-0075 東京都港区港南2-16-1 品川イーストワンタワー9階
- 営業時間
- 10:00~17:00
- 定休日
- 土曜日・日曜日(祝日定休)
- 営業エリア
- 北区、荒川区、豊島区、文京区、台東区、中央区、新宿区、千代田区、渋谷区、港区、品川区
- 取引態様
- 賃貸仲介業





































