EL MAISON NEXT ***号室(1階/1K)の賃貸物件(賃貸マンション)
神奈川県秦野市にあるEL MAISON NEXT ***号室は冷蔵庫付、独立洗面台、ウォークインクローゼット、エアコン、角部屋などが特徴です。最寄り駅の小田急小田原線東海大学前駅から徒歩7分です。EL MAISON NEXT ***号室の詳細はハウスコム 秦野店までお気軽にお問い合わせください!
情報更新日:
次回更新予定日:
※次回更新予定日について:お店側では順次空室確認を行っていますが、次回更新予定日までに空室確認が行えない場合には、この物件情報は自動的に削除されます。
EL MAISON NEXT ***号室の賃貸物件部屋概要
家賃 |
5.6万円
初期費用を |
|---|---|
共益費 |
1,000円
入居可能時期 |
敷金/礼金 |
1ヶ月 / 1ヶ月 |
保証金/ |
- / - |
最寄駅 |
|
所在地 |
神奈川県秦野市南矢名 |
部屋番号 |
***号室 |
間取り |
1K(洋0・K0) |
専有面積 |
28.12㎡ |
築年数 |
2012年1月(築15年) |
階数 |
1階部分(地上2階建) |
方位・位置 |
ー / 角部屋 |
物件種別 |
賃貸マンション |
構造 |
軽量鉄骨 |
駐車場 |
5,000円 |
小学校学区 |
大根小学校 |
中学校学区 |
大根中学校 |
他の空き部屋 |
202号室 |
- 学区データについて
- ※学区データは必ずしも正確とは限りません。詳細に関しては最寄店舗または各自治体の教育委員会に必ずご確認ください。
EL MAISON NEXT ***号室の特徴
-
一人暮らしに人気の設備

-
カップルに人気の設備

-
家族に人気の設備

-
夫婦に人気の設備

-
三世代で人気の設備

-
外で子どもと遊びたい

-
雨の日でも洗濯したい

-
洋室で暮らしたい

-
服やおしゃれが好き

-
ガーデニングが好き

契約条件
ご契約時に保証人は不要です。
室内設備
ガスコンロが設置されており、キッチン設備として冷蔵庫が備え付けられています。 女性に嬉しい設備のシャワーの付いている洗面化粧台があります。 洗濯に便利な設備として、室内洗濯機置場があります。
居室状況
お部屋の床は、フローリングとなっており、エアコンが設置されています。 収納スペースとして、通常よりも収納力の高いウォークインクローゼットがあります。
建物設備共用部分
居室外の専有スペースとして、洗濯物を干すなどの用途として利用できるバルコニーがあります。 平面駐車場があります。
周辺施設
この物件の学区は、大根小学校区・大根中学校区です。
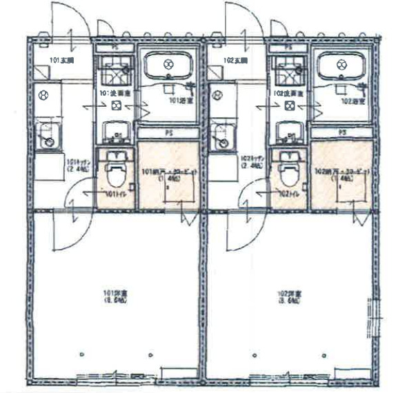
EL MAISON NEXT ***号室の間取り
間取り:1K
間取詳細:1K(洋0・K0)
専有面積:28.12㎡
方位:ー
部屋位置:角部屋
EL MAISON NEXT ***号室の設備
キッチン
ガスコンロ
冷蔵庫付
バス・トイレ
バス・トイレ別
独立洗面台
シャワー付洗面化粧台
収納
ウォークインクローゼット
バルコニー
バルコニー
ルーフバルコニー
室内設備
エアコン
フローリング
室内洗濯機置場
位置・立地
1階
角部屋
建物設備
駐車場
平面駐車場
入居条件
オンライン相談可
オンライン内見可
保証人不要
ライフステージ
一人暮らしに人気の設備
カップルに人気の設備
家族に人気の設備
夫婦に人気の設備
三世代で人気の設備
こだわり
外で子どもと遊びたい
雨の日でも洗濯したい
洋室で暮らしたい
趣味
服やおしゃれが好き
ガーデニングが好き
EL MAISON NEXT ***号室の賃貸契約情報
毎月支払う |
家賃5.6万円/月共益費1,000円/月 |
|---|---|
初期費用 |
敷金1ヶ月 (5.6万円)礼金1ヶ月 (5.6万円)保証金-敷引き償却金- |
更新料 |
- |
鍵交換費用 |
- |
室内清掃費用 |
- |
駐車場料金 |
5,000円 |
損保・ |
借家賠付きの火災保険にご加入いただきます。 |
保証会社 |
加入要 保証会社利用料:初回保証料:要 |
契約期間 |
1年 |
入居可能日 |
相談 |
フリーレント期間 |
- |
取引形態 |
一般媒介 |
備考 |
火災保険料:20700円/2年 |
EL MAISON NEXT ***号室の建物情報
建物名称 |
EL MAISON NEXT |
|---|---|
最寄駅 |
|
所在地 |
神奈川県秦野市南矢名 |
階層 |
1階部分(地上2階建) |
構造 |
軽量鉄骨 |
築年数 |
2012年1月(築15年) |
駐車場 |
5,000円 |
小学校学区 |
大根小学校 |
中学校学区 |
大根中学校 |
- 学区データについて
- ※学区データは必ずしも正確とは限りません。詳細に関しては最寄店舗または各自治体の教育委員会に必ずご確認ください。
無料この物件に問い合わせ
- EL MAISON NEXT ***号室

-
5.6万円
(共益費
1,000円)
- 敷
- 1ヶ月
- 礼
- 1ヶ月
- 保
- -
- 償
- -
EL MAISON NEXT ***号室の物件のお問い合わせ先・取り扱い店舗
ハウスコム 秦野店
- アクセス
-
小田急小田原線「秦野駅」徒歩1分
- 住所
- 〒257-0034 神奈川県秦野市大秦町1−1 小田急マルシェ秦野 2階
- 営業時間
- 10:00~18:00
- 定休日
- 水曜日
- 営業エリア
- 秦野市 伊勢原市 平塚市 南足柄市 足柄上郡中井町 開成町 松田町 大井町 足柄上郡二宮町
- 取引態様
- 賃貸仲介業





























