プレサンス栄フレイヤ 802号室(8階/1LDK)の賃貸物件(賃貸マンション)
愛知県名古屋市中区にあるプレサンス栄フレイヤ 802号室はTVモニタ付インターホン、オートロック、BS、都市ガス、2人入居可などが特徴です。最寄り駅の名古屋市営地下鉄 名城線矢場町駅から徒歩7分です。プレサンス栄フレイヤ 802号室の詳細はハウスコム 中村公園店までお気軽にお問い合わせください!
情報更新日:
次回更新予定日:
※次回更新予定日について:お店側では順次空室確認を行っていますが、次回更新予定日までに空室確認が行えない場合には、この物件情報は自動的に削除されます。
プレサンス栄フレイヤ 802号室の賃貸物件部屋概要
家賃 |
10万円
初期費用を |
|---|---|
共益費 |
10,000円
入居可能時期 |
敷金/礼金 |
- / - |
保証金/ |
- / - |
最寄駅 |
|
所在地 |
愛知県名古屋市中区栄 |
部屋番号 |
802号室 |
間取り |
1LDK |
専有面積 |
35.52㎡ |
築年数 |
2015年3月(築11年) |
階数 |
8階部分(地上13階建) |
方位・位置 |
東 / その他 |
物件種別 |
賃貸マンション |
構造 |
RC |
駐車場 |
- |
小学校学区 |
新栄小学校 |
中学校学区 |
白山中学校 |
他の空き部屋 |
302号室 |
- 学区データについて
- ※学区データは必ずしも正確とは限りません。詳細に関しては最寄店舗または各自治体の教育委員会に必ずご確認ください。
プレサンス栄フレイヤ 802号室の特徴
-
一人暮らしに人気の設備

-
カップルに人気の設備

-
家族に人気の設備

-
夫婦に人気の設備

-
三世代で人気の設備

-
セキュリティ対策重視

-
外で子どもと遊びたい

-
身だしなみに気をつかいたい

-
雨の日でも洗濯したい

-
ガーデニングが好き

契約条件
この物件は、2人入居もご契約できます。 敷金と礼金が無料なため、初期費用が比較的安くなる傾向にあります。
セキュリティ
この物件の建物には、オートロックや防犯カメラや宅配ボックスが設置されており、来客時には居室内のテレビモニターにて訪問者の顔を確認することができます。
室内設備
トイレは、温水洗浄便座機能付きになります。 女性に嬉しい設備の独立した洗面化粧台があります。 洗濯に便利な設備として、室内洗濯機置場があります。浴室乾燥機も設置されているので、梅雨時の生乾き臭も比較的防ぐことができます。
居室状況
エアコンが設置されています。
建物設備共用部分
居室外の専有スペースとして、洗濯物を干すなどの用途として利用できるバルコニーがあります。 建物の共用スペースに、日々の出入に便利なエレベーターや、いざという時の防犯カメラや、急な外出や不在がちのご家庭の荷物受け取りに便利な宅配ボックスが設置されています。 駐輪場が利用できます。
周辺施設
この物件の学区は、新栄小学校区・白山中学校区です。
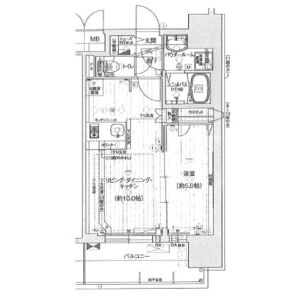
プレサンス栄フレイヤ 802号室の間取り
間取り:1LDK
間取詳細:1LDK
専有面積:35.52㎡
方位:東
部屋位置:その他
プレサンス栄フレイヤ 802号室の設備
バス・トイレ
バス・トイレ別
浴室乾燥機
温水洗浄便座
独立洗面台
玄関
TVモニタ付インターホン
オートロック
宅配ボックス
バルコニー
バルコニー
ルーフバルコニー
室内設備
エアコン
室内洗濯機置場
位置・立地
2階以上
インフラ
インターネット可
BS
CS
都市ガス
建物設備
エレベーター
防犯カメラ
駐輪場
分譲賃貸
入居条件
2人入居可
ライフステージ
一人暮らしに人気の設備
カップルに人気の設備
家族に人気の設備
夫婦に人気の設備
三世代で人気の設備
こだわり
セキュリティ対策重視
外で子どもと遊びたい
身だしなみに気をつかいたい
雨の日でも洗濯したい
趣味
ガーデニングが好き
プレサンス栄フレイヤ 802号室の賃貸契約情報
毎月支払う |
家賃10万円/月共益費10,000円/月 |
|---|---|
初期費用 |
敷金-礼金-保証金-敷引き償却金- |
更新料 |
- |
鍵交換費用 |
44,000円 |
室内清掃費用 |
71,500円 |
初期費用:契約事務手数料 |
11,000円 |
ランニング費用:更新事務手数料(更新時)、24時間駆けつけサービス(月額) |
11,990円 |
その他費用:エアコンクリーニング(退去時) |
16,500円 |
駐車場料金 |
- |
損保・ |
借家賠付きの火災保険にご加入いただきます。 |
保証会社 |
加入要 保証会社:クレディセゾン 保証会社利用料:初回保証料30%~ 年10,000円 |
契約期間 |
2年 |
入居可能日 |
2026年05月中旬 |
フリーレント期間 |
- |
取引形態 |
一般媒介 |
備考 |
- |
プレサンス栄フレイヤ 802号室の建物情報
建物名称 |
プレサンス栄フレイヤ |
|---|---|
最寄駅 |
|
所在地 |
愛知県名古屋市中区栄 |
階層 |
8階部分(地上13階建) |
構造 |
RC |
築年数 |
2015年3月(築11年) |
駐車場 |
- |
小学校学区 |
新栄小学校 |
中学校学区 |
白山中学校 |
- 学区データについて
- ※学区データは必ずしも正確とは限りません。詳細に関しては最寄店舗または各自治体の教育委員会に必ずご確認ください。
無料この物件に問い合わせ
- プレサンス栄フレイヤ 802号室

-
10万円
(共益費
10,000円)
- 敷
- -
- 礼
- -
- 保
- -
- 償
- -
プレサンス栄フレイヤ 802号室の物件のお問い合わせ先・取り扱い店舗
ハウスコム 中村公園店
- アクセス
-
名古屋市営地下鉄 東山線「中村公園駅」徒歩1分
- 住所
- 〒453-0811 愛知県名古屋市中村区太閤通9丁目9 横田ビル 1階
- 営業時間
- 10:00~18:00
- 定休日
- なし
- 営業エリア
- 中村区 中川区 西区 中区 港区 海部郡 あま市 清須市
- 取引態様
- 賃貸仲介業

