WORVE横浜伊勢佐木町 1013号室(10階/2LDK)の賃貸物件(賃貸マンション)
神奈川県横浜市中区にあるWORVE横浜伊勢佐木町 1013号室はガスコンロ二口以上、バルコニー、室内洗濯機置場、インターネット可、都市ガスなどが特徴です。最寄り駅の横浜市営地下鉄 ブルーライン伊勢佐木長者町駅から徒歩6分です。WORVE横浜伊勢佐木町 1013号室の詳細はハウスコム 関内店までお気軽にお問い合わせください!
情報更新日:
次回更新予定日:
※次回更新予定日について:お店側では順次空室確認を行っていますが、次回更新予定日までに空室確認が行えない場合には、この物件情報は自動的に削除されます。
WORVE横浜伊勢佐木町 1013号室の賃貸物件部屋概要
家賃 |
22.9万円
初期費用を |
|---|---|
共益費 |
20,000円
入居可能時期 |
敷金/礼金 |
1ヶ月 / - |
保証金/ |
- / - |
最寄駅 |
|
所在地 |
神奈川県横浜市中区伊勢佐木町 |
部屋番号 |
1013号室 |
間取り |
2LDK(LDK0・洋5.4・洋5) |
専有面積 |
63.70㎡ |
築年数 |
2025年2月(築2年) |
階数 |
10階部分(地上15階建) |
方位・位置 |
南東 / その他 |
物件種別 |
賃貸マンション |
構造 |
RC |
駐車場 |
- |
小学校学区 |
本町小学校 |
中学校学区 |
横浜吉田中学校 |
他の空き部屋 |
1008号室 1414号室 1417号室 1514号室 1517号室 303号室 306号室 308号室 413号室 415号室 |
- 学区データについて
- ※学区データは必ずしも正確とは限りません。詳細に関しては最寄店舗または各自治体の教育委員会に必ずご確認ください。
WORVE横浜伊勢佐木町 1013号室の特徴
-
一人暮らしに人気の設備

-
カップルに人気の設備

-
家族に人気の設備

-
夫婦に人気の設備

-
三世代で人気の設備

-
セキュリティ対策重視

-
外で子どもと遊びたい

-
雨の日でも洗濯したい

-
洋室で暮らしたい

-
オークション・通販が好き

-
ガーデニングが好き

契約条件
ご契約時に保証人は不要です。 礼金が無料なため、初期費用が比較的安くなる傾向にあります。
セキュリティ
この物件の建物には、オートロックや防犯カメラや宅配ボックスが設置されており、来客時には居室内のテレビモニターにて訪問者の顔を確認することができます。
室内設備
システムキッチンには、2つ以上のガスコンロが備え付けられています。 トイレは、温水洗浄便座機能付きになります。 女性に嬉しい設備の独立した洗面化粧台があります。 洗濯に便利な設備として、室内洗濯機置場があります。浴室乾燥機も設置されているので、梅雨時の生乾き臭も比較的防ぐことができます。
居室状況
お部屋の床は、フローリングとなっており、エアコンが設置されています。 インターネットも無料で入居後すぐ生活が始められます。 収納スペースとして、基本的な居室にクローゼットを設置、玄関にはシューズボックスがあります。
建物設備共用部分
居室外の専有スペースとして、洗濯物を干すなどの用途として利用できるバルコニーがあります。 建物の共用スペースに、日々の出入に便利なエレベーターや、いざという時の防犯カメラや、急な外出や不在がちのご家庭の荷物受け取りに便利な宅配ボックスが設置されています。
周辺施設
この物件の学区は、本町小学校区・横浜吉田中学校区です。
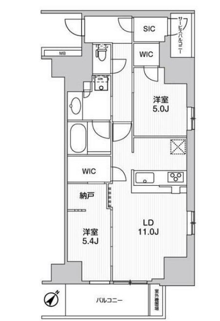
WORVE横浜伊勢佐木町 1013号室の間取り
間取り:2LDK
間取詳細:2LDK(LDK0・洋5.4・洋5)
専有面積:63.70㎡
方位:南東
部屋位置:その他
WORVE横浜伊勢佐木町 1013号室の設備
キッチン
システムキッチン
ガスコンロ
ガスコンロ二口以上
バス・トイレ
バス・トイレ別
浴室乾燥機
温水洗浄便座
独立洗面台
玄関
TVモニタ付インターホン
オートロック
宅配ボックス
収納
クローゼット
シューズボックス
バルコニー
バルコニー
ルーフバルコニー
室内設備
エアコン
フローリング
室内洗濯機置場
位置・立地
2階以上
インフラ
インターネット可
BS
CS
都市ガス
建物設備
エレベーター
防犯カメラ
入居条件
オンライン相談可
オンライン内見可
保証人不要
即入居可
ライフステージ
一人暮らしに人気の設備
カップルに人気の設備
家族に人気の設備
夫婦に人気の設備
三世代で人気の設備
こだわり
セキュリティ対策重視
外で子どもと遊びたい
雨の日でも洗濯したい
洋室で暮らしたい
趣味
オークション・通販が好き
ガーデニングが好き
お得な条件
インターネット無料
WORVE横浜伊勢佐木町 1013号室の賃貸契約情報
毎月支払う |
家賃22.9万円/月共益費20,000円/月 |
|---|---|
初期費用 |
敷金1ヶ月 (22.9万円)礼金-保証金-敷引き償却金- |
更新料 |
- |
鍵交換費用 |
24,200円 |
室内清掃費用 |
- |
Goodプレミアムα登録料 |
3,300円 |
Goodプレミアムα |
16,500円 |
住宅総合保険(フレックス) |
28,000円 |
駐車場料金 |
- |
損保・ |
借家賠付きの火災保険にご加入いただきます。 |
保証会社 |
加入要 保証会社利用料:①【エポス】初回:総賃料の60% 月次保証料:総賃料の1%②【新日本信用保証】初回:総賃料の50% 月次保証料:総賃料の1% |
契約期間 |
定期借家 2年 |
入居可能日 |
即入居可 |
フリーレント期間 |
- |
取引形態 |
一般媒介 |
備考 |
- |
WORVE横浜伊勢佐木町 1013号室の建物情報
建物名称 |
WORVE横浜伊勢佐木町 |
|---|---|
最寄駅 |
|
所在地 |
神奈川県横浜市中区伊勢佐木町 |
階層 |
10階部分(地上15階建) |
構造 |
RC |
築年数 |
2025年2月(築2年) |
駐車場 |
- |
小学校学区 |
本町小学校 |
中学校学区 |
横浜吉田中学校 |
- 学区データについて
- ※学区データは必ずしも正確とは限りません。詳細に関しては最寄店舗または各自治体の教育委員会に必ずご確認ください。
無料この物件に問い合わせ
- WORVE横浜伊勢佐木町 1013号室

-
22.9万円
(共益費
20,000円)
- 敷
- 1ヶ月
- 礼
- -
- 保
- -
- 償
- -
WORVE横浜伊勢佐木町 1013号室の物件のお問い合わせ先・取り扱い店舗
ハウスコム 関内店
- アクセス
-
根岸線「関内駅」徒歩1分
- 住所
- 〒231-0017 神奈川県横浜市中区港町4-15-1 フィル・パーク関内駅前Ⅱ5階
- 営業時間
- 10:00~18:00
- 定休日
- なし
- 営業エリア
- 横浜市中区・西区・南区・保土ヶ谷区・神奈川区・磯子区
- 取引態様
- 賃貸仲介業



















