コンフォリア新宿イーストサイドタワー 1513号室(15階/2LDK)の賃貸物件(賃貸マンション)
東京都新宿区にあるコンフォリア新宿イーストサイドタワー 1513号室はディスポーザー、シャワー付洗面化粧台、宅配ボックス、フローリング、2階以上などが特徴です。最寄り駅の東京メトロ 副都心線東新宿駅から徒歩5分です。コンフォリア新宿イーストサイドタワー 1513号室の詳細はハウスコム 新宿店までお気軽にお問い合わせください!
情報更新日:
次回更新予定日:
※次回更新予定日について:お店側では順次空室確認を行っていますが、次回更新予定日までに空室確認が行えない場合には、この物件情報は自動的に削除されます。
コンフォリア新宿イーストサイドタワー 1513号室の賃貸物件部屋概要
家賃 |
64.7万円
初期費用を |
|---|---|
共益費 |
-
入居可能時期 |
敷金/礼金 |
2ヶ月 / - |
保証金/ |
- / - |
最寄駅 |
|
所在地 |
東京都新宿区新宿 |
部屋番号 |
1513号室 |
間取り |
2LDK(LDK28.4・洋7.7・洋7.1) |
専有面積 |
98.48㎡ |
築年数 |
2012年1月(築15年) |
階数 |
15階部分(地上32階地下1階建) |
方位・位置 |
東 / その他 |
物件種別 |
賃貸マンション |
構造 |
RC |
駐車場 |
無 |
小学校学区 |
大久保小学校 |
中学校学区 |
新宿中学校 |
他の空き部屋 |
0207号室 0301号室 ***号室 ***号室 0509号室 0611号室 0809号室 0828号室 1103号室 ***号室 1513号室 ***号室 1528号室 1712号室 ***号室 207号室 301号室 304号室 320号室 509号室 611号室 809号室 828号室 |
- 学区データについて
- ※学区データは必ずしも正確とは限りません。詳細に関しては最寄店舗または各自治体の教育委員会に必ずご確認ください。
コンフォリア新宿イーストサイドタワー 1513号室の特徴
-
一人暮らしに人気の設備

-
カップルに人気の設備

-
家族に人気の設備

-
夫婦に人気の設備

-
三世代で人気の設備

-
セキュリティ対策重視

-
タイパ重視

-
外で子どもと遊びたい

-
雨の日でも洗濯したい

-
洋室で暮らしたい

-
料理が好き

-
推し活グッズを飾りたい

-
ガーデニングが好き

契約条件
ペットの飼育もご相談ください。 また、ご契約時に保証人は不要です。 礼金が無料なため、初期費用が比較的安くなる傾向にあります。
セキュリティ
この物件の建物には、オートロックや防犯カメラや宅配ボックスが設置されており、来客時には居室内のテレビモニターにて訪問者の顔を確認することができます。
室内設備
システムキッチンには、ガスコンロが設置されており、排水溝にディスポーザーが備え付けられています。 トイレは、温水洗浄便座機能付きになります。 女性に嬉しい設備のシャワーの付いている洗面化粧台があります。 洗濯に便利な設備として、室内洗濯機置場があります。浴室乾燥機も設置されているので、梅雨時の生乾き臭も比較的防ぐことができます。
居室状況
お部屋の床は、フローリングとなっており、エアコンと一部床下暖房が設置されています。 照明器具が備え付けられており、入居後すぐ生活が始められます。 収納スペースとして、基本的な居室にクローゼットを設置、玄関にはシューズボックスがあります。
建物設備共用部分
居室外の専有スペースとして、洗濯物を干すなどの用途として利用できるバルコニーがあります。 建物の共用スペースに、日々の出入に便利なエレベーターや、いざという時の防犯カメラや、急な外出や不在がちのご家庭の荷物受け取りに便利な宅配ボックスや、居室内を常に清潔に保てる24時間利用可能なゴミ捨て置き場が設置されています。 駐輪場が利用できます。
周辺施設
この物件の学区は、大久保小学校区・新宿中学校区です。
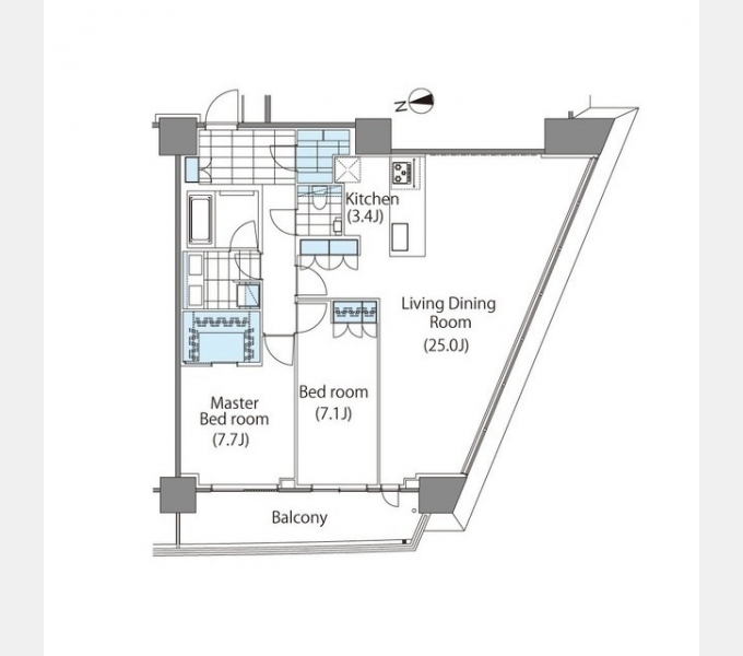
コンフォリア新宿イーストサイドタワー 1513号室の間取り
間取り:2LDK
間取詳細:2LDK(LDK28.4・洋7.7・洋7.1)
専有面積:98.48㎡
方位:東
部屋位置:その他
コンフォリア新宿イーストサイドタワー 1513号室の設備
キッチン
システムキッチン
カウンターキッチン
ガスコンロ
ディスポーザー
バス・トイレ
バス・トイレ別
浴室乾燥機
温水洗浄便座
独立洗面台
シャワー付洗面化粧台
玄関
TVモニタ付インターホン
オートロック
宅配ボックス
収納
クローゼット
シューズボックス
バルコニー
バルコニー
ルーフバルコニー
室内設備
エアコン
フローリング
床下暖房
室内洗濯機置場
照明器具付
位置・立地
2階以上
インフラ
CATV
BS
都市ガス
建物設備
エレベーター
防犯カメラ
24時間ゴミ出しOK
駐輪場
入居条件
ペット可・相談
オンライン相談可
オンライン内見可
保証人不要
即入居可
ライフステージ
一人暮らしに人気の設備
カップルに人気の設備
家族に人気の設備
夫婦に人気の設備
三世代で人気の設備
こだわり
セキュリティ対策重視
タイパ重視
外で子どもと遊びたい
雨の日でも洗濯したい
洋室で暮らしたい
趣味
料理が好き
推し活グッズを飾りたい
ガーデニングが好き
お得な条件
フリーレント
コンフォリア新宿イーストサイドタワー 1513号室の賃貸契約情報
毎月支払う |
家賃64.7万円/月共益費- |
|---|---|
初期費用 |
敷金2ヶ月 (129.4万円)礼金-保証金-敷引き償却金- |
更新料 |
- |
鍵交換費用 |
33,000円 |
室内清掃費用 |
88,000円 |
駐車場料金 |
無 |
損保・ |
借家賠付きの火災保険にご加入いただきます。 |
保証会社 |
加入要 保証会社利用料:初回保証料:総賃料等の40% 最低保証料:20000円 2年目以降:12000円/年 |
契約期間 |
定期借家 3年 |
入居可能日 |
即入居可 |
フリーレント期間 |
1ヶ月 |
取引形態 |
一般媒介 |
備考 |
・退去時にエアコンクリーニング代:104500円 ・3年未満解約する場合、総賃料等の1ヶ月分 ・ペット飼育可能:小型犬または猫2匹迄、飼育時に敷金1ヶ月分 |
コンフォリア新宿イーストサイドタワー 1513号室の建物情報
建物名称 |
コンフォリア新宿イーストサイドタワー |
|---|---|
最寄駅 |
|
所在地 |
東京都新宿区新宿 |
階層 |
15階部分(地上32階地下1階建) |
構造 |
RC |
築年数 |
2012年1月(築15年) |
駐車場 |
無 |
小学校学区 |
大久保小学校 |
中学校学区 |
新宿中学校 |
- 学区データについて
- ※学区データは必ずしも正確とは限りません。詳細に関しては最寄店舗または各自治体の教育委員会に必ずご確認ください。
無料この物件に問い合わせ
- コンフォリア新宿イーストサイドタワー 1513号室

-
64.7万円
(共益費
-)
- 敷
- 2ヶ月
- 礼
- -
- 保
- -
- 償
- -
コンフォリア新宿イーストサイドタワー 1513号室の物件のお問い合わせ先・取り扱い店舗
ハウスコム 新宿店
- アクセス
-
山手線「新宿駅」徒歩1分
- 住所
- 〒160-0022 東京都新宿区新宿3-36-2 新宿キリンビル3階
- 営業時間
- 10:00~18:00
- 定休日
- 水曜日
- 営業エリア
- 主に新宿区・渋谷区(その他の地域もご紹介可能です)
- 取引態様
- 賃貸仲介業
























