M.Nビル 303号室(4階/1DK)の賃貸物件(賃貸マンション)
神奈川県川崎市宮前区にあるM.Nビル 303号室はフローリング、最上階、角部屋、都市ガス、オンライン相談可などが特徴です。最寄り駅の東急田園都市線溝の口駅からバスで18分、菅生小学校入口から徒歩1分です。M.Nビル 303号室の詳細はハウスコム 桜新町店までお気軽にお問い合わせください!
情報更新日:
次回更新予定日:
※次回更新予定日について:お店側では順次空室確認を行っていますが、次回更新予定日までに空室確認が行えない場合には、この物件情報は自動的に削除されます。
M.Nビル 303号室の賃貸物件部屋概要
家賃 |
5.1万円
初期費用を |
|---|---|
共益費 |
2,000円
入居可能時期 |
敷金/礼金 |
2ヶ月 / - |
保証金/ |
- / - |
最寄駅 |
|
所在地 |
神奈川県川崎市宮前区菅生 |
部屋番号 |
303号室 |
間取り |
1DK |
専有面積 |
25.00㎡ |
築年数 |
1985年9月(築41年) |
階数 |
4階部分(地上4階建) |
方位・位置 |
北 / 角部屋 |
物件種別 |
賃貸マンション |
構造 |
RC |
駐車場 |
- |
小学校学区 |
菅生小学校 |
中学校学区 |
菅生中学校 |
他の空き部屋 |
ー |
- 学区データについて
- ※学区データは必ずしも正確とは限りません。詳細に関しては最寄店舗または各自治体の教育委員会に必ずご確認ください。
M.Nビル 303号室の特徴
契約条件
ご契約時に保証人は不要です。 礼金が無料なため、初期費用が比較的安くなる傾向にあります。
室内設備
洗濯に便利な設備として、室内洗濯機置場があります。
居室状況
お部屋の床は、フローリングとなっています。収納スペースとして、基本的な居室にクローゼットがあります。
建物設備共用部分
居室外の専有スペースとして、洗濯物を干すなどの用途として利用できるバルコニーがあります。
周辺施設
この物件の学区は、菅生小学校区・菅生中学校区です。
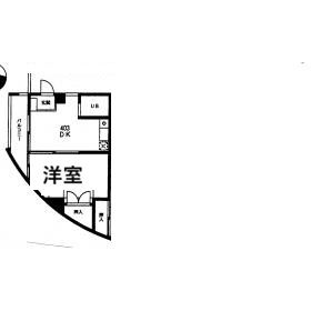
M.Nビル 303号室の間取り
間取り:1DK
間取詳細:1DK
専有面積:25.00㎡
方位:北
部屋位置:角部屋
M.Nビル 303号室の設備
収納
クローゼット
バルコニー
バルコニー
ルーフバルコニー
室内設備
フローリング
室内洗濯機置場
位置・立地
2階以上
最上階
角部屋
インフラ
都市ガス
入居条件
オンライン相談可
オンライン内見可
保証人不要
ライフステージ
カップルに人気の設備
家族に人気の設備
夫婦に人気の設備
三世代で人気の設備
こだわり
外で子どもと遊びたい
雨の日でも洗濯したい
洋室で暮らしたい
趣味
ガーデニングが好き
M.Nビル 303号室の賃貸契約情報
毎月支払う |
家賃5.1万円/月共益費2,000円/月 |
|---|---|
初期費用 |
敷金2ヶ月 (10.2万円)礼金-保証金-敷引き償却金- |
更新料 |
25,500円 |
鍵交換費用 |
- |
室内清掃費用 |
- |
駐車場料金 |
- |
損保・ |
借家賠付きの火災保険にご加入いただきます。 |
保証会社 |
加入要 保証会社利用料:保証会社加入アリ |
契約期間 |
定期借家 2年 |
入居可能日 |
相談 |
フリーレント期間 |
- |
取引形態 |
一般媒介 |
備考 |
保証会社利用必須 保証会社加入アリ |
M.Nビル 303号室の建物情報
建物名称 |
M.Nビル |
|---|---|
最寄駅 |
|
所在地 |
神奈川県川崎市宮前区菅生 |
階層 |
4階部分(地上4階建) |
構造 |
RC |
築年数 |
1985年9月(築41年) |
駐車場 |
- |
小学校学区 |
菅生小学校 |
中学校学区 |
菅生中学校 |
1/5 周辺
- 学区データについて
- ※学区データは必ずしも正確とは限りません。詳細に関しては最寄店舗または各自治体の教育委員会に必ずご確認ください。
無料この物件に問い合わせ
- M.Nビル 303号室

-
5.1万円
(共益費
2,000円)
- 敷
- 2ヶ月
- 礼
- -
- 保
- -
- 償
- -
M.Nビル 303号室の物件のお問い合わせ先・取り扱い店舗
ハウスコム 桜新町店
土日営業
- アクセス
-
東急田園都市線「桜新町駅」徒歩3分
- 住所
- 〒154-0015 東京都世田谷区桜新町1丁目17−13 GBJ桜新町ビル3階
- 営業時間
- 10:00~18:00
- 定休日
- 水曜日
- 営業エリア
- 世田谷区、目黒区、神奈川県
- 取引態様
- 賃貸仲介業
お問い合わせNo. HC2-365916-303-0016



























