二子ハイム 102号室(1階/1R)の賃貸物件(賃貸アパート)
神奈川県川崎市高津区にある二子ハイム 102号室は照明器具付、角部屋、インターネット可、CATV、駐輪場などが特徴です。最寄り駅の東急田園都市線二子新地駅から徒歩1分です。二子ハイム 102号室の詳細はハウスコム 溝の口店までお気軽にお問い合わせください!
情報更新日:
次回更新予定日:
※次回更新予定日について:お店側では順次空室確認を行っていますが、次回更新予定日までに空室確認が行えない場合には、この物件情報は自動的に削除されます。
二子ハイム 102号室の賃貸物件部屋概要
家賃 |
5万円
初期費用を |
|---|---|
共益費 |
2,000円
入居可能時期 |
敷金/礼金 |
- / - |
保証金/ |
- / - |
最寄駅 |
|
所在地 |
神奈川県川崎市高津区二子 |
部屋番号 |
102号室 |
間取り |
1R(洋8) |
専有面積 |
17.39㎡ |
築年数 |
1995年3月(築31年) |
階数 |
1階部分(地上2階建) |
方位・位置 |
南東 / 角部屋 |
物件種別 |
賃貸アパート |
構造 |
木造 |
駐車場 |
- |
小学校学区 |
高津小学校 |
中学校学区 |
西高津中学校 |
他の空き部屋 |
101号室 |
- 学区データについて
- ※学区データは必ずしも正確とは限りません。詳細に関しては最寄店舗または各自治体の教育委員会に必ずご確認ください。
二子ハイム 102号室の特徴
契約条件
ご契約時に保証人は不要です。 敷金と礼金が無料なため、初期費用が比較的安くなる傾向にあります。
セキュリティ
来客時には居室内のテレビモニターにて訪問者の顔を確認することができます。
室内設備
ガスコンロが備え付けられています。
居室状況
お部屋の床は、フローリングとなっており、エアコンが設置されています。 照明器具が備え付けられており、入居後すぐ生活が始められます。 収納スペースとして、玄関にはシューズボックスがあります。
建物設備共用部分
駐輪場が利用できます。
周辺施設
この物件の学区は、高津小学校区・西高津中学校区です。
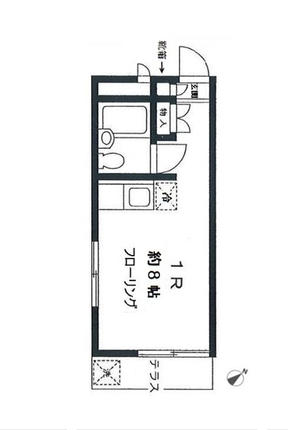
二子ハイム 102号室の間取り
間取り:1R
間取詳細:1R(洋8)
専有面積:17.39㎡
方位:南東
部屋位置:角部屋
二子ハイム 102号室の設備
キッチン
ガスコンロ
玄関
TVモニタ付インターホン
収納
シューズボックス
室内設備
エアコン
フローリング
照明器具付
位置・立地
1階
角部屋
インフラ
インターネット可
CATV
都市ガス
建物設備
駐輪場
入居条件
オンライン相談可
オンライン内見可
保証人不要
ライフステージ
一人暮らしに人気の設備
家族に人気の設備
夫婦に人気の設備
三世代で人気の設備
こだわり
洋室で暮らしたい
寝るためだけの部屋
二子ハイム 102号室の賃貸契約情報
毎月支払う |
家賃5万円/月共益費2,000円/月 |
|---|---|
初期費用 |
敷金-礼金-保証金-敷引き償却金- |
更新料 |
50,000円 |
鍵交換費用 |
16,500円 |
室内清掃費用 |
- |
駐車場料金 |
- |
損保・ |
借家賠付きの火災保険にご加入いただきます。 |
保証会社 |
加入要 保証会社利用料:初回保証料:月額総支払額の60% 月額保証料:月額総支払額の1% (更新保証料なし) |
契約期間 |
2年 |
入居可能日 |
2026年04月下旬 |
フリーレント期間 |
- |
取引形態 |
一般媒介 |
備考 |
火災保険加入要 保証会社加入要:初回契約時 月額総支払額の60%、月額保証料 月額総支払額の1%(更新保証料なし) 鍵交換費用:16500円(入居時) 室内清掃費用:41800円(退去時) |
二子ハイム 102号室の建物情報
建物名称 |
二子ハイム |
|---|---|
最寄駅 |
|
所在地 |
神奈川県川崎市高津区二子 |
階層 |
1階部分(地上2階建) |
構造 |
木造 |
築年数 |
1995年3月(築31年) |
駐車場 |
- |
小学校学区 |
高津小学校 |
中学校学区 |
西高津中学校 |
1/4 外観
- 学区データについて
- ※学区データは必ずしも正確とは限りません。詳細に関しては最寄店舗または各自治体の教育委員会に必ずご確認ください。
無料この物件に問い合わせ
- 二子ハイム 102号室

-
5万円
(共益費
2,000円)
- 敷
- -
- 礼
- -
- 保
- -
- 償
- -
二子ハイム 102号室の物件のお問い合わせ先・取り扱い店舗
ハウスコム 溝の口店
水曜日営業
土日営業
年中無休(年末年始などを除く)
- アクセス
-
東急田園都市線「溝の口駅」北口徒歩2分
- 住所
- 〒213-0001 神奈川県川崎市高津区溝口1丁目8−1 溝ノ口丸広ビル1階
- 営業時間
- 10:00~18:00
- 定休日
- なし
- 営業エリア
- 川崎市中原区,川崎市多摩区,川崎市宮前区,川崎市高津区,稲城市
- 取引態様
- 賃貸仲介業
お問い合わせNo. HC2-213329-102-0073


























