アバロン 204号室(2階/1R)の賃貸物件(賃貸アパート)
愛知県名古屋市名東区にあるアバロン 204号室は電気コンロ、ルーフバルコニー、角部屋、インターネット可、2人入居可などが特徴です。最寄り駅の名古屋市営地下鉄 東山線星ヶ丘駅からバスで15分、極楽から徒歩8分です。アバロン 204号室の詳細はハウスコム 藤が丘店までお気軽にお問い合わせください!
情報更新日:
次回更新予定日:
※次回更新予定日について:お店側では順次空室確認を行っていますが、次回更新予定日までに空室確認が行えない場合には、この物件情報は自動的に削除されます。
アバロン 204号室の賃貸物件部屋概要
家賃 |
2万円
初期費用を |
|---|---|
共益費 |
5,000円
入居可能時期 |
敷金/礼金 |
- / - |
保証金/ |
- / - |
最寄駅 |
|
所在地 |
愛知県名古屋市名東区極楽 |
部屋番号 |
204号室 |
間取り |
1R(洋7) |
専有面積 |
19.87㎡ |
築年数 |
1996年12月(築30年) |
階数 |
2階部分(地上2階建) |
方位・位置 |
東 / 角部屋 |
物件種別 |
賃貸アパート |
構造 |
木造 |
駐車場 |
6,600円 |
小学校学区 |
極楽小学校 |
中学校学区 |
高針台中学校 |
他の空き部屋 |
ー |
- 学区データについて
- ※学区データは必ずしも正確とは限りません。詳細に関しては最寄店舗または各自治体の教育委員会に必ずご確認ください。
アバロン 204号室の特徴
契約条件
この物件は、2人入居もご契約できます。 また、ご契約時に保証人は不要です。 敷金と礼金が無料なため、初期費用が比較的安くなる傾向にあります。
セキュリティ
来客時には居室内のテレビモニターにて訪問者の顔を確認することができます。
室内設備
電気コンロが設置されており、キッチン設備として冷蔵庫が備え付けられています。 洗濯に便利な設備として、室内洗濯機置場があります。
居室状況
居室には、ロフトが設置されており大規模な収納スペースやセパレートされた寝室として活用できます。 お部屋の床は、フローリングとなっており、エアコンが設置されています。 照明器具が備え付けられており、入居後すぐ生活が始められます。
建物設備共用部分
居室外の専有スペースとして、洗濯物を干すなどの用途として利用できるバルコニーがあります。 駐輪場が利用できます。
周辺施設
この物件の学区は、極楽小学校区・高針台中学校区です。
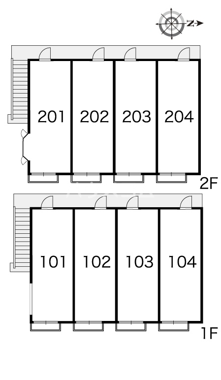
アバロン 204号室の間取り
間取り:1R
間取詳細:1R(洋7)
専有面積:19.87㎡
方位:東
部屋位置:角部屋
アバロン 204号室の設備
キッチン
電気コンロ
冷蔵庫付
バス・トイレ
バス・トイレ別
玄関
TVモニタ付インターホン
バルコニー
バルコニー
ルーフバルコニー
室内設備
エアコン
フローリング
室内洗濯機置場
ロフト付
照明器具付
位置・立地
2階以上
最上階
角部屋
インフラ
インターネット可
プロパンガス
建物設備
駐輪場
入居条件
2人入居可
オンライン相談可
オンライン内見可
保証人不要
ライフステージ
一人暮らしに人気の設備
カップルに人気の設備
家族に人気の設備
夫婦に人気の設備
三世代で人気の設備
こだわり
外で子どもと遊びたい
雨の日でも洗濯したい
洋室で暮らしたい
趣味
ガーデニングが好き
アバロン 204号室の賃貸契約情報
毎月支払う |
家賃2万円/月共益費5,000円/月 |
|---|---|
初期費用 |
敷金-礼金-保証金-敷引き償却金- |
更新料 |
- |
鍵交換費用 |
23,100円 |
室内清掃費用 |
- |
24時間サポート料 |
24,420円 |
駐車場料金 |
6,600円 |
損保・ |
借家賠付きの火災保険にご加入いただきます。 |
保証会社 |
加入要 保証会社利用料:初回保証料:37500円 |
契約期間 |
2年 |
入居可能日 |
相談 |
フリーレント期間 |
- |
取引形態 |
一般媒介 |
備考 |
ディンプルキーの場合は28,000円(税別) 60歳以上加入必須 初回登録料10,000円(税別) |
アバロン 204号室の建物情報
建物名称 |
アバロン |
|---|---|
最寄駅 |
|
所在地 |
愛知県名古屋市名東区極楽 |
階層 |
2階部分(地上2階建) |
構造 |
木造 |
築年数 |
1996年12月(築30年) |
駐車場 |
6,600円 |
小学校学区 |
極楽小学校 |
中学校学区 |
高針台中学校 |
- 学区データについて
- ※学区データは必ずしも正確とは限りません。詳細に関しては最寄店舗または各自治体の教育委員会に必ずご確認ください。
無料この物件に問い合わせ
- アバロン 204号室

-
2万円
(共益費
5,000円)
- 敷
- -
- 礼
- -
- 保
- -
- 償
- -
アバロン 204号室の物件のお問い合わせ先・取り扱い店舗
ハウスコム 藤が丘店
- アクセス
-
名古屋市営地下鉄 東山線「藤が丘駅」徒歩2分
- 住所
- 〒465-0033 愛知県名古屋市名東区明が丘123−2 第一明が丘ビル 1階
- 営業時間
- 10:00~18:00
- 定休日
- 水曜日
- 営業エリア
- 名東区,長久手市,日進市,尾張旭市,瀬戸市、守山区
- 取引態様
- 賃貸仲介業































