中野イーストハイム 205号室(2階/1R)の賃貸物件(賃貸アパート)
東京都中野区にある中野イーストハイム 205号室はIHコンロ、エアコン、最上階、オンライン相談可、即入居可などが特徴です。最寄り駅の東京メトロ 丸ノ内線方南町支線中野新橋駅から徒歩4分です。中野イーストハイム 205号室の詳細はハウスコム 中野店までお気軽にお問い合わせください!
情報更新日:
次回更新予定日:
※次回更新予定日について:お店側では順次空室確認を行っていますが、次回更新予定日までに空室確認が行えない場合には、この物件情報は自動的に削除されます。
中野イーストハイム 205号室の賃貸物件部屋概要
家賃 |
7万円
初期費用を |
|---|---|
共益費 |
5,000円
入居可能時期 |
敷金/礼金 |
- / - |
保証金/ |
- / - |
最寄駅 |
|
所在地 |
東京都中野区本町 |
部屋番号 |
205号室 |
間取り |
1R(洋6) |
専有面積 |
14.58㎡ |
築年数 |
1989年6月(築37年) |
階数 |
2階部分(地上2階建) |
方位・位置 |
東 / その他 |
物件種別 |
賃貸アパート |
構造 |
木造 |
駐車場 |
- |
小学校学区 |
中野本郷小学校 |
中学校学区 |
第二中学校 |
他の空き部屋 |
ー |
- 学区データについて
- ※学区データは必ずしも正確とは限りません。詳細に関しては最寄店舗または各自治体の教育委員会に必ずご確認ください。
中野イーストハイム 205号室の特徴
契約条件
敷金と礼金が無料なため、初期費用が比較的安くなる傾向にあります。
セキュリティ
来客時には居室内のテレビモニターにて訪問者の顔を確認することができます。
室内設備
システムキッチンには、IHコンロが備え付けられています。 洗濯に便利な設備として、室内洗濯機置場があります。
居室状況
お部屋の床は、フローリングとなっており、エアコンが設置されています。 収納スペースとして、基本的な居室にクローゼットがあります。
周辺施設
この物件の学区は、中野本郷小学校区・第二中学校区です。
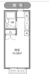
中野イーストハイム 205号室の間取り
間取り:1R
間取詳細:1R(洋6)
専有面積:14.58㎡
方位:東
部屋位置:その他
中野イーストハイム 205号室の設備
キッチン
システムキッチン
IHコンロ
玄関
TVモニタ付インターホン
収納
クローゼット
室内設備
エアコン
フローリング
室内洗濯機置場
位置・立地
2階以上
最上階
インフラ
インターネット可
都市ガス
入居条件
オンライン相談可
オンライン内見可
即入居可
ライフステージ
一人暮らしに人気の設備
カップルに人気の設備
家族に人気の設備
夫婦に人気の設備
三世代で人気の設備
こだわり
雨の日でも洗濯したい
洋室で暮らしたい
中野イーストハイム 205号室の賃貸契約情報
毎月支払う |
家賃7万円/月共益費5,000円/月 |
|---|---|
初期費用 |
敷金-礼金-保証金-敷引き償却金- |
更新料 |
70,000円 |
鍵交換費用 |
- |
室内清掃費用 |
- |
サポート24 |
22,000円 |
駐車場料金 |
- |
損保・ |
借家賠付きの火災保険にご加入いただきます。 |
保証会社 |
加入要 保証会社利用料:家賃総額の50% |
契約期間 |
2年 |
入居可能日 |
即入居可 |
フリーレント期間 |
- |
取引形態 |
一般媒介 |
備考 |
火災保険:18000円 |
中野イーストハイム 205号室の建物情報
建物名称 |
中野イーストハイム |
|---|---|
最寄駅 |
|
所在地 |
東京都中野区本町 |
階層 |
2階部分(地上2階建) |
構造 |
木造 |
築年数 |
1989年6月(築37年) |
駐車場 |
- |
小学校学区 |
中野本郷小学校 |
中学校学区 |
第二中学校 |
1/10 外観
- 学区データについて
- ※学区データは必ずしも正確とは限りません。詳細に関しては最寄店舗または各自治体の教育委員会に必ずご確認ください。
無料この物件に問い合わせ
- 中野イーストハイム 205号室

-
7万円
(共益費
5,000円)
- 敷
- -
- 礼
- -
- 保
- -
- 償
- -
中野イーストハイム 205号室の物件のお問い合わせ先・取り扱い店舗
ハウスコム 中野店
駅徒歩1分以内
駅徒歩3分以内
駅徒歩5分以内
- アクセス
-
中央本線(JR東日本)「中野駅」徒歩1分
東京メトロ 東西線「中野駅」徒歩1分
- 住所
- 〒164-0001 東京都中野区中野2-24-9 ナカノサウステラ レジデンス棟1階
- 営業時間
- 10:00~18:00
- 定休日
- なし
- 営業エリア
- 【中野区・杉並区・新宿区・練馬区・渋谷区・世田谷区・豊島区】
- 取引態様
- 賃貸仲介業
お問い合わせNo. HC2-1700398-205-0174






























