バンベール植田ヒルズ2号棟 505号室(5階/3LDK)の賃貸物件(賃貸マンション)
愛知県名古屋市天白区にあるバンベール植田ヒルズ2号棟 505号室はシステムキッチン、食洗機、温水洗浄便座、和室あり、オンライン相談可などが特徴です。最寄り駅の名古屋市営地下鉄 鶴舞線植田駅から徒歩5分です。バンベール植田ヒルズ2号棟 505号室の詳細はハウスコム 野並店までお気軽にお問い合わせください!
情報更新日:
次回更新予定日:
※次回更新予定日について:お店側では順次空室確認を行っていますが、次回更新予定日までに空室確認が行えない場合には、この物件情報は自動的に削除されます。
バンベール植田ヒルズ2号棟 505号室の賃貸物件部屋概要
家賃 |
13.8万円
初期費用を |
|---|---|
共益費 |
-
入居可能時期 |
敷金/礼金 |
2ヶ月 / - |
保証金/ |
- / - |
最寄駅 |
|
所在地 |
愛知県名古屋市天白区植田 |
部屋番号 |
505号室 |
間取り |
3LDK(LDK17.6・洋6・洋7・和6) |
専有面積 |
82.11㎡ |
築年数 |
2013年11月(築13年) |
階数 |
5階部分(地上6階建) |
方位・位置 |
南西 / その他 |
物件種別 |
賃貸マンション |
構造 |
RC |
駐車場 |
2,000円 |
小学校学区 |
植田南小学校 |
中学校学区 |
植田中学校 |
他の空き部屋 |
ー |
- 学区データについて
- ※学区データは必ずしも正確とは限りません。詳細に関しては最寄店舗または各自治体の教育委員会に必ずご確認ください。
バンベール植田ヒルズ2号棟 505号室の特徴
-
一人暮らしに人気の設備

-
カップルに人気の設備

-
家族に人気の設備

-
夫婦に人気の設備

-
三世代で人気の設備

-
キッチン重視

-
外で子どもと遊びたい

-
身だしなみに気をつかいたい

-
雨の日でも洗濯したい

-
洋室で暮らしたい

-
ピアノやドラムが弾きたい

-
推し活グッズを飾りたい

-
ガーデニングが好き

契約条件
楽器演奏もご相談ください。 礼金が無料なため、初期費用が比較的安くなる傾向にあります。
セキュリティ
この物件の建物には、オートロックや宅配ボックスが設置されており、来客時には居室内のテレビモニターにて訪問者の顔を確認することができます。
室内設備
システムキッチンには、キッチン設備として食洗機が備え付けられています。 お風呂とトイレは別です。お風呂には、追い焚き機能が備わっています。 トイレは、温水洗浄便座機能付きになります。 女性に嬉しい設備のシャワーの付いている洗面化粧台があります。 洗濯に便利な設備として、浴室乾燥機も設置されているので、梅雨時の生乾き臭も比較的防ぐことができます。
居室状況
居室には、和室の居室もあり、子育てやリラックススペースとしての利用もできます。 お部屋の床は、フローリングとなっており、エアコンと一部床下暖房が設置されています。 収納スペースとして、基本的な居室にクローゼットを設置、玄関にはシューズボックスがあります。
建物設備共用部分
居室外の専有スペースとして、洗濯物を干すなどの用途として利用できるバルコニーがあります。 建物の共用スペースに、日々の出入に便利なエレベーターや、急な外出や不在がちのご家庭の荷物受け取りに便利な宅配ボックスが設置されています。
周辺施設
この物件の学区は、植田南小学校区・植田中学校区です。
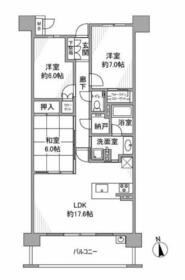
バンベール植田ヒルズ2号棟 505号室の間取り
間取り:3LDK
間取詳細:3LDK(LDK17.6・洋6・洋7・和6)
専有面積:82.11㎡
方位:南西
部屋位置:その他
バンベール植田ヒルズ2号棟 505号室の設備
キッチン
システムキッチン
カウンターキッチン
食洗機
バス・トイレ
バス・トイレ別
追い焚き
浴室乾燥機
温水洗浄便座
独立洗面台
シャワー付洗面化粧台
玄関
TVモニタ付インターホン
オートロック
宅配ボックス
収納
クローゼット
シューズボックス
バルコニー
バルコニー
ルーフバルコニー
室内設備
エアコン
フローリング
床下暖房
和室あり
位置・立地
2階以上
インフラ
CATV
都市ガス
建物設備
エレベーター
分譲賃貸
入居条件
楽器可・相談
オンライン相談可
オンライン内見可
ライフステージ
一人暮らしに人気の設備
カップルに人気の設備
家族に人気の設備
夫婦に人気の設備
三世代で人気の設備
こだわり
キッチン重視
外で子どもと遊びたい
身だしなみに気をつかいたい
雨の日でも洗濯したい
洋室で暮らしたい
趣味
ピアノやドラムが弾きたい
推し活グッズを飾りたい
ガーデニングが好き
バンベール植田ヒルズ2号棟 505号室の賃貸契約情報
毎月支払う |
家賃13.8万円/月共益費- |
|---|---|
初期費用 |
敷金2ヶ月 (27.6万円)礼金-保証金-敷引き償却金- |
更新料 |
- |
鍵交換費用 |
- |
室内清掃費用 |
- |
駐車場登録料 1台(利用時のみ) |
11,000円 |
除菌施工料(契約時のみ) |
19,800円 |
駐車場料金 |
2,000円 |
損保・ |
借家賠付きの火災保険にご加入いただきます。 |
保証会社 |
加入要 保証会社利用料:保証会社 要:初回 賃料総額100%+月額 賃料総額2%(最低1,000円) |
契約期間 |
定期借家 2年 |
入居可能日 |
2026年04月中旬 |
フリーレント期間 |
- |
取引形態 |
一般媒介 |
備考 |
エアコン設備対象外 アップライトピアノ搬入可 |
バンベール植田ヒルズ2号棟 505号室の建物情報
建物名称 |
バンベール植田ヒルズ2号棟 |
|---|---|
最寄駅 |
|
所在地 |
愛知県名古屋市天白区植田 |
階層 |
5階部分(地上6階建) |
構造 |
RC |
築年数 |
2013年11月(築13年) |
駐車場 |
2,000円 |
小学校学区 |
植田南小学校 |
中学校学区 |
植田中学校 |
- 学区データについて
- ※学区データは必ずしも正確とは限りません。詳細に関しては最寄店舗または各自治体の教育委員会に必ずご確認ください。
無料この物件に問い合わせ
- バンベール植田ヒルズ2号棟 505号室

-
13.8万円
(共益費
-)
- 敷
- 2ヶ月
- 礼
- -
- 保
- -
- 償
- -
バンベール植田ヒルズ2号棟 505号室の物件のお問い合わせ先・取り扱い店舗
ハウスコム 野並店
- アクセス
-
名古屋市営地下鉄 桜通線「野並駅」2番出口徒歩1分
- 住所
- 〒468-0045 愛知県名古屋市天白区野並3丁目225−1 サーナ野並 1F
- 営業時間
- 10:00~18:00
- 定休日
- なし
- 営業エリア
- 名古屋市天白区,名古屋市緑区,名古屋市南区,名古屋市瑞穂区,東海市,大府市,豊明市,知多市,東郷町,東浦町
- 取引態様
- 賃貸仲介業
















