雪月花 302号室(3階/2LDK)の賃貸物件(賃貸マンション)
京都府京都市下京区にある雪月花 302号室はTVモニタ付インターホン、シューズボックス、2階以上、BS、2人入居可などが特徴です。最寄り駅の阪急京都線京都河原町駅から徒歩5分です。雪月花 302号室の詳細はクラスモ FC四条烏丸店までお気軽にお問い合わせください!
情報更新日:
次回更新予定日:
※次回更新予定日について:お店側では順次空室確認を行っていますが、次回更新予定日までに空室確認が行えない場合には、この物件情報は自動的に削除されます。
雪月花 302号室の賃貸物件部屋概要
家賃 |
17万円
初期費用を |
|---|---|
共益費 |
5,000円
入居可能時期 |
敷金/礼金 |
1ヶ月 / 2ヶ月 |
保証金/ |
- / - |
最寄駅 |
|
所在地 |
京都府京都市下京区和泉屋町 |
部屋番号 |
302号室 |
間取り |
2LDK(LDK14.5・洋10・洋6) |
専有面積 |
62.27㎡ |
築年数 |
1990年5月(築36年) |
階数 |
3階部分(地上6階建) |
方位・位置 |
東 / その他 |
物件種別 |
賃貸マンション |
構造 |
RC |
駐車場 |
無 |
小学校学区 |
洛央小学校 |
中学校学区 |
下京中学校 |
他の空き部屋 |
501号室 |
- 学区データについて
- ※学区データは必ずしも正確とは限りません。詳細に関しては最寄店舗または各自治体の教育委員会に必ずご確認ください。
雪月花 302号室の特徴
契約条件
この物件は、2人入居もご契約できます。 法人契約・事務所のご利用もご相談ください。 お支払いは、初期費用がクレジットカードにて決済できます。
セキュリティ
来客時には居室内のテレビモニターにて訪問者の顔を確認することができます。
室内設備
システムキッチンには、IHコンロが備え付けられています。 女性に嬉しい設備の独立した洗面化粧台があります。 洗濯に便利な設備として、室内洗濯機置場があります。
居室状況
お部屋の床は、フローリングとなっており、エアコンと一部床下暖房が設置されています。 収納スペースとして、基本的な居室にクローゼットを設置、玄関にはシューズボックスがあります。
建物設備共用部分
建物の共用スペースに、日々の出入に便利なエレベーターが設置されています。
周辺施設
この物件の学区は、洛央小学校区・下京中学校区です。近くには、徒歩5分(377m)でドラッグストアがあります。
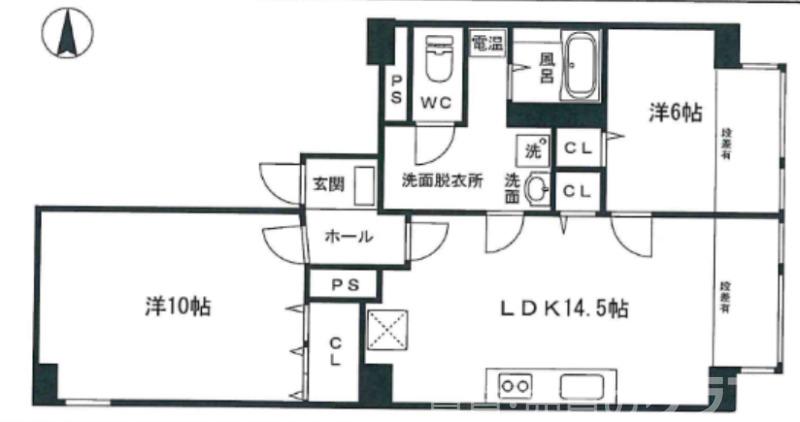
雪月花 302号室の間取り
間取り:2LDK
間取詳細:2LDK(LDK14.5・洋10・洋6)
専有面積:62.27㎡
方位:東
部屋位置:その他
雪月花 302号室の設備
キッチン
システムキッチン
IHコンロ
バス・トイレ
バス・トイレ別
独立洗面台
玄関
TVモニタ付インターホン
収納
クローゼット
シューズボックス
室内設備
エアコン
フローリング
床下暖房
室内洗濯機置場
位置・立地
2階以上
インフラ
インターネット可
BS
CS
都市ガス
建物設備
エレベーター
入居条件
2人入居可
事務所可・相談
即入居可
ライフステージ
一人暮らしに人気の設備
カップルに人気の設備
家族に人気の設備
夫婦に人気の設備
三世代で人気の設備
こだわり
雨の日でも洗濯したい
洋室で暮らしたい
お得な条件
初期費用カード決済可
雪月花 302号室の賃貸契約情報
毎月支払う |
家賃17万円/月共益費5,000円/月 |
|---|---|
初期費用 |
敷金1ヶ月 (17万円)礼金2ヶ月 (34万円)保証金-敷引き償却金- |
更新料 |
1ヶ月 |
鍵交換費用 |
22,000円 |
室内清掃費用 |
- |
水道料 |
3,000円 |
駐車場料金 |
無 |
損保・ |
借家賠付きの火災保険にご加入いただきます。 |
保証会社 |
加入要 保証会社:ジェイリース 保証会社利用料:初回契約時:50%、更新時:10,000円、口座振替手数料440円/月額 |
契約期間 |
2年 |
入居可能日 |
即入居可 |
フリーレント期間 |
- |
取引形態 |
一般媒介 |
備考 |
弊社は来店不要のオンライン内見、オンライン申込みが可能です。各種クレジットカード決済もご利用可能です。 |
雪月花 302号室の建物情報
建物名称 |
雪月花 |
|---|---|
最寄駅 |
|
所在地 |
京都府京都市下京区和泉屋町 |
階層 |
3階部分(地上6階建) |
構造 |
RC |
築年数 |
1990年5月(築36年) |
駐車場 |
無 |
小学校学区 |
洛央小学校 |
中学校学区 |
下京中学校 |
- 学区データについて
- ※学区データは必ずしも正確とは限りません。詳細に関しては最寄店舗または各自治体の教育委員会に必ずご確認ください。
無料この物件に問い合わせ
- 雪月花 302号室

-
17万円
(共益費
5,000円)
- 敷
- 1ヶ月
- 礼
- 2ヶ月
- 保
- -
- 償
- -
雪月花 302号室の物件のお問い合わせ先・取り扱い店舗
クラスモ FC四条烏丸店
- アクセス
-
京都市営地下鉄 烏丸線「四条駅」徒歩3分
阪急京都線「烏丸駅」徒歩3分
京都市営地下鉄 烏丸線「烏丸御池駅」徒歩13分
- 住所
- 〒600-8492 京都府京都市下京区月鉾町47-4 四条廣田ビル1F
- 営業時間
- 10:00~19:00
- 定休日
- なし(年末年始)
- 営業エリア
- 京都市内全域 北区・上京区・中京区・下京区・東山区・右京区 左京区・南区・伏見区・西京区・山科区
- 取引態様
- 賃貸仲介業・FC店




































