アマンE.S.K.青山 901号室(9階/1LDK)の賃貸物件(賃貸マンション)
東京都渋谷区にあるアマンE.S.K.青山 901号室は独立洗面台、ウォークインクローゼット、ルーフバルコニー、オンライン相談可、オンライン内見可などが特徴です。最寄り駅の東京メトロ 副都心線渋谷駅から徒歩7分です。アマンE.S.K.青山 901号室の詳細はハウスコム 新宿店までお気軽にお問い合わせください!
情報更新日:
次回更新予定日:
※次回更新予定日について:お店側では順次空室確認を行っていますが、次回更新予定日までに空室確認が行えない場合には、この物件情報は自動的に削除されます。
アマンE.S.K.青山 901号室の賃貸物件部屋概要
家賃 |
40万円
初期費用を |
|---|---|
共益費 |
-
入居可能時期 |
敷金/礼金 |
1ヶ月 / 1ヶ月 |
保証金/ |
- / - |
最寄駅 |
|
所在地 |
東京都渋谷区渋谷 |
部屋番号 |
901号室 |
間取り |
1LDK(LDK15.8・洋5.6) |
専有面積 |
58.25㎡ |
築年数 |
2023年5月(築3年) |
階数 |
9階部分(地上11階建) |
方位・位置 |
北東 / その他 |
物件種別 |
賃貸マンション |
構造 |
RC |
駐車場 |
無 |
小学校学区 |
神南小学校 |
中学校学区 |
松濤中学校 |
他の空き部屋 |
ー |
- 学区データについて
- ※学区データは必ずしも正確とは限りません。詳細に関しては最寄店舗または各自治体の教育委員会に必ずご確認ください。
アマンE.S.K.青山 901号室の特徴
-
一人暮らしに人気の設備

-
カップルに人気の設備

-
家族に人気の設備

-
夫婦に人気の設備

-
三世代で人気の設備

-
外で子どもと遊びたい

-
雨の日でも洗濯したい

-
洋室で暮らしたい

-
服やおしゃれが好き

-
ガーデニングが好き

セキュリティ
この物件の建物には、オートロックや宅配ボックスが設置されております。
室内設備
システムキッチンには、ガスコンロが備え付けられています。 お風呂とトイレは別です。お風呂には、追い焚き機能が備わっています。 女性に嬉しい設備の独立した洗面化粧台があります。 洗濯に便利な設備として、室内洗濯機置場があります。浴室乾燥機も設置されているので、梅雨時の生乾き臭も比較的防ぐことができます。
居室状況
お部屋の床は、フローリングとなっており、エアコンが設置されています。 収納スペースとして、基本的な居室にクローゼットを設置、通常よりも収納力の高いウォークインクローゼットがあります。
建物設備共用部分
居室外の専有スペースとして、洗濯物を干すなどの用途として利用できるバルコニーがあります。 建物の共用スペースに、日々の出入に便利なエレベーターや、急な外出や不在がちのご家庭の荷物受け取りに便利な宅配ボックスが設置されています。 駐輪場、バイク置き場が利用できます。
周辺施設
この物件の学区は、神南小学校区・松濤中学校区です。
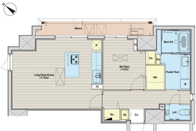
アマンE.S.K.青山 901号室の間取り
間取り:1LDK
間取詳細:1LDK(LDK15.8・洋5.6)
専有面積:58.25㎡
方位:北東
部屋位置:その他
アマンE.S.K.青山 901号室の設備
キッチン
システムキッチン
ガスコンロ
バス・トイレ
バス・トイレ別
追い焚き
浴室乾燥機
独立洗面台
玄関
オートロック
宅配ボックス
収納
クローゼット
ウォークインクローゼット
バルコニー
バルコニー
ルーフバルコニー
室内設備
エアコン
フローリング
室内洗濯機置場
位置・立地
2階以上
建物設備
エレベーター
駐輪場
バイク置き場
入居条件
オンライン相談可
オンライン内見可
ライフステージ
一人暮らしに人気の設備
カップルに人気の設備
家族に人気の設備
夫婦に人気の設備
三世代で人気の設備
こだわり
外で子どもと遊びたい
雨の日でも洗濯したい
洋室で暮らしたい
趣味
服やおしゃれが好き
ガーデニングが好き
アマンE.S.K.青山 901号室の賃貸契約情報
毎月支払う |
家賃40万円/月共益費- |
|---|---|
初期費用 |
敷金1ヶ月 (40万円)礼金1ヶ月 (40万円)保証金-敷引き償却金- |
更新料 |
400,000円 |
鍵交換費用 |
- |
室内清掃費用 |
- |
室内清掃費 |
108,927円 |
鍵交換費 |
33,000円 |
駐車場料金 |
無 |
損保・ |
借家賠付きの火災保険にご加入いただきます。 |
保証会社 |
加入要 保証会社利用料:保証会社名:クレディセゾン・レジデントアシスタンス株式会社/初回保証委託料(最低15000円):月額賃料等の50%、 2年目以降:10000円/年 |
契約期間 |
2年 |
入居可能日 |
2026年05月下旬 |
フリーレント期間 |
- |
取引形態 |
一般媒介 |
備考 |
駐輪場1住戸1台込無料(ラック下段区画25番指定・移動追加不可)シール代:1100円 |
アマンE.S.K.青山 901号室の建物情報
建物名称 |
アマンE.S.K.青山 |
|---|---|
最寄駅 |
|
所在地 |
東京都渋谷区渋谷 |
階層 |
9階部分(地上11階建) |
構造 |
RC |
築年数 |
2023年5月(築3年) |
駐車場 |
無 |
小学校学区 |
神南小学校 |
中学校学区 |
松濤中学校 |
- 学区データについて
- ※学区データは必ずしも正確とは限りません。詳細に関しては最寄店舗または各自治体の教育委員会に必ずご確認ください。
無料この物件に問い合わせ
- アマンE.S.K.青山 901号室

-
40万円
(共益費
-)
- 敷
- 1ヶ月
- 礼
- 1ヶ月
- 保
- -
- 償
- -
アマンE.S.K.青山 901号室の物件のお問い合わせ先・取り扱い店舗
ハウスコム 新宿店
- アクセス
-
山手線「新宿駅」徒歩1分
- 住所
- 〒160-0022 東京都新宿区新宿3-36-2 新宿キリンビル3階
- 営業時間
- 10:00~18:00
- 定休日
- 水曜日
- 営業エリア
- 主に新宿区・渋谷区(その他の地域もご紹介可能です)
- 取引態様
- 賃貸仲介業

















