レオパレスPOLESTARⅡ 303号室(3階/1K)の賃貸物件(賃貸マンション)
京都府京都市下京区にあるレオパレスPOLESTARⅡ 303号室は温水洗浄便座、バルコニー、エアコン、室内洗濯機置場、2階以上などが特徴です。最寄り駅の東海道本線(JR西日本)京都駅から徒歩9分です。レオパレスPOLESTARⅡ 303号室の詳細はハウスコム 西院店までお気軽にお問い合わせください!
情報更新日:
次回更新予定日:
※次回更新予定日について:お店側では順次空室確認を行っていますが、次回更新予定日までに空室確認が行えない場合には、この物件情報は自動的に削除されます。
レオパレスPOLESTARⅡ 303号室の賃貸物件部屋概要
家賃 |
8.1万円
初期費用を |
|---|---|
共益費 |
7,000円
入居可能時期 |
敷金/礼金 |
- / 162,000円 |
保証金/ |
- / - |
最寄駅 |
|
所在地 |
京都府京都市下京区材木町 |
部屋番号 |
303号室 |
間取り |
1K |
専有面積 |
19.87㎡ |
築年数 |
2003年7月(築23年) |
階数 |
3階部分(地上3階建) |
方位・位置 |
ー / その他 |
物件種別 |
賃貸マンション |
構造 |
鉄骨造 |
駐車場 |
無 |
小学校学区 |
下京渉成小学校 |
中学校学区 |
下京中学校 |
他の空き部屋 |
301号室 |
- 学区データについて
- ※学区データは必ずしも正確とは限りません。詳細に関しては最寄店舗または各自治体の教育委員会に必ずご確認ください。
レオパレスPOLESTARⅡ 303号室の特徴
契約条件
敷金が無料なため、初期費用が比較的安くなる傾向にあります。
セキュリティ
この物件の建物には、宅配ボックスが設置されており、来客時には居室内のテレビモニターにて訪問者の顔を確認することができます。
室内設備
電気コンロが備え付けられています。 トイレは、温水洗浄便座機能付きになります。 洗濯に便利な設備として、室内洗濯機置場があります。
居室状況
居室には、ロフトが設置されており大規模な収納スペースやセパレートされた寝室として活用できます。 エアコンが設置されています。
建物設備共用部分
居室外の専有スペースとして、洗濯物を干すなどの用途として利用できるバルコニーがあります。 建物の共用スペースに、急な外出や不在がちのご家庭の荷物受け取りに便利な宅配ボックスが設置されています。
周辺施設
この物件の学区は、下京渉成小学校区・下京中学校区です。
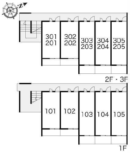
レオパレスPOLESTARⅡ 303号室の間取り
間取り:1K
間取詳細:1K
専有面積:19.87㎡
方位:ー
部屋位置:その他
レオパレスPOLESTARⅡ 303号室の設備
キッチン
電気コンロ
バス・トイレ
バス・トイレ別
温水洗浄便座
玄関
TVモニタ付インターホン
宅配ボックス
バルコニー
バルコニー
ルーフバルコニー
室内設備
エアコン
室内洗濯機置場
ロフト付
位置・立地
2階以上
最上階
インフラ
インターネット可
ライフステージ
一人暮らしに人気の設備
カップルに人気の設備
家族に人気の設備
夫婦に人気の設備
三世代で人気の設備
トレンド
ミニマリスト
こだわり
外で子どもと遊びたい
雨の日でも洗濯したい
趣味
ガーデニングが好き
レオパレスPOLESTARⅡ 303号室の賃貸契約情報
毎月支払う |
家賃8.1万円/月共益費7,000円/月 |
|---|---|
初期費用 |
敷金-礼金162,000円保証金-敷引き償却金- |
更新料 |
- |
鍵交換費用 |
16,500円 |
室内清掃費用 |
41,800円 |
抗菌施工(任意) |
23,760円 |
駐車場料金 |
無 |
損保・ |
借家賠付きの火災保険にご加入いただきます。 |
保証会社 |
加入要 保証会社利用料:保証料:106190円(契約内容により100~120%で変動有)※記載金額は120%の場合 |
契約期間 |
- |
入居可能日 |
2026年04月下旬 |
フリーレント期間 |
- |
取引形態 |
一般媒介 |
備考 |
- |
レオパレスPOLESTARⅡ 303号室の建物情報
建物名称 |
レオパレスPOLESTARⅡ |
|---|---|
最寄駅 |
|
所在地 |
京都府京都市下京区材木町 |
階層 |
3階部分(地上3階建) |
構造 |
鉄骨造 |
築年数 |
2003年7月(築23年) |
駐車場 |
無 |
小学校学区 |
下京渉成小学校 |
中学校学区 |
下京中学校 |
- 学区データについて
- ※学区データは必ずしも正確とは限りません。詳細に関しては最寄店舗または各自治体の教育委員会に必ずご確認ください。
無料この物件に問い合わせ
- レオパレスPOLESTARⅡ 303号室

-
8.1万円
(共益費
7,000円)
- 敷
- -
- 礼
- 162,000円
- 保
- -
- 償
- -
レオパレスPOLESTARⅡ 303号室の物件のお問い合わせ先・取り扱い店舗
ハウスコム 西院店
- アクセス
-
阪急京都線「西院駅」徒歩1分
- 住所
- 〒615-0012 京都府京都市右京区西院高山寺町13番地 西院阪急プラザ1F
- 営業時間
- 10:00~18:00
- 定休日
- 水曜日
- 営業エリア
- 京都市右京区・京都市中京区・京都市下京区・京都市西京区・京都市上京区・京都市南区・京都市北区
- 取引態様
- 賃貸仲介業






















