プレサンス ロジェ 名駅南 1103号室(11階/2LDK)の賃貸物件(賃貸マンション)
愛知県名古屋市中村区にあるプレサンス ロジェ 名駅南 1103号室はルーフバルコニー、室内洗濯機置場、2階以上、エレベーター、防犯カメラなどが特徴です。最寄り駅のあおなみ線(名古屋臨海高速鉄道西名古屋港線)ささしまライブ駅から徒歩13分です。プレサンス ロジェ 名駅南 1103号室の詳細はハウスコム 中村公園店までお気軽にお問い合わせください!
情報更新日:
次回更新予定日:
※次回更新予定日について:お店側では順次空室確認を行っていますが、次回更新予定日までに空室確認が行えない場合には、この物件情報は自動的に削除されます。
プレサンス ロジェ 名駅南 1103号室の賃貸物件部屋概要
家賃 |
13.572万円
初期費用を |
|---|---|
共益費 |
9,280円
入居可能時期 |
敷金/礼金 |
- / 145,000円 |
保証金/ |
- / - |
最寄駅 |
|
所在地 |
愛知県名古屋市中村区名駅南 |
部屋番号 |
1103号室 |
間取り |
2LDK(洋4.5・洋4.5・LDK11) |
専有面積 |
46.61㎡ |
築年数 |
2023年3月(築3年) |
階数 |
11階部分(地上15階建) |
方位・位置 |
ー / その他 |
物件種別 |
賃貸マンション |
構造 |
RC |
駐車場 |
無 |
小学校学区 |
笹島小学校 |
中学校学区 |
笹島中学校 |
他の空き部屋 |
1101号室 903号室 904号室 |
- 学区データについて
- ※学区データは必ずしも正確とは限りません。詳細に関しては最寄店舗または各自治体の教育委員会に必ずご確認ください。
プレサンス ロジェ 名駅南 1103号室の特徴
-
一人暮らしに人気の設備

-
カップルに人気の設備

-
家族に人気の設備

-
夫婦に人気の設備

-
三世代で人気の設備

-
セキュリティ対策重視

-
外で子どもと遊びたい

-
雨の日でも洗濯したい

-
洋室で暮らしたい

-
オークション・通販が好き

-
ガーデニングが好き

契約条件
この物件は、2人入居もご契約できます。 敷金が無料なため、初期費用が比較的安くなる傾向にあります。
セキュリティ
この物件の建物には、オートロックや防犯カメラや宅配ボックスが設置されており、来客時には居室内のテレビモニターにて訪問者の顔を確認することができます。
室内設備
システムキッチンには、ガスコンロが備え付けられています。 女性に嬉しい設備の独立した洗面化粧台があります。 洗濯に便利な設備として、室内洗濯機置場があります。
居室状況
お部屋の床は、フローリングとなっています。インターネットも無料で入居後すぐ生活が始められます。 収納スペースとして、基本的な居室にクローゼットがあります。
建物設備共用部分
居室外の専有スペースとして、洗濯物を干すなどの用途として利用できるバルコニーがあります。 建物の共用スペースに、日々の出入に便利なエレベーターや、いざという時の防犯カメラや、急な外出や不在がちのご家庭の荷物受け取りに便利な宅配ボックスが設置されています。 駐輪場が利用できます。
周辺施設
この物件の学区は、笹島小学校区・笹島中学校区です。
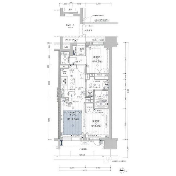
プレサンス ロジェ 名駅南 1103号室の間取り
間取り:2LDK
間取詳細:2LDK(洋4.5・洋4.5・LDK11)
専有面積:46.61㎡
方位:ー
部屋位置:その他
プレサンス ロジェ 名駅南 1103号室の設備
キッチン
システムキッチン
ガスコンロ
バス・トイレ
バス・トイレ別
独立洗面台
玄関
TVモニタ付インターホン
オートロック
宅配ボックス
収納
クローゼット
バルコニー
バルコニー
ルーフバルコニー
室内設備
フローリング
室内洗濯機置場
位置・立地
2階以上
インフラ
インターネット可
都市ガス
建物設備
エレベーター
防犯カメラ
駐輪場
入居条件
2人入居可
ライフステージ
一人暮らしに人気の設備
カップルに人気の設備
家族に人気の設備
夫婦に人気の設備
三世代で人気の設備
こだわり
セキュリティ対策重視
外で子どもと遊びたい
雨の日でも洗濯したい
洋室で暮らしたい
趣味
オークション・通販が好き
ガーデニングが好き
お得な条件
インターネット無料
プレサンス ロジェ 名駅南 1103号室の賃貸契約情報
毎月支払う |
家賃13.572万円/月共益費9,280円/月 |
|---|---|
初期費用 |
敷金-礼金145,000円保証金-敷引き償却金- |
更新料 |
11,000円 |
鍵交換費用 |
35,200円 |
室内清掃費用 |
- |
駐車場料金 |
無 |
損保・ |
借家賠付きの火災保険にご加入いただきます。 |
保証会社 |
加入要 保証会社利用料:初回保証料:総賃料の50% 更新料:総賃料の1.5% |
契約期間 |
1年 |
入居可能日 |
2026年05月中旬 |
フリーレント期間 |
- |
取引形態 |
一般媒介 |
備考 |
鍵交換代 35200円 月額:プレサポ24 990円 保証会社利用必須 初回保証料:総賃料の50% 更新料:総賃料の1.5% |
プレサンス ロジェ 名駅南 1103号室の建物情報
建物名称 |
プレサンス ロジェ 名駅南 |
|---|---|
最寄駅 |
|
所在地 |
愛知県名古屋市中村区名駅南 |
階層 |
11階部分(地上15階建) |
構造 |
RC |
築年数 |
2023年3月(築3年) |
駐車場 |
無 |
小学校学区 |
笹島小学校 |
中学校学区 |
笹島中学校 |
- 学区データについて
- ※学区データは必ずしも正確とは限りません。詳細に関しては最寄店舗または各自治体の教育委員会に必ずご確認ください。
無料この物件に問い合わせ
- プレサンス ロジェ 名駅南 1103号室

-
13.572万円
(共益費
9,280円)
- 敷
- -
- 礼
- 145,000円
- 保
- -
- 償
- -
プレサンス ロジェ 名駅南 1103号室の物件のお問い合わせ先・取り扱い店舗
ハウスコム 中村公園店
- アクセス
-
名古屋市営地下鉄 東山線「中村公園駅」徒歩1分
- 住所
- 〒453-0811 愛知県名古屋市中村区太閤通9丁目9 横田ビル 1階
- 営業時間
- 10:00~18:00
- 定休日
- なし
- 営業エリア
- 中村区 中川区 西区 中区 港区 海部郡 あま市 清須市
- 取引態様
- 賃貸仲介業





