レオパレスセイユウ 103号室(1階/1K)の賃貸物件(賃貸アパート)
静岡県富士宮市にあるレオパレスセイユウ 103号室はTVモニタ付インターホン、宅配ボックス、シューズボックス、室内洗濯機置場、インターネット可などが特徴です。最寄り駅の身延線西富士宮駅から徒歩21分です。レオパレスセイユウ 103号室の詳細はハウスコム 富士店までお気軽にお問い合わせください!
情報更新日:
次回更新予定日:
※次回更新予定日について:お店側では順次空室確認を行っていますが、次回更新予定日までに空室確認が行えない場合には、この物件情報は自動的に削除されます。
レオパレスセイユウ 103号室の賃貸物件部屋概要
家賃 |
4.2万円
初期費用を |
|---|---|
共益費 |
4,000円
入居可能時期 |
敷金/礼金 |
- / 42,000円 |
保証金/ |
- / - |
最寄駅 |
|
所在地 |
静岡県富士宮市大中里 |
部屋番号 |
103号室 |
間取り |
1K |
専有面積 |
23.18㎡ |
築年数 |
2003年3月(築23年) |
階数 |
1階部分(地上2階建) |
方位・位置 |
ー / その他 |
物件種別 |
賃貸アパート |
構造 |
軽量鉄骨 |
駐車場 |
4,400円 |
小学校学区 |
西小学校 |
中学校学区 |
富士宮第三中学校 |
他の空き部屋 |
104号室 107号室 108号室 202号室 203号室 |
- 学区データについて
- ※学区データは必ずしも正確とは限りません。詳細に関しては最寄店舗または各自治体の教育委員会に必ずご確認ください。
レオパレスセイユウ 103号室の特徴
契約条件
敷金が無料なため、初期費用が比較的安くなる傾向にあります。
セキュリティ
この物件の建物には、宅配ボックスが設置されており、来客時には居室内のテレビモニターにて訪問者の顔を確認することができます。
室内設備
洗濯に便利な設備として、室内洗濯機置場があります。
居室状況
エアコンが設置されています。 収納スペースとして、玄関にはシューズボックスがあります。
建物設備共用部分
建物の共用スペースに、急な外出や不在がちのご家庭の荷物受け取りに便利な宅配ボックスが設置されています。
周辺施設
この物件の学区は、西小学校区・富士宮第三中学校区です。
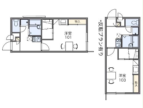
レオパレスセイユウ 103号室の間取り
間取り:1K
間取詳細:1K
専有面積:23.18㎡
方位:ー
部屋位置:その他
レオパレスセイユウ 103号室の設備
バス・トイレ
バス・トイレ別
玄関
TVモニタ付インターホン
宅配ボックス
収納
シューズボックス
室内設備
エアコン
室内洗濯機置場
位置・立地
1階
インフラ
インターネット可
CATV
入居条件
即入居可
ライフステージ
一人暮らしに人気の設備
カップルに人気の設備
家族に人気の設備
夫婦に人気の設備
三世代で人気の設備
こだわり
雨の日でも洗濯したい
寝るためだけの部屋
レオパレスセイユウ 103号室の賃貸契約情報
毎月支払う |
家賃4.2万円/月共益費4,000円/月 |
|---|---|
初期費用 |
敷金-礼金42,000円保証金-敷引き償却金- |
更新料 |
- |
鍵交換費用 |
16,500円 |
室内清掃費用 |
41,800円 |
抗菌施工(任意) |
23,760円 |
駐車場料金 |
4,400円 |
損保・ |
借家賠付きの火災保険にご加入いただきます。 |
保証会社 |
加入要 保証会社利用料:保証料:46190円(契約内容により100~120%で変動有)※記載金額は120%の場合 |
契約期間 |
- |
入居可能日 |
即入居可 |
フリーレント期間 |
- |
取引形態 |
一般媒介 |
備考 |
鍵交換費10260円、抗菌施工(任意)17712円から23328円(税込)、環境維持費540円/月 |
レオパレスセイユウ 103号室の建物情報
建物名称 |
レオパレスセイユウ |
|---|---|
最寄駅 |
|
所在地 |
静岡県富士宮市大中里 |
階層 |
1階部分(地上2階建) |
構造 |
軽量鉄骨 |
築年数 |
2003年3月(築23年) |
駐車場 |
4,400円 |
小学校学区 |
西小学校 |
中学校学区 |
富士宮第三中学校 |
1/3 外観
- 学区データについて
- ※学区データは必ずしも正確とは限りません。詳細に関しては最寄店舗または各自治体の教育委員会に必ずご確認ください。
無料この物件に問い合わせ
- レオパレスセイユウ 103号室

-
4.2万円
(共益費
4,000円)
- 敷
- -
- 礼
- 42,000円
- 保
- -
- 償
- -
レオパレスセイユウ 103号室の物件のお問い合わせ先・取り扱い店舗
ハウスコム 富士店
水曜日営業
土日営業
年中無休(年末年始などを除く)
- アクセス
-
東海道本線(JR東海)「富士駅」徒歩16分
- 住所
- 〒416-0906 静岡県富士市本市場220−7
- 営業時間
- 10:00~18:00
- 定休日
- なし
- 営業エリア
- 富士市、富士宮市 静岡市清水区 沼津市
- 取引態様
- 賃貸仲介業
お問い合わせNo. HC5-1837257-103-0215






















