西浦町稲生浜戸建 1号室(3LDK)の賃貸物件(賃貸一戸建て)
愛知県蒲郡市にある西浦町稲生浜戸建 1号室はシステムキッチン、カウンターキッチン、浴室乾燥機、TVモニタ付インターホン、オール電化などが特徴です。最寄り駅の名鉄蒲郡線西浦駅から徒歩11分です。西浦町稲生浜戸建 1号室の詳細はハウスコム 豊川店までお気軽にお問い合わせください!
情報更新日:
次回更新予定日:
※次回更新予定日について:お店側では順次空室確認を行っていますが、次回更新予定日までに空室確認が行えない場合には、この物件情報は自動的に削除されます。
西浦町稲生浜戸建 1号室の賃貸物件部屋概要
家賃 |
8万円
初期費用を |
|---|---|
共益費 |
-
入居可能時期 |
敷金/礼金 |
2ヶ月 / 1ヶ月 |
保証金/ |
- / - |
最寄駅 |
|
所在地 |
愛知県蒲郡市西浦町 |
部屋番号 |
1号室 |
間取り |
3LDK(LDK21・洋10.4・洋6.7・和3.1) |
専有面積 |
115.25㎡ |
築年数 |
2018年12月(築8年) |
階数 |
地上2階建 |
方位・位置 |
南 / その他 |
物件種別 |
賃貸一戸建て |
構造 |
木造 |
駐車場 |
空有 賃料に含む |
小学校学区 |
西浦小学校 |
中学校学区 |
西浦中学校 |
他の空き部屋 |
ー |
- 学区データについて
- ※学区データは必ずしも正確とは限りません。詳細に関しては最寄店舗または各自治体の教育委員会に必ずご確認ください。
西浦町稲生浜戸建 1号室の特徴
-
一人暮らしに人気の設備

-
カップルに人気の設備

-
家族に人気の設備

-
夫婦に人気の設備

-
三世代で人気の設備

-
キッチン重視

-
外で子どもと遊びたい

-
雨の日でも洗濯したい

-
洋室で暮らしたい

-
自炊が多めなあなたに

-
料理が好き

-
服やおしゃれが好き

-
推し活グッズを飾りたい

-
ガーデニングが好き

セキュリティ
この物件の建物には、宅配ボックスが設置されており、来客時には居室内のテレビモニターにて訪問者の顔を確認することができます。
室内設備
システムキッチンには、IHコンロが設置されており、キッチン設備として食洗機が備え付けられています。 お風呂とトイレは別です。お風呂には、追い焚き機能が備わっています。 トイレは、温水洗浄便座機能付きになります。 女性に嬉しい設備の独立した洗面化粧台があります。 洗濯に便利な設備として、室内洗濯機置場があります。浴室乾燥機も設置されているので、梅雨時の生乾き臭も比較的防ぐことができます。
居室状況
居室には、和室の居室もあり、子育てやリラックススペースとしての利用もできます。 お部屋の床は、フローリングとなっており、エアコンと一部床下暖房が設置されています。 収納スペースとして、通常よりも収納力の高いウォークインクローゼットがあります。
建物設備共用部分
居室外の専有スペースとして、洗濯物を干すなどの用途として利用できるバルコニーがあります。 建物の共用スペースに、急な外出や不在がちのご家庭の荷物受け取りに便利な宅配ボックスが設置されています。 駐車場があり、無料で利用することができます。
周辺施設
この物件の学区は、西浦小学校区・西浦中学校区です。
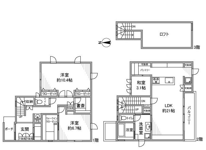
西浦町稲生浜戸建 1号室の間取り
間取り:3LDK
間取詳細:3LDK(LDK21・洋10.4・洋6.7・和3.1)
専有面積:115.25㎡
方位:南
部屋位置:その他
西浦町稲生浜戸建 1号室の設備
キッチン
システムキッチン
カウンターキッチン
IHコンロ
食洗機
バス・トイレ
バス・トイレ別
追い焚き
浴室乾燥機
温水洗浄便座
独立洗面台
玄関
TVモニタ付インターホン
宅配ボックス
収納
ウォークインクローゼット
バルコニー
バルコニー
ルーフバルコニー
室内設備
エアコン
フローリング
床下暖房
室内洗濯機置場
和室あり
位置・立地
南向き
インフラ
オール電化
ライフステージ
一人暮らしに人気の設備
カップルに人気の設備
家族に人気の設備
夫婦に人気の設備
三世代で人気の設備
こだわり
キッチン重視
外で子どもと遊びたい
雨の日でも洗濯したい
洋室で暮らしたい
自炊が多めなあなたに
趣味
料理が好き
服やおしゃれが好き
推し活グッズを飾りたい
ガーデニングが好き
お得な条件
駐車場無料
西浦町稲生浜戸建 1号室の賃貸契約情報
毎月支払う |
家賃8万円/月共益費- |
|---|---|
初期費用 |
敷金2ヶ月 (16万円)礼金1ヶ月 (8万円)保証金-敷引き償却金- |
更新料 |
- |
鍵交換費用 |
- |
室内清掃費用 |
- |
駐車場登録料 1台(利用時のみ) |
11,000円 |
除菌施工料(契約時のみ) |
19,800円 |
駐車場料金 |
空有 賃料に含む |
損保・ |
借家賠付きの火災保険にご加入いただきます。 |
保証会社 |
加入要 保証会社利用料:保証会社 要:初回 賃料総額100%+月額 賃料総額2%(最低1,000円) |
契約期間 |
定期借家 2027年 3月まで |
入居可能日 |
2026年04月上旬 |
フリーレント期間 |
- |
取引形態 |
一般媒介 |
備考 |
- |
西浦町稲生浜戸建 1号室の建物情報
建物名称 |
西浦町稲生浜戸建 |
|---|---|
最寄駅 |
|
所在地 |
愛知県蒲郡市西浦町 |
階層 |
地上2階建 |
構造 |
木造 |
築年数 |
2018年12月(築8年) |
駐車場 |
空有 賃料に含む |
小学校学区 |
西浦小学校 |
中学校学区 |
西浦中学校 |
- 学区データについて
- ※学区データは必ずしも正確とは限りません。詳細に関しては最寄店舗または各自治体の教育委員会に必ずご確認ください。
無料この物件に問い合わせ
- 西浦町稲生浜戸建 1号室

-
8万円
(共益費
-)
- 敷
- 2ヶ月
- 礼
- 1ヶ月
- 保
- -
- 償
- -
西浦町稲生浜戸建 1号室の物件のお問い合わせ先・取り扱い店舗
ハウスコム 豊川店
- アクセス
-
名鉄豊川線「諏訪町駅」徒歩18分
- 住所
- 〒442-0835 愛知県豊川市新桜町通1丁目27−1
- 営業時間
- 10:00~18:00
- 定休日
- なし
- 営業エリア
- 豊川市・豊橋市・新城市・蒲郡市
- 取引態様
- 賃貸仲介業
















