クレイノイースト大曽根 101号室(1階/1K)の賃貸物件(賃貸マンション)
愛知県名古屋市北区にあるクレイノイースト大曽根 101号室は電気コンロ、バス・トイレ別、独立洗面台、TVモニタ付インターホン、インターネット可などが特徴です。最寄り駅の名古屋市営地下鉄 名城線大曽根駅から徒歩6分です。クレイノイースト大曽根 101号室の詳細はハウスコム 勝川店までお気軽にお問い合わせください!
情報更新日:
次回更新予定日:
※次回更新予定日について:お店側では順次空室確認を行っていますが、次回更新予定日までに空室確認が行えない場合には、この物件情報は自動的に削除されます。
クレイノイースト大曽根 101号室の賃貸物件部屋概要
家賃 |
6.1万円
初期費用を |
|---|---|
共益費 |
5,500円
入居可能時期 |
敷金/礼金 |
- / 61,000円 |
保証金/ |
- / - |
最寄駅 |
|
所在地 |
愛知県名古屋市北区山田 |
部屋番号 |
101号室 |
間取り |
1K |
専有面積 |
21.11㎡ |
築年数 |
2016年4月(築10年) |
階数 |
1階部分(地上3階建) |
方位・位置 |
ー / その他 |
物件種別 |
賃貸マンション |
構造 |
鉄骨造 |
駐車場 |
無 |
小学校学区 |
六郷北小学校 |
中学校学区 |
大曽根中学校 |
他の空き部屋 |
302号室 |
- 学区データについて
- ※学区データは必ずしも正確とは限りません。詳細に関しては最寄店舗または各自治体の教育委員会に必ずご確認ください。
クレイノイースト大曽根 101号室の特徴
契約条件
敷金が無料なため、初期費用が比較的安くなる傾向にあります。
セキュリティ
来客時には居室内のテレビモニターにて訪問者の顔を確認することができます。
室内設備
電気コンロが備え付けられています。 トイレは、温水洗浄便座機能付きになります。 女性に嬉しい設備の独立した洗面化粧台があります。 洗濯に便利な設備として、室内洗濯機置場があります。
居室状況
エアコンが設置されています。
建物設備共用部分
居室外の専有スペースとして、洗濯物を干すなどの用途として利用できるバルコニーがあります。
周辺施設
この物件の学区は、六郷北小学校区・大曽根中学校区です。
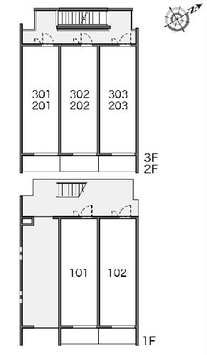
クレイノイースト大曽根 101号室の間取り
間取り:1K
間取詳細:1K
専有面積:21.11㎡
方位:ー
部屋位置:その他
クレイノイースト大曽根 101号室の設備
キッチン
電気コンロ
バス・トイレ
バス・トイレ別
温水洗浄便座
独立洗面台
玄関
TVモニタ付インターホン
バルコニー
バルコニー
ルーフバルコニー
室内設備
エアコン
室内洗濯機置場
位置・立地
1階
インフラ
インターネット可
ライフステージ
一人暮らしに人気の設備
カップルに人気の設備
家族に人気の設備
夫婦に人気の設備
三世代で人気の設備
こだわり
外で子どもと遊びたい
雨の日でも洗濯したい
寝るためだけの部屋
趣味
ガーデニングが好き
クレイノイースト大曽根 101号室の賃貸契約情報
毎月支払う |
家賃6.1万円/月共益費5,500円/月 |
|---|---|
初期費用 |
敷金-礼金61,000円保証金-敷引き償却金- |
更新料 |
- |
鍵交換費用 |
16,500円 |
室内清掃費用 |
41,800円 |
抗菌施工(任意) |
23,760円 |
駐車場料金 |
無 |
損保・ |
借家賠付きの火災保険にご加入いただきます。 |
保証会社 |
加入要 保証会社利用料:保証料:80390円(契約内容により100~120%で変動有)※記載金額は120%の場合 |
契約期間 |
- |
入居可能日 |
2026年04月下旬 |
フリーレント期間 |
- |
取引形態 |
一般媒介 |
備考 |
- |
クレイノイースト大曽根 101号室の建物情報
建物名称 |
クレイノイースト大曽根 |
|---|---|
最寄駅 |
|
所在地 |
愛知県名古屋市北区山田 |
階層 |
1階部分(地上3階建) |
構造 |
鉄骨造 |
築年数 |
2016年4月(築10年) |
駐車場 |
無 |
小学校学区 |
六郷北小学校 |
中学校学区 |
大曽根中学校 |
- 学区データについて
- ※学区データは必ずしも正確とは限りません。詳細に関しては最寄店舗または各自治体の教育委員会に必ずご確認ください。
無料この物件に問い合わせ
- クレイノイースト大曽根 101号室

-
6.1万円
(共益費
5,500円)
- 敷
- -
- 礼
- 61,000円
- 保
- -
- 償
- -
クレイノイースト大曽根 101号室の物件のお問い合わせ先・取り扱い店舗
ハウスコム 勝川店
- アクセス
-
中央本線(JR東海)「勝川駅」徒歩3分
- 住所
- 〒486-0945 愛知県春日井市勝川町6丁目143 ラ・ポール勝川 1階
- 営業時間
- 10:00~18:00
- 定休日
- 水曜日
- 営業エリア
- 春日井市、名古屋市北区、名古屋市守山区、名古屋市西区、豊山町、北名古屋市、小牧市
- 取引態様
- 賃貸仲介業






















