ガーデンアヴェニュー妙典 603号室(6階/2LDK)の賃貸物件(賃貸マンション)
千葉県市川市にあるガーデンアヴェニュー妙典 603号室はバス・トイレ別、バルコニー、エアコン、室内洗濯機置場、2階以上などが特徴です。最寄り駅の東京メトロ 東西線妙典駅から徒歩5分です。ガーデンアヴェニュー妙典 603号室の詳細はハウスコム 事業戦略室までお気軽にお問い合わせください!
情報更新日:
次回更新予定日:
※次回更新予定日について:お店側では順次空室確認を行っていますが、次回更新予定日までに空室確認が行えない場合には、この物件情報は自動的に削除されます。
ガーデンアヴェニュー妙典 603号室の賃貸物件部屋概要
家賃 |
16.6万円
初期費用を |
|---|---|
共益費 |
10,000円
入居可能時期 |
敷金/礼金 |
1ヶ月 / 1ヶ月 |
保証金/ |
- / - |
最寄駅 |
|
所在地 |
千葉県市川市妙典 |
部屋番号 |
603号室 |
間取り |
2LDK(洋6.7・洋5.5・LDK12.5) |
専有面積 |
59.88㎡ |
築年数 |
2002年9月(築24年) |
階数 |
6階部分(地上8階建) |
方位・位置 |
南西 / その他 |
物件種別 |
賃貸マンション |
構造 |
RC |
駐車場 |
無 |
小学校学区 |
妙典小学校 |
中学校学区 |
妙典中学校 |
他の空き部屋 |
ー |
- 学区データについて
- ※学区データは必ずしも正確とは限りません。詳細に関しては最寄店舗または各自治体の教育委員会に必ずご確認ください。
ガーデンアヴェニュー妙典 603号室の特徴
契約条件
この物件は、2人入居もご契約できます。 楽器演奏もご相談ください。
セキュリティ
この物件の建物には、オートロックや宅配ボックスが設置されております。
室内設備
システムキッチンが備え付けられています。 お風呂とトイレは別です。お風呂には、追い焚き機能が備わっています。 女性に嬉しい設備の独立した洗面化粧台があります。 洗濯に便利な設備として、室内洗濯機置場があります。浴室乾燥機も設置されているので、梅雨時の生乾き臭も比較的防ぐことができます。
居室状況
お部屋の床は、フローリングとなっており、エアコンと一部床下暖房が設置されています。 収納スペースとして、基本的な居室にクローゼットを設置、玄関にはシューズボックスがあります。
建物設備共用部分
居室外の専有スペースとして、洗濯物を干すなどの用途として利用できるバルコニーがあります。 建物の共用スペースに、日々の出入に便利なエレベーターや、急な外出や不在がちのご家庭の荷物受け取りに便利な宅配ボックスが設置されています。 バイク置き場が利用できます。
周辺施設
この物件の学区は、妙典小学校区・妙典中学校区です。
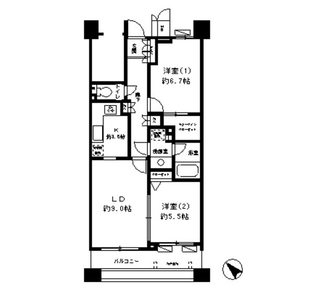
ガーデンアヴェニュー妙典 603号室の間取り
間取り:2LDK
間取詳細:2LDK(洋6.7・洋5.5・LDK12.5)
専有面積:59.88㎡
方位:南西
部屋位置:その他
ガーデンアヴェニュー妙典 603号室の設備
キッチン
システムキッチン
バス・トイレ
バス・トイレ別
追い焚き
浴室乾燥機
独立洗面台
玄関
オートロック
宅配ボックス
収納
クローゼット
シューズボックス
バルコニー
バルコニー
ルーフバルコニー
室内設備
エアコン
フローリング
床下暖房
室内洗濯機置場
位置・立地
2階以上
インフラ
インターネット可
CATV
BS
CS
都市ガス
建物設備
エレベーター
バイク置き場
入居条件
楽器可・相談
2人入居可
即入居可
ライフステージ
一人暮らしに人気の設備
カップルに人気の設備
家族に人気の設備
夫婦に人気の設備
三世代で人気の設備
こだわり
外で子どもと遊びたい
雨の日でも洗濯したい
洋室で暮らしたい
趣味
ガーデニングが好き
ガーデンアヴェニュー妙典 603号室の賃貸契約情報
毎月支払う |
家賃16.6万円/月共益費10,000円/月 |
|---|---|
初期費用 |
敷金1ヶ月 (16.6万円)礼金1ヶ月 (16.6万円)保証金-敷引き償却金- |
更新料 |
- |
鍵交換費用 |
- |
室内清掃費用 |
- |
室内清掃費 |
111,975円 |
鍵交換費 |
33,000円 |
駐車場料金 |
無 |
損保・ |
借家賠付きの火災保険にご加入いただきます。 |
保証会社 |
加入要 保証会社利用料:保証会社名:クレディセゾン・レジデントアシスタンス株式会社/初回保証委託料(最低15000円):月額賃料等の50%、 2年目以降:10000円/年 |
契約期間 |
定期借家 2年 |
入居可能日 |
即入居可 |
フリーレント期間 |
- |
取引形態 |
一般媒介 |
備考 |
家財保険要加入 |
ガーデンアヴェニュー妙典 603号室の建物情報
建物名称 |
ガーデンアヴェニュー妙典 |
|---|---|
最寄駅 |
|
所在地 |
千葉県市川市妙典 |
階層 |
6階部分(地上8階建) |
構造 |
RC |
築年数 |
2002年9月(築24年) |
駐車場 |
無 |
小学校学区 |
妙典小学校 |
中学校学区 |
妙典中学校 |
- 学区データについて
- ※学区データは必ずしも正確とは限りません。詳細に関しては最寄店舗または各自治体の教育委員会に必ずご確認ください。
無料この物件に問い合わせ
- ガーデンアヴェニュー妙典 603号室

-
16.6万円
(共益費
10,000円)
- 敷
- 1ヶ月
- 礼
- 1ヶ月
- 保
- -
- 償
- -
ガーデンアヴェニュー妙典 603号室の物件のお問い合わせ先・取り扱い店舗
ハウスコム 事業戦略室
- アクセス
-
山手線「品川駅」港南口徒歩3分
- 住所
- 〒108-0075 東京都港区港南2-16-1 品川イーストワンタワー9階
- 営業時間
- 10:00~17:00
- 定休日
- 土曜日・日曜日(祝日定休)
- 営業エリア
- 北区、荒川区、豊島区、文京区、台東区、中央区、新宿区、千代田区、渋谷区、港区、品川区
- 取引態様
- 賃貸仲介業
















