リグランド青葉台 504号室(5階/3LDK)の賃貸物件(賃貸マンション)
神奈川県横浜市青葉区にあるリグランド青葉台 504号室はカウンターキッチン、温水洗浄便座、宅配ボックス、ルーフバルコニー、2階以上などが特徴です。最寄り駅の東急田園都市線青葉台駅からバスで11分、桂台遊水地から徒歩2分です。リグランド青葉台 504号室の詳細はハウスコム 青葉台店までお気軽にお問い合わせください!
情報更新日:
次回更新予定日:
※次回更新予定日について:お店側では順次空室確認を行っていますが、次回更新予定日までに空室確認が行えない場合には、この物件情報は自動的に削除されます。
リグランド青葉台 504号室の賃貸物件部屋概要
家賃 |
20万円
初期費用を |
|---|---|
共益費 |
12,000円
入居可能時期 |
敷金/礼金 |
1ヶ月 / - |
保証金/ |
- / - |
最寄駅 |
|
所在地 |
神奈川県横浜市青葉区松風台 |
部屋番号 |
504号室 |
間取り |
3LDK(LDK16.1・洋5.8・洋7・和6) |
専有面積 |
79.19㎡ |
築年数 |
2001年10月(築25年) |
階数 |
5階部分(地上5階建) |
方位・位置 |
南東 / その他 |
物件種別 |
賃貸マンション |
構造 |
RC |
駐車場 |
- |
小学校学区 |
桂小学校 |
中学校学区 |
奈良中学校 |
他の空き部屋 |
104号室 |
- 学区データについて
- ※学区データは必ずしも正確とは限りません。詳細に関しては最寄店舗または各自治体の教育委員会に必ずご確認ください。
リグランド青葉台 504号室の特徴
契約条件
礼金が無料なため、初期費用が比較的安くなる傾向にあります。
セキュリティ
この物件の建物には、オートロックや宅配ボックスが設置されており、来客時には居室内のテレビモニターにて訪問者の顔を確認することができます。
室内設備
システムキッチンが備え付けられています。 トイレは、温水洗浄便座機能付きになります。 女性に嬉しい設備の独立した洗面化粧台があります。 洗濯に便利な設備として、室内洗濯機置場があります。
居室状況
居室には、和室の居室もあり、子育てやリラックススペースとしての利用もできます。 エアコンが設置されています。 収納スペースとして、玄関にはシューズボックスがあります。
建物設備共用部分
居室外の専有スペースとして、洗濯物を干すなどの用途として利用できるバルコニーがあります。 建物の共用スペースに、日々の出入に便利なエレベーターや、急な外出や不在がちのご家庭の荷物受け取りに便利な宅配ボックスが設置されています。 駐輪場が利用できます。
周辺施設
この物件の学区は、桂小学校区・奈良中学校区です。
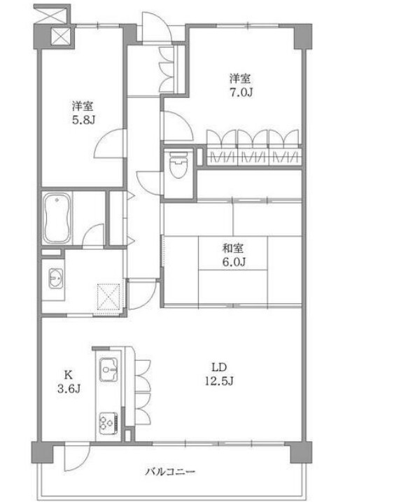
リグランド青葉台 504号室の間取り
間取り:3LDK
間取詳細:3LDK(LDK16.1・洋5.8・洋7・和6)
専有面積:79.19㎡
方位:南東
部屋位置:その他
リグランド青葉台 504号室の設備
キッチン
システムキッチン
カウンターキッチン
バス・トイレ
バス・トイレ別
温水洗浄便座
独立洗面台
玄関
TVモニタ付インターホン
オートロック
宅配ボックス
収納
シューズボックス
バルコニー
バルコニー
ルーフバルコニー
室内設備
エアコン
室内洗濯機置場
和室あり
位置・立地
2階以上
最上階
インフラ
インターネット可
CATV
都市ガス
建物設備
エレベーター
駐輪場
入居条件
オンライン相談可
ライフステージ
一人暮らしに人気の設備
カップルに人気の設備
家族に人気の設備
夫婦に人気の設備
三世代で人気の設備
こだわり
外で子どもと遊びたい
雨の日でも洗濯したい
趣味
推し活グッズを飾りたい
ガーデニングが好き
リグランド青葉台 504号室の賃貸契約情報
毎月支払う |
家賃20万円/月共益費12,000円/月 |
|---|---|
初期費用 |
敷金1ヶ月 (20万円)礼金-保証金-敷引き償却金- |
更新料 |
200,000円 |
鍵交換費用 |
25,300円 |
室内清掃費用 |
- |
駐車場料金 |
- |
損保・ |
借家賠付きの火災保険にご加入いただきます。 |
保証会社 |
加入要 保証会社利用料:初回保証料:総賃料50% 月額保証料:総賃料1.2% |
契約期間 |
2年 |
入居可能日 |
2026年04月上旬 |
フリーレント期間 |
- |
取引形態 |
一般媒介 |
備考 |
火災保険18000円/2年 鍵交換代 25300円 月額:あんしんサポート24 880円 短期解約違約金有 |
リグランド青葉台 504号室の建物情報
建物名称 |
リグランド青葉台 |
|---|---|
最寄駅 |
|
所在地 |
神奈川県横浜市青葉区松風台 |
階層 |
5階部分(地上5階建) |
構造 |
RC |
築年数 |
2001年10月(築25年) |
駐車場 |
- |
小学校学区 |
桂小学校 |
中学校学区 |
奈良中学校 |
- 学区データについて
- ※学区データは必ずしも正確とは限りません。詳細に関しては最寄店舗または各自治体の教育委員会に必ずご確認ください。
無料この物件に問い合わせ
- リグランド青葉台 504号室

-
20万円
(共益費
12,000円)
- 敷
- 1ヶ月
- 礼
- -
- 保
- -
- 償
- -
リグランド青葉台 504号室の物件のお問い合わせ先・取り扱い店舗
ハウスコム 青葉台店
- アクセス
-
東急田園都市線「青葉台駅」徒歩1分
- 住所
- 〒227-0062 神奈川県横浜市青葉区青葉台1丁目6−13 ケントロンビル 3階
- 営業時間
- 10:00~18:00
- 定休日
- なし
- 営業エリア
- 横浜市青葉区 横浜市緑区 横浜市都筑区 東京都町田市 大和市
- 取引態様
- 賃貸仲介業














