サーパス柏旭町 112号室(1階/3LDK)の賃貸物件(賃貸マンション)
千葉県柏市にあるサーパス柏旭町 112号室は独立洗面台、オートロック、バルコニー、室内洗濯機置場、エレベーターなどが特徴です。最寄り駅の常磐線柏駅から徒歩19分です。サーパス柏旭町 112号室の詳細はハウスコム 柏店までお気軽にお問い合わせください!
情報更新日:
次回更新予定日:
※次回更新予定日について:お店側では順次空室確認を行っていますが、次回更新予定日までに空室確認が行えない場合には、この物件情報は自動的に削除されます。
サーパス柏旭町 112号室の賃貸物件部屋概要
家賃 |
10万円
初期費用を |
|---|---|
共益費 |
10,000円
入居可能時期 |
敷金/礼金 |
1ヶ月 / 1ヶ月 |
保証金/ |
- / - |
最寄駅 |
|
所在地 |
千葉県柏市旭町 |
部屋番号 |
112号室 |
間取り |
3LDK(LDK10.5・洋6.3・洋5.2・和6) |
専有面積 |
71.31㎡ |
築年数 |
1998年2月(築29年) |
階数 |
1階部分(地上8階建) |
方位・位置 |
南西 / その他 |
物件種別 |
賃貸マンション |
構造 |
RC |
駐車場 |
- |
小学校学区 |
旭小学校 |
中学校学区 |
豊四季中学校 |
他の空き部屋 |
ー |
- 学区データについて
- ※学区データは必ずしも正確とは限りません。詳細に関しては最寄店舗または各自治体の教育委員会に必ずご確認ください。
サーパス柏旭町 112号室の特徴
セキュリティ
この物件の建物には、オートロックが設置されており、来客時には居室内のテレビモニターにて訪問者の顔を確認することができます。
室内設備
システムキッチンには、ガスコンロが備え付けられています。 トイレは、温水洗浄便座機能付きになります。 女性に嬉しい設備の独立した洗面化粧台があります。 洗濯に便利な設備として、室内洗濯機置場があります。
居室状況
居室には、和室の居室もあり、子育てやリラックススペースとしての利用もできます。 お部屋の床は、フローリングとなっており、エアコンが設置されています。
建物設備共用部分
居室外の専有スペースとして、洗濯物を干すなどの用途として利用できるバルコニーがあります。 建物の共用スペースに、日々の出入に便利なエレベーターが設置されています。
周辺施設
この物件の学区は、旭小学校区・豊四季中学校区です。
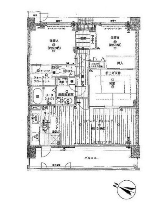
サーパス柏旭町 112号室の間取り
間取り:3LDK
間取詳細:3LDK(LDK10.5・洋6.3・洋5.2・和6)
専有面積:71.31㎡
方位:南西
部屋位置:その他
サーパス柏旭町 112号室の設備
キッチン
システムキッチン
ガスコンロ
バス・トイレ
バス・トイレ別
温水洗浄便座
独立洗面台
玄関
TVモニタ付インターホン
オートロック
バルコニー
バルコニー
ルーフバルコニー
室内設備
エアコン
フローリング
室内洗濯機置場
和室あり
位置・立地
1階
建物設備
エレベーター
入居条件
オンライン相談可
オンライン内見可
即入居可
ライフステージ
一人暮らしに人気の設備
カップルに人気の設備
家族に人気の設備
夫婦に人気の設備
三世代で人気の設備
こだわり
外で子どもと遊びたい
雨の日でも洗濯したい
洋室で暮らしたい
趣味
ガーデニングが好き
サーパス柏旭町 112号室の賃貸契約情報
毎月支払う |
家賃10万円/月共益費10,000円/月 |
|---|---|
初期費用 |
敷金1ヶ月 (10万円)礼金1ヶ月 (10万円)保証金-敷引き償却金- |
更新料 |
- |
鍵交換費用 |
- |
室内清掃費用 |
- |
駐車場料金 |
- |
損保・ |
借家賠付きの火災保険にご加入いただきます。 |
保証会社 |
加入要 保証会社利用料:初回保証料総賃料の50%~、更新保証料:10,000円(1年ごと) |
契約期間 |
2年 |
入居可能日 |
即入居可 |
フリーレント期間 |
- |
取引形態 |
一般媒介 |
備考 |
火災保険料20000円~(2年毎)、短期解約違約金有(1年未満の解約で賃料1か月分)、契約時24時間サポート費用(2年分)19800円、鍵交換代22000円 |
サーパス柏旭町 112号室の建物情報
建物名称 |
サーパス柏旭町 |
|---|---|
最寄駅 |
|
所在地 |
千葉県柏市旭町 |
階層 |
1階部分(地上8階建) |
構造 |
RC |
築年数 |
1998年2月(築29年) |
駐車場 |
- |
小学校学区 |
旭小学校 |
中学校学区 |
豊四季中学校 |
- 学区データについて
- ※学区データは必ずしも正確とは限りません。詳細に関しては最寄店舗または各自治体の教育委員会に必ずご確認ください。
無料この物件に問い合わせ
- サーパス柏旭町 112号室

-
10万円
(共益費
10,000円)
- 敷
- 1ヶ月
- 礼
- 1ヶ月
- 保
- -
- 償
- -
サーパス柏旭町 112号室の物件のお問い合わせ先・取り扱い店舗
ハウスコム 柏店
- アクセス
-
常磐線「柏駅」西口徒歩2分
東武アーバンパークライン・野田線「柏駅」西口徒歩2分
- 住所
- 〒277-0842 千葉県柏市末広町4-5 金子ビル1階
- 営業時間
- 10:00~18:00
- 定休日
- なし
- 営業エリア
- 柏市・流山市・野田市・我孫子市・松戸市・鎌ヶ谷市、白井市、印西市
- 取引態様
- 賃貸仲介業


























