エステムプラザ京都ステーションレジデンシャル 605号室(6階/1K)の賃貸物件(賃貸マンション)
京都府京都市南区にあるエステムプラザ京都ステーションレジデンシャル 605号室はガスコンロ、ガスコンロ二口以上、宅配ボックス、ルーフバルコニー、フローリングなどが特徴です。最寄り駅の東海道本線(JR西日本)京都駅から徒歩9分です。エステムプラザ京都ステーションレジデンシャル 605号室の詳細はハウスコム 西院店までお気軽にお問い合わせください!
情報更新日:
次回更新予定日:
※次回更新予定日について:お店側では順次空室確認を行っていますが、次回更新予定日までに空室確認が行えない場合には、この物件情報は自動的に削除されます。
エステムプラザ京都ステーションレジデンシャル 605号室の賃貸物件部屋概要
家賃 |
7.5万円
初期費用を |
|---|---|
共益費 |
15,000円
入居可能時期 |
敷金/礼金 |
- / 1ヶ月 |
保証金/ |
- / - |
最寄駅 |
|
所在地 |
京都府京都市南区西九条藤ノ木町 |
部屋番号 |
605号室 |
間取り |
1K |
専有面積 |
21.56㎡ |
築年数 |
2016年2月(築11年) |
階数 |
6階部分(地上7階建) |
方位・位置 |
北 / 角部屋 |
物件種別 |
賃貸マンション |
構造 |
RC |
駐車場 |
空無し |
小学校学区 |
九条弘道小学校 |
中学校学区 |
九条中学校 |
他の空き部屋 |
503号室 |
- 学区データについて
- ※学区データは必ずしも正確とは限りません。詳細に関しては最寄店舗または各自治体の教育委員会に必ずご確認ください。
エステムプラザ京都ステーションレジデンシャル 605号室の特徴
-
一人暮らしに人気の設備

-
カップルに人気の設備

-
家族に人気の設備

-
夫婦に人気の設備

-
三世代で人気の設備

-
セキュリティ対策重視

-
外で子どもと遊びたい

-
雨の日でも洗濯したい

-
洋室で暮らしたい

-
オークション・通販が好き

-
ガーデニングが好き

契約条件
ペットの飼育もご相談ください。 敷金が無料なため、初期費用が比較的安くなる傾向にあります。
セキュリティ
この物件の建物には、オートロックや防犯カメラや宅配ボックスが設置されており、来客時には居室内のテレビモニターにて訪問者の顔を確認することができます。
室内設備
2つ以上のガスコンロが備え付けられています。 トイレは、温水洗浄便座機能付きになります。 女性に嬉しい設備の独立した洗面化粧台があります。 洗濯に便利な設備として、室内洗濯機置場があります。浴室乾燥機も設置されているので、梅雨時の生乾き臭も比較的防ぐことができます。
居室状況
お部屋の床は、フローリングとなっており、エアコンが設置されています。 インターネットも無料で入居後すぐ生活が始められます。 収納スペースとして、玄関にはシューズボックスがあります。
建物設備共用部分
居室外の専有スペースとして、洗濯物を干すなどの用途として利用できるバルコニーがあります。 建物の共用スペースに、日々の出入に便利なエレベーターや、いざという時の防犯カメラや、急な外出や不在がちのご家庭の荷物受け取りに便利な宅配ボックスが設置されています。 駐輪場、バイク置き場が利用できます。
周辺施設
この物件の学区は、九条弘道小学校区・九条中学校区です。
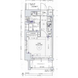
エステムプラザ京都ステーションレジデンシャル 605号室の間取り
間取り:1K
間取詳細:1K
専有面積:21.56㎡
方位:北
部屋位置:角部屋
エステムプラザ京都ステーションレジデンシャル 605号室の設備
キッチン
ガスコンロ
ガスコンロ二口以上
バス・トイレ
バス・トイレ別
浴室乾燥機
温水洗浄便座
独立洗面台
玄関
TVモニタ付インターホン
オートロック
宅配ボックス
収納
シューズボックス
バルコニー
バルコニー
ルーフバルコニー
室内設備
エアコン
フローリング
室内洗濯機置場
位置・立地
2階以上
角部屋
インフラ
CATV
BS
CS
都市ガス
建物設備
エレベーター
防犯カメラ
駐輪場
バイク置き場
入居条件
ペット可・相談
ライフステージ
一人暮らしに人気の設備
カップルに人気の設備
家族に人気の設備
夫婦に人気の設備
三世代で人気の設備
こだわり
セキュリティ対策重視
外で子どもと遊びたい
雨の日でも洗濯したい
洋室で暮らしたい
趣味
オークション・通販が好き
ガーデニングが好き
お得な条件
インターネット無料
エステムプラザ京都ステーションレジデンシャル 605号室の賃貸契約情報
毎月支払う |
家賃7.5万円/月共益費15,000円/月 |
|---|---|
初期費用 |
敷金-礼金1ヶ月 (7.5万円)保証金-敷引き償却金- |
更新料 |
- |
鍵交換費用 |
38,500円 |
室内清掃費用 |
52,800円 |
駐車場料金 |
空無し |
損保・ |
借家賠付きの火災保険にご加入いただきます。 |
保証会社 |
加入要 保証会社:日本セーフティー 保証会社利用料:初回保証料:保証人無 総賃料50%/保証人有 総賃料40% 月額保証料800円・引落とし手数料440円(税込) 初回保証料は決済金預かりです。 |
契約期間 |
1年 |
入居可能日 |
相談 |
フリーレント期間 |
- |
取引形態 |
一般媒介 |
備考 |
- |
エステムプラザ京都ステーションレジデンシャル 605号室の建物情報
建物名称 |
エステムプラザ京都ステーションレジデンシャル |
|---|---|
最寄駅 |
|
所在地 |
京都府京都市南区西九条藤ノ木町 |
階層 |
6階部分(地上7階建) |
構造 |
RC |
築年数 |
2016年2月(築11年) |
駐車場 |
空無し |
小学校学区 |
九条弘道小学校 |
中学校学区 |
九条中学校 |
- 学区データについて
- ※学区データは必ずしも正確とは限りません。詳細に関しては最寄店舗または各自治体の教育委員会に必ずご確認ください。
無料この物件に問い合わせ
- エステムプラザ京都ステーションレジデンシャル 605号室

-
7.5万円
(共益費
15,000円)
- 敷
- -
- 礼
- 1ヶ月
- 保
- -
- 償
- -
エステムプラザ京都ステーションレジデンシャル 605号室の物件のお問い合わせ先・取り扱い店舗
ハウスコム 西院店
- アクセス
-
阪急京都線「西院駅」徒歩1分
- 住所
- 〒615-0012 京都府京都市右京区西院高山寺町13番地 西院阪急プラザ1F
- 営業時間
- 10:00~18:00
- 定休日
- 水曜日
- 営業エリア
- 京都市右京区・京都市中京区・京都市下京区・京都市西京区・京都市上京区・京都市南区・京都市北区
- 取引態様
- 賃貸仲介業

