プレサンス上前津エレスタ 1102号室(11階/1K)の賃貸物件(賃貸マンション)
愛知県名古屋市中区にあるプレサンス上前津エレスタ 1102号室はバス・トイレ別、浴室乾燥機、TVモニタ付インターホン、エアコン、室内洗濯機置場などが特徴です。最寄り駅の名古屋市営地下鉄 鶴舞線上前津駅から徒歩6分です。プレサンス上前津エレスタ 1102号室の詳細はハウスコム 金山店までお気軽にお問い合わせください!
情報更新日:
次回更新予定日:
※次回更新予定日について:お店側では順次空室確認を行っていますが、次回更新予定日までに空室確認が行えない場合には、この物件情報は自動的に削除されます。
プレサンス上前津エレスタ 1102号室の賃貸物件部屋概要
家賃 |
6.281万円
初期費用を |
|---|---|
共益費 |
7,190円
入居可能時期 |
敷金/礼金 |
- / 70,000円 |
保証金/ |
- / - |
最寄駅 |
|
所在地 |
愛知県名古屋市中区千代田 |
部屋番号 |
1102号室 |
間取り |
1K(洋7.2) |
専有面積 |
23.94㎡ |
築年数 |
2023年6月(築3年) |
階数 |
11階部分(地上15階建) |
方位・位置 |
南 / その他 |
物件種別 |
賃貸マンション |
構造 |
RC |
駐車場 |
- |
小学校学区 |
橘小学校 |
中学校学区 |
伊勢山中学校 |
他の空き部屋 |
1003号室 1110号室 1311号室 1312号室 1408号室 1409号室 1415号室 1506号室 301号室 506号室 509号室 712号室 907号室 |
- 学区データについて
- ※学区データは必ずしも正確とは限りません。詳細に関しては最寄店舗または各自治体の教育委員会に必ずご確認ください。
プレサンス上前津エレスタ 1102号室の特徴
-
一人暮らしに人気の設備

-
カップルに人気の設備

-
家族に人気の設備

-
夫婦に人気の設備

-
三世代で人気の設備

-
セキュリティ対策重視

-
外で子どもと遊びたい

-
身だしなみに気をつかいたい

-
雨の日でも洗濯したい

-
オークション・通販が好き

-
ガーデニングが好き

契約条件
敷金が無料なため、初期費用が比較的安くなる傾向にあります。
セキュリティ
この物件の建物には、オートロックや防犯カメラや宅配ボックスが設置されており、来客時には居室内のテレビモニターにて訪問者の顔を確認することができます。
室内設備
システムキッチンが備え付けられています。 トイレは、温水洗浄便座機能付きになります。 女性に嬉しい設備の独立した洗面化粧台があります。 洗濯に便利な設備として、室内洗濯機置場があります。浴室乾燥機も設置されているので、梅雨時の生乾き臭も比較的防ぐことができます。
居室状況
エアコンが設置されています。 インターネットも無料で入居後すぐ生活が始められます。 収納スペースとして、玄関にはシューズボックスがあります。
建物設備共用部分
居室外の専有スペースとして、洗濯物を干すなどの用途として利用できるバルコニーがあります。 建物の共用スペースに、日々の出入に便利なエレベーターや、いざという時の防犯カメラや、急な外出や不在がちのご家庭の荷物受け取りに便利な宅配ボックスが設置されています。
周辺施設
この物件の学区は、橘小学校区・伊勢山中学校区です。
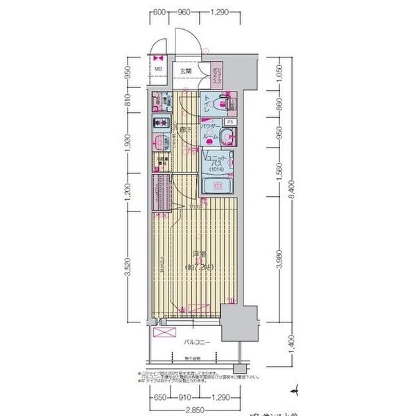
プレサンス上前津エレスタ 1102号室の間取り
間取り:1K
間取詳細:1K(洋7.2)
専有面積:23.94㎡
方位:南
部屋位置:その他
プレサンス上前津エレスタ 1102号室の設備
キッチン
システムキッチン
バス・トイレ
バス・トイレ別
浴室乾燥機
温水洗浄便座
独立洗面台
玄関
TVモニタ付インターホン
オートロック
宅配ボックス
収納
シューズボックス
バルコニー
バルコニー
ルーフバルコニー
室内設備
エアコン
室内洗濯機置場
位置・立地
2階以上
南向き
インフラ
都市ガス
オール電化
建物設備
エレベーター
防犯カメラ
分譲賃貸
ライフステージ
一人暮らしに人気の設備
カップルに人気の設備
家族に人気の設備
夫婦に人気の設備
三世代で人気の設備
こだわり
セキュリティ対策重視
外で子どもと遊びたい
身だしなみに気をつかいたい
雨の日でも洗濯したい
趣味
オークション・通販が好き
ガーデニングが好き
お得な条件
インターネット無料
プレサンス上前津エレスタ 1102号室の賃貸契約情報
毎月支払う |
家賃6.281万円/月共益費7,190円/月 |
|---|---|
初期費用 |
敷金-礼金70,000円保証金-敷引き償却金- |
更新料 |
11,000円 |
鍵交換費用 |
29,700円 |
室内清掃費用 |
- |
駐車場料金 |
- |
損保・ |
借家賠付きの火災保険にご加入いただきます。 |
保証会社 |
加入要 保証会社利用料:株式会社プレサンスギャランティギャランティ 初回50% 月1.5%・セーフティー 初回50% 年10 |
契約期間 |
1年 |
入居可能日 |
相談 |
フリーレント期間 |
- |
取引形態 |
一般媒介 |
備考 |
プレサポ安心24 : 990円/月(物件によっては年払い) 火災保険 個人11000円~/1年 法人20000円~/2年 図面と現状が異なる場合は現状優先となります。 (内装工事による各種仕様の変更・玄関及びバルコニーの形状・間取図面の反転タイプ・設備撤去等設備項目の変更、取扱など) 退去時ハウスクリーニング代35000円 |
プレサンス上前津エレスタ 1102号室の建物情報
建物名称 |
プレサンス上前津エレスタ |
|---|---|
最寄駅 |
|
所在地 |
愛知県名古屋市中区千代田 |
階層 |
11階部分(地上15階建) |
構造 |
RC |
築年数 |
2023年6月(築3年) |
駐車場 |
- |
小学校学区 |
橘小学校 |
中学校学区 |
伊勢山中学校 |
- 学区データについて
- ※学区データは必ずしも正確とは限りません。詳細に関しては最寄店舗または各自治体の教育委員会に必ずご確認ください。
無料この物件に問い合わせ
- プレサンス上前津エレスタ 1102号室

-
6.281万円
(共益費
7,190円)
- 敷
- -
- 礼
- 70,000円
- 保
- -
- 償
- -
プレサンス上前津エレスタ 1102号室の物件のお問い合わせ先・取り扱い店舗
ハウスコム 金山店
- アクセス
-
東海道本線(JR東海)「金山駅」南口徒歩3分
- 住所
- 〒456-0002 愛知県名古屋市熱田区金山町1-7-20 SH SQUARE Kanayama1階
- 営業時間
- 10:00~18:00
- 定休日
- なし
- 営業エリア
- 熱田区、中区、昭和区、瑞穂区、中川区、港区、南区
- 取引態様
- 賃貸仲介業





























