リブリ・高島台 202号室(2階/1K)の賃貸物件(賃貸アパート)
神奈川県横浜市神奈川区にあるリブリ・高島台 202号室は温水洗浄便座、エアコン、室内洗濯機置場、都市ガス、防犯カメラなどが特徴です。最寄り駅の京浜東北・根岸線横浜駅から徒歩12分です。リブリ・高島台 202号室の詳細はハウスコム 綱島店までお気軽にお問い合わせください!
情報更新日:
次回更新予定日:
※次回更新予定日について:お店側では順次空室確認を行っていますが、次回更新予定日までに空室確認が行えない場合には、この物件情報は自動的に削除されます。
リブリ・高島台 202号室の賃貸物件部屋概要
家賃 |
9.1万円
初期費用を |
|---|---|
共益費 |
4,000円
入居可能時期 |
敷金/礼金 |
- / 2ヶ月 |
保証金/ |
- / - |
最寄駅 |
|
所在地 |
神奈川県横浜市神奈川区高島台 |
部屋番号 |
202号室 |
間取り |
1K(K1.8・洋7.9) |
専有面積 |
24.63㎡ |
築年数 |
2018年5月(築8年) |
階数 |
2階部分(地上2階建) |
方位・位置 |
南 / その他 |
物件種別 |
賃貸アパート |
構造 |
木造 |
駐車場 |
無 |
小学校学区 |
青木小学校 |
中学校学区 |
栗田谷中学校 |
他の空き部屋 |
ー |
- 学区データについて
- ※学区データは必ずしも正確とは限りません。詳細に関しては最寄店舗または各自治体の教育委員会に必ずご確認ください。
リブリ・高島台 202号室の特徴
契約条件
敷金が無料なため、初期費用が比較的安くなる傾向にあります。
セキュリティ
この物件の建物には、防犯カメラが設置されており、来客時には居室内のテレビモニターにて訪問者の顔を確認することができます。
室内設備
システムキッチンが備え付けられています。 トイレは、温水洗浄便座機能付きになります。 女性に嬉しい設備の独立した洗面化粧台があります。 洗濯に便利な設備として、室内洗濯機置場があります。浴室乾燥機も設置されているので、梅雨時の生乾き臭も比較的防ぐことができます。
居室状況
お部屋の床は、フローリングとなっており、エアコンが設置されています。 収納スペースとして、玄関にはシューズボックスがあります。
建物設備共用部分
建物の共用スペースに、いざという時の防犯カメラが設置されています。 駐輪場が利用できます。
周辺施設
この物件の学区は、青木小学校区・栗田谷中学校区です。
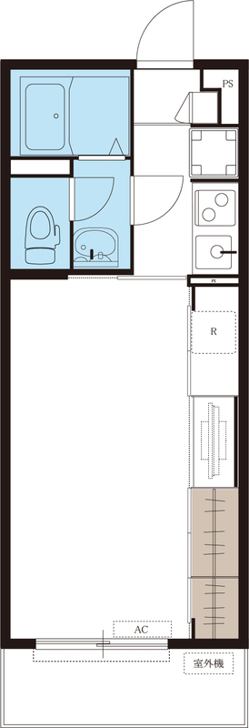
リブリ・高島台 202号室の間取り
間取り:1K
間取詳細:1K(K1.8・洋7.9)
専有面積:24.63㎡
方位:南
部屋位置:その他
リブリ・高島台 202号室の設備
キッチン
システムキッチン
バス・トイレ
バス・トイレ別
浴室乾燥機
温水洗浄便座
独立洗面台
玄関
TVモニタ付インターホン
収納
シューズボックス
室内設備
エアコン
フローリング
室内洗濯機置場
位置・立地
2階以上
最上階
南向き
インフラ
都市ガス
建物設備
防犯カメラ
駐輪場
ライフステージ
一人暮らしに人気の設備
カップルに人気の設備
家族に人気の設備
夫婦に人気の設備
三世代で人気の設備
こだわり
雨の日でも洗濯したい
洋室で暮らしたい
リブリ・高島台 202号室の賃貸契約情報
毎月支払う |
家賃9.1万円/月共益費4,000円/月 |
|---|---|
初期費用 |
敷金-礼金2ヶ月 (18.2万円)保証金-敷引き償却金- |
更新料 |
- |
鍵交換費用 |
24,000円 |
室内清掃費用 |
- |
退去時ルームクリーニング費用 |
36,300円 |
室内消毒代 |
16,500円 |
リブリクラブ月額会費 |
2,200円 |
駐車場料金 |
無 |
損保・ |
借家賠付きの火災保険にご加入いただきます。 |
保証会社 |
加入要 保証会社利用料:株式会社スマートクレジット 保証人代行会社名:株式会社スマートクレジット(プランP)基本料:月額支払合計の100% 、月額料:月額支払合計の1.1%、口振手数料:330円/月 |
契約期間 |
定期借家 2年 |
入居可能日 |
2026年04月下旬 |
フリーレント期間 |
- |
取引形態 |
一般媒介 |
備考 |
- |
リブリ・高島台 202号室の建物情報
建物名称 |
リブリ・高島台 |
|---|---|
最寄駅 |
|
所在地 |
神奈川県横浜市神奈川区高島台 |
階層 |
2階部分(地上2階建) |
構造 |
木造 |
築年数 |
2018年5月(築8年) |
駐車場 |
無 |
小学校学区 |
青木小学校 |
中学校学区 |
栗田谷中学校 |
- 学区データについて
- ※学区データは必ずしも正確とは限りません。詳細に関しては最寄店舗または各自治体の教育委員会に必ずご確認ください。
無料この物件に問い合わせ
- リブリ・高島台 202号室

-
9.1万円
(共益費
4,000円)
- 敷
- -
- 礼
- 2ヶ月
- 保
- -
- 償
- -
リブリ・高島台 202号室の物件のお問い合わせ先・取り扱い店舗
ハウスコム 綱島店
- アクセス
-
東急東横線「綱島駅」西口徒歩1分
- 住所
- 〒223-0053 神奈川県横浜市港北区綱島西1丁目1−4 グロリア目代 1階
- 営業時間
- 10:00~18:00
- 定休日
- 水曜日
- 営業エリア
- 横浜市港北区,横浜市都筑区,横浜市鶴見区、横浜市神奈川区、川崎市中原区、川崎市高津区
- 取引態様
- 賃貸仲介業




























