ビレッジハウス笹川15号棟 0203号室(2階/2DK)の賃貸物件(賃貸マンション)
三重県四日市市にあるビレッジハウス笹川15号棟 0203号室はバス・トイレ別、温水洗浄便座、室内洗濯機置場、南向き、CATVなどが特徴です。最寄り駅の四日市あすなろう鉄道西日野駅から徒歩28分です。ビレッジハウス笹川15号棟 0203号室の詳細はハウスコム 四日市店までお気軽にお問い合わせください!
情報更新日:
次回更新予定日:
※次回更新予定日について:お店側では順次空室確認を行っていますが、次回更新予定日までに空室確認が行えない場合には、この物件情報は自動的に削除されます。
ビレッジハウス笹川15号棟 0203号室の賃貸物件部屋概要
家賃 |
3.76万円
初期費用を |
|---|---|
共益費 |
-
入居可能時期 |
敷金/礼金 |
- / - |
保証金/ |
- / - |
最寄駅 |
|
所在地 |
三重県四日市市笹川 |
部屋番号 |
0203号室 |
間取り |
2DK |
専有面積 |
39.80㎡ |
築年数 |
1972年3月(築55年) |
階数 |
2階部分(地上5階建) |
方位・位置 |
南 / その他 |
物件種別 |
賃貸マンション |
構造 |
RC |
駐車場 |
3,300円 |
小学校学区 |
笹川小学校 |
中学校学区 |
西笹川中学校 |
他の空き部屋 |
ー |
- 学区データについて
- ※学区データは必ずしも正確とは限りません。詳細に関しては最寄店舗または各自治体の教育委員会に必ずご確認ください。
ビレッジハウス笹川15号棟 0203号室の特徴
契約条件
この物件は、2人入居もご契約できます。 ペットの飼育もご相談ください。 敷金と礼金が無料なため、初期費用が比較的安くなる傾向にあります。
室内設備
トイレは、温水洗浄便座機能付きになります。 洗濯に便利な設備として、室内洗濯機置場があります。
居室状況
エアコンが設置されています。
周辺施設
この物件の学区は、笹川小学校区・西笹川中学校区です。
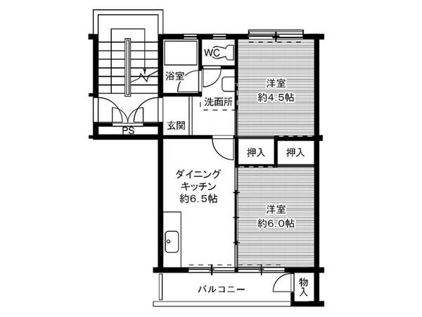
ビレッジハウス笹川15号棟 0203号室の間取り
間取り:2DK
間取詳細:2DK
専有面積:39.80㎡
方位:南
部屋位置:その他
ビレッジハウス笹川15号棟 0203号室の設備
バス・トイレ
バス・トイレ別
温水洗浄便座
室内設備
エアコン
室内洗濯機置場
位置・立地
2階以上
南向き
インフラ
インターネット可
CATV
都市ガス
入居条件
ペット可・相談
2人入居可
ライフステージ
一人暮らしに人気の設備
カップルに人気の設備
家族に人気の設備
夫婦に人気の設備
三世代で人気の設備
こだわり
雨の日でも洗濯したい
寝るためだけの部屋
ビレッジハウス笹川15号棟 0203号室の賃貸契約情報
毎月支払う |
家賃3.76万円/月共益費- |
|---|---|
初期費用 |
敷金-礼金-保証金-敷引き償却金- |
更新料 |
- |
鍵交換費用 |
- |
室内清掃費用 |
- |
退去時クリーニング費用 |
48,158円 |
駐車場料金 |
3,300円 |
損保・ |
借家賠付きの火災保険にご加入いただきます。 |
保証会社 |
|
契約期間 |
2年 |
入居可能日 |
2026年04月上旬 |
フリーレント期間 |
- |
取引形態 |
一般媒介 |
備考 |
- |
ビレッジハウス笹川15号棟 0203号室の建物情報
建物名称 |
ビレッジハウス笹川15号棟 |
|---|---|
最寄駅 |
|
所在地 |
三重県四日市市笹川 |
階層 |
2階部分(地上5階建) |
構造 |
RC |
築年数 |
1972年3月(築55年) |
駐車場 |
3,300円 |
小学校学区 |
笹川小学校 |
中学校学区 |
西笹川中学校 |
1/6 外観
- 学区データについて
- ※学区データは必ずしも正確とは限りません。詳細に関しては最寄店舗または各自治体の教育委員会に必ずご確認ください。
無料この物件に問い合わせ
- ビレッジハウス笹川15号棟 0203号室

-
3.76万円
(共益費
-)
- 敷
- -
- 礼
- -
- 保
- -
- 償
- -
ビレッジハウス笹川15号棟 0203号室の物件のお問い合わせ先・取り扱い店舗
ハウスコム 四日市店
水曜日営業
土日営業
年中無休(年末年始などを除く)
- アクセス
-
近鉄名古屋線「近鉄四日市駅」西口より送迎あり
- 住所
- 〒510-0064 三重県四日市市新正2丁目7−25
- 営業時間
- 10:00~18:00
- 定休日
- なし
- 営業エリア
- 四日市市、桑名市、鈴鹿市、いなべ市、三重郡川越町、三重郡朝日町、三重郡菰野町、三重郡東員町
- 取引態様
- 賃貸仲介業
お問い合わせNo. HC5-4013165-0203-0014

























