LaDouceur西天満 ***号室(8階/1K)の賃貸物件(賃貸マンション)
大阪府大阪市北区にあるLaDouceur西天満 ***号室はバス・トイレ別、シャワー付洗面化粧台、室内洗濯機置場、2階以上、24時間換気システムなどが特徴です。最寄り駅の京阪中之島線なにわ橋駅から徒歩6分です。LaDouceur西天満 ***号室の詳細はハウスコム FC新大阪北店までお気軽にお問い合わせください!
情報更新日:
次回更新予定日:
※次回更新予定日について:お店側では順次空室確認を行っていますが、次回更新予定日までに空室確認が行えない場合には、この物件情報は自動的に削除されます。
LaDouceur西天満 ***号室の賃貸物件部屋概要
家賃 |
8.4万円
初期費用を |
|---|---|
共益費 |
10,000円
入居可能時期 |
敷金/礼金 |
- / 94,000円 |
保証金/ |
- / - |
最寄駅 |
|
所在地 |
大阪府大阪市北区西天満 |
部屋番号 |
***号室 |
間取り |
1K(洋7・K2) |
専有面積 |
24.75㎡ |
築年数 |
2020年3月(築6年) |
階数 |
8階部分(地上15階建) |
方位・位置 |
北東 / その他 |
物件種別 |
賃貸マンション |
構造 |
RC |
駐車場 |
33,000円 |
小学校学区 |
西天満小学校 |
中学校学区 |
天満中学校 |
他の空き部屋 |
***号室 ***号室 ***号室 ***号室 ***号室 ***号室 ***号室 ***号室 ***号室 ***号室 |
- 学区データについて
- ※学区データは必ずしも正確とは限りません。詳細に関しては最寄店舗または各自治体の教育委員会に必ずご確認ください。
LaDouceur西天満 ***号室の特徴
-
一人暮らしに人気の設備

-
カップルに人気の設備

-
家族に人気の設備

-
夫婦に人気の設備

-
三世代で人気の設備

-
セキュリティ対策重視

-
タイパ重視

-
身だしなみに気をつかいたい

-
雨の日でも洗濯したい

-
洋室で暮らしたい

-
服やおしゃれが好き

-
オークション・通販が好き

契約条件
敷金が無料なため、初期費用が比較的安くなる傾向にあります。 お支払いは、初期費用がクレジットカードにて決済できます。
セキュリティ
この物件の建物には、オートロックや防犯カメラや宅配ボックスが設置されており、来客時には居室内のテレビモニターにて訪問者の顔を確認することができます。
室内設備
システムキッチンには、2つ以上のガスコンロが備え付けられています。 トイレは、温水洗浄便座機能付きになります。 女性に嬉しい設備のシャワーの付いている洗面化粧台があります。 洗濯に便利な設備として、室内洗濯機置場があります。浴室乾燥機も設置されているので、梅雨時の生乾き臭も比較的防ぐことができます。
居室状況
お部屋の床は、フローリングとなっており、エアコンが設置されています。 照明器具が備え付けられており、インターネットも無料で入居後すぐ生活が始められます。 収納スペースとして、通常よりも収納力の高いウォークインクローゼット、玄関にはシューズボックスがあります。
建物設備共用部分
居室外の専有スペースとして、洗濯物を干すなどの用途として利用できるバルコニーがあります。 建物の共用スペースに、日々の出入に便利なエレベーターや、いざという時の防犯カメラや、急な外出や不在がちのご家庭の荷物受け取りに便利な宅配ボックスや、居室内を常に清潔に保てる24時間利用可能なゴミ捨て置き場が設置されています。 駐輪場、バイク置き場が利用できます。
周辺施設
この物件の学区は、西天満小学校区・天満中学校区です。
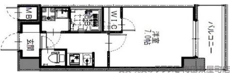
LaDouceur西天満 ***号室の間取り
間取り:1K
間取詳細:1K(洋7・K2)
専有面積:24.75㎡
方位:北東
部屋位置:その他
LaDouceur西天満 ***号室の設備
キッチン
システムキッチン
ガスコンロ
ガスコンロ二口以上
バス・トイレ
バス・トイレ別
浴室乾燥機
温水洗浄便座
独立洗面台
シャワー付洗面化粧台
玄関
TVモニタ付インターホン
オートロック
宅配ボックス
収納
ウォークインクローゼット
シューズボックス
バルコニー
バルコニー
室内設備
エアコン
フローリング
室内洗濯機置場
照明器具付
位置・立地
2階以上
インフラ
インターネット可
CATV
BS
CS
都市ガス
建物設備
エレベーター
防犯カメラ
24時間ゴミ出しOK
24時間換気システム
駐輪場
バイク置き場
分譲賃貸
入居条件
オンライン相談可
オンライン内見可
ライフステージ
一人暮らしに人気の設備
カップルに人気の設備
家族に人気の設備
夫婦に人気の設備
三世代で人気の設備
こだわり
セキュリティ対策重視
タイパ重視
身だしなみに気をつかいたい
雨の日でも洗濯したい
洋室で暮らしたい
趣味
服やおしゃれが好き
オークション・通販が好き
お得な条件
インターネット無料
初期費用カード決済可
LaDouceur西天満 ***号室の賃貸契約情報
毎月支払う |
家賃8.4万円/月共益費10,000円/月 |
|---|---|
初期費用 |
敷金-礼金94,000円保証金-敷引き償却金- |
更新料 |
- |
鍵交換費用 |
22,000円 |
室内清掃費用 |
38,500円 |
エアコンクリーニング代 |
16,500円 |
消毒代 |
16,500円 |
契約事務手数料 |
7,700円 |
駐車場料金 |
33,000円 |
損保・ |
借家賠付きの火災保険にご加入いただきます。 |
保証会社 |
加入要 保証会社:エポスカード(エスリード) 保証会社利用料:初回契約時:50%、月額:1.5%、初回保証料:月額総賃料の50% 月次保証料:月額総賃料の1.5% |
契約期間 |
2年 |
入居可能日 |
相談 |
フリーレント期間 |
- |
取引形態 |
一般媒介 |
備考 |
当社HPなら全室室内写真付です。ネットには掲載できない非公開のマル秘物件も多数取り揃えてます。気に入ったお部屋が有れば、どこの不動産屋さんよりも、初期費用お安く交渉します。当社では全力でお客様のお部屋探しをサポート致します。全物件家具付対応プランもご用意しておりますのでお気軽にご相談下さい。ネットで気になった物件全て、ご予約やお問合せをされていなくても、当日すぐにご案内可能です。 |
LaDouceur西天満 ***号室の建物情報
建物名称 |
LaDouceur西天満 |
|---|---|
最寄駅 |
|
所在地 |
大阪府大阪市北区西天満 |
階層 |
8階部分(地上15階建) |
構造 |
RC |
築年数 |
2020年3月(築6年) |
駐車場 |
33,000円 |
小学校学区 |
西天満小学校 |
中学校学区 |
天満中学校 |
- 学区データについて
- ※学区データは必ずしも正確とは限りません。詳細に関しては最寄店舗または各自治体の教育委員会に必ずご確認ください。
無料この物件に問い合わせ
- LaDouceur西天満 ***号室

-
8.4万円
(共益費
10,000円)
- 敷
- -
- 礼
- 94,000円
- 保
- -
- 償
- -
LaDouceur西天満 ***号室の物件のお問い合わせ先・取り扱い店舗
ハウスコム FC新大阪北店
- アクセス
-
大阪メトロ 御堂筋線「東三国駅」徒歩1分
大阪メトロ 御堂筋線「新大阪駅」徒歩15分
東海道本線(JR西日本)「東淀川駅」徒歩10分
- 住所
- 〒532-0002 大阪府大阪市淀川区東三国5丁目2-20 岸本ビル1階
- 営業時間
- 10:00~19:00
- 定休日
- なし(年末年始を除く)
- 営業エリア
- 大阪府内(北区・淀川区・吹田市・豊中市・箕面市・茨木市・高槻市) ・尼崎市
- 取引態様
- 賃貸仲介業・FC店





























