レオパレスルネッサ 201号室(2階/1K)の賃貸物件(賃貸アパート)
神奈川県横浜市青葉区にあるレオパレスルネッサ 201号室はエアコン、室内洗濯機置場、最上階、インターネット可、オンライン相談可などが特徴です。最寄り駅の東急田園都市線青葉台駅から徒歩13分です。レオパレスルネッサ 201号室の詳細はハウスコム 青葉台店までお気軽にお問い合わせください!
情報更新日:
次回更新予定日:
※次回更新予定日について:お店側では順次空室確認を行っていますが、次回更新予定日までに空室確認が行えない場合には、この物件情報は自動的に削除されます。
レオパレスルネッサ 201号室の賃貸物件部屋概要
家賃 |
7.5万円
初期費用を |
|---|---|
共益費 |
5,500円
入居可能時期 |
敷金/礼金 |
- / 75,000円 |
保証金/ |
- / - |
最寄駅 |
|
所在地 |
神奈川県横浜市青葉区藤が丘 |
部屋番号 |
201号室 |
間取り |
1K |
専有面積 |
24.84㎡ |
築年数 |
1997年10月(築29年) |
階数 |
2階部分(地上2階建) |
方位・位置 |
ー / その他 |
物件種別 |
賃貸アパート |
構造 |
木造 |
駐車場 |
17,600円 |
小学校学区 |
藤が丘小学校 |
中学校学区 |
谷本中学校 |
他の空き部屋 |
ー |
- 学区データについて
- ※学区データは必ずしも正確とは限りません。詳細に関しては最寄店舗または各自治体の教育委員会に必ずご確認ください。
レオパレスルネッサ 201号室の特徴
契約条件
敷金が無料なため、初期費用が比較的安くなる傾向にあります。
室内設備
洗濯に便利な設備として、室内洗濯機置場があります。
居室状況
エアコンが設置されています。
周辺施設
この物件の学区は、藤が丘小学校区・谷本中学校区です。
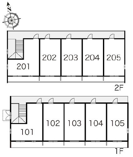
レオパレスルネッサ 201号室の間取り
間取り:1K
間取詳細:1K
専有面積:24.84㎡
方位:ー
部屋位置:その他
レオパレスルネッサ 201号室の設備
バス・トイレ
バス・トイレ別
室内設備
エアコン
室内洗濯機置場
位置・立地
2階以上
最上階
インフラ
インターネット可
入居条件
オンライン相談可
ライフステージ
一人暮らしに人気の設備
カップルに人気の設備
家族に人気の設備
夫婦に人気の設備
三世代で人気の設備
こだわり
雨の日でも洗濯したい
レオパレスルネッサ 201号室の賃貸契約情報
毎月支払う |
家賃7.5万円/月共益費5,500円/月 |
|---|---|
初期費用 |
敷金-礼金75,000円保証金-敷引き償却金- |
更新料 |
- |
鍵交換費用 |
16,500円 |
室内清掃費用 |
38,500円 |
抗菌施工(任意) |
23,760円 |
駐車場料金 |
17,600円 |
損保・ |
借家賠付きの火災保険にご加入いただきます。 |
保証会社 |
加入要 保証会社利用料:保証料:93590円(契約内容により100~120%で変動有)※記載金額は120%の場合 |
契約期間 |
- |
入居可能日 |
2026年05月中旬 |
フリーレント期間 |
- |
取引形態 |
一般媒介 |
備考 |
- |
レオパレスルネッサ 201号室の建物情報
建物名称 |
レオパレスルネッサ |
|---|---|
最寄駅 |
|
所在地 |
神奈川県横浜市青葉区藤が丘 |
階層 |
2階部分(地上2階建) |
構造 |
木造 |
築年数 |
1997年10月(築29年) |
駐車場 |
17,600円 |
小学校学区 |
藤が丘小学校 |
中学校学区 |
谷本中学校 |
1/8 外観
- 学区データについて
- ※学区データは必ずしも正確とは限りません。詳細に関しては最寄店舗または各自治体の教育委員会に必ずご確認ください。
無料この物件に問い合わせ
- レオパレスルネッサ 201号室

-
7.5万円
(共益費
5,500円)
- 敷
- -
- 礼
- 75,000円
- 保
- -
- 償
- -
レオパレスルネッサ 201号室の物件のお問い合わせ先・取り扱い店舗
ハウスコム 青葉台店
駅徒歩1分以内
駅徒歩3分以内
駅徒歩5分以内
- アクセス
-
東急田園都市線「青葉台駅」徒歩1分
- 住所
- 〒227-0062 神奈川県横浜市青葉区青葉台1丁目6−13 ケントロンビル 3階
- 営業時間
- 10:00~18:00
- 定休日
- 水曜日
- 営業エリア
- 横浜市青葉区 横浜市緑区 横浜市都筑区 東京都町田市 大和市
- 取引態様
- 賃貸仲介業
お問い合わせNo. HC5-138936-201-0124


























