ロイヤルパークス品川 2116号室(21階/3LDK)の賃貸物件(賃貸マンション)
東京都港区にあるロイヤルパークス品川 2116号室は浴室乾燥機、フローリング、床下暖房、2階以上、楽器可・相談などが特徴です。最寄り駅の山手線品川駅から徒歩11分です。ロイヤルパークス品川 2116号室の詳細はハウスコム 五反田店までお気軽にお問い合わせください!
情報更新日:
次回更新予定日:
※次回更新予定日について:お店側では順次空室確認を行っていますが、次回更新予定日までに空室確認が行えない場合には、この物件情報は自動的に削除されます。
ロイヤルパークス品川 2116号室の賃貸物件部屋概要
家賃 |
48.8万円
初期費用を |
|---|---|
共益費 |
30,000円
入居可能時期 |
敷金/礼金 |
1ヶ月 / - |
保証金/ |
- / - |
最寄駅 |
|
所在地 |
東京都港区港南 |
部屋番号 |
2116号室 |
間取り |
3LDK |
専有面積 |
79.36㎡ |
築年数 |
2025年1月(築2年) |
階数 |
21階部分(地上28階建) |
方位・位置 |
東 / その他 |
物件種別 |
賃貸マンション |
構造 |
RC |
駐車場 |
無 |
小学校学区 |
港南小学校 |
中学校学区 |
港南中学校 |
他の空き部屋 |
1408号室 1413号室 1508号室 2105号室 2601号室 2804号室 2809号室 |
- 学区データについて
- ※学区データは必ずしも正確とは限りません。詳細に関しては最寄店舗または各自治体の教育委員会に必ずご確認ください。
ロイヤルパークス品川 2116号室の特徴
-
一人暮らしに人気の設備

-
カップルに人気の設備

-
家族に人気の設備

-
夫婦に人気の設備

-
三世代で人気の設備

-
キッチン重視

-
タイパ重視

-
外で子どもと遊びたい

-
雨の日でも洗濯したい

-
洋室で暮らしたい

-
自炊が多めなあなたに

-
料理が好き

-
服やおしゃれが好き

-
推し活グッズを飾りたい

-
ガーデニングが好き

契約条件
ペットの飼育や楽器演奏もご相談ください。 礼金が無料なため、初期費用が比較的安くなる傾向にあります。
セキュリティ
この物件の建物には、オートロックや宅配ボックスが設置されており、来客時には居室内のテレビモニターにて訪問者の顔を確認することができます。
室内設備
システムキッチンには、ガスコンロが設置されており、キッチン設備として食洗機が備え付けられています。 お風呂とトイレは別です。お風呂には、追い焚き機能が備わっています。 女性に嬉しい設備の独立した洗面化粧台があります。 洗濯に便利な設備として、室内洗濯機置場があります。浴室乾燥機も設置されているので、梅雨時の生乾き臭も比較的防ぐことができます。
居室状況
お部屋の床は、フローリングとなっており、エアコンと一部床下暖房が設置されています。 収納スペースとして、基本的な居室にクローゼットを設置、通常よりも収納力の高いウォークインクローゼットがあります。
建物設備共用部分
居室外の専有スペースとして、洗濯物を干すなどの用途として利用できるバルコニーがあります。 建物の共用スペースに、日々の出入に便利なエレベーターや、急な外出や不在がちのご家庭の荷物受け取りに便利な宅配ボックスや、居室内を常に清潔に保てる24時間利用可能なゴミ捨て置き場が設置されています。 バイク置き場が利用できます。
周辺施設
この物件の学区は、港南小学校区・港南中学校区です。
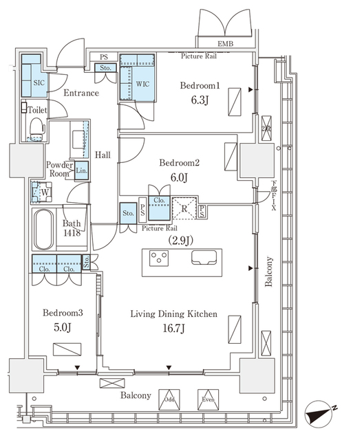
ロイヤルパークス品川 2116号室の間取り
間取り:3LDK
間取詳細:3LDK
専有面積:79.36㎡
方位:東
部屋位置:その他
ロイヤルパークス品川 2116号室の設備
キッチン
システムキッチン
カウンターキッチン
ガスコンロ
食洗機
バス・トイレ
バス・トイレ別
追い焚き
浴室乾燥機
独立洗面台
玄関
TVモニタ付インターホン
オートロック
宅配ボックス
収納
クローゼット
ウォークインクローゼット
バルコニー
バルコニー
ルーフバルコニー
室内設備
エアコン
フローリング
床下暖房
室内洗濯機置場
位置・立地
2階以上
インフラ
BS
CS
建物設備
エレベーター
24時間ゴミ出しOK
バイク置き場
入居条件
ペット可・相談
楽器可・相談
オンライン内見可
ライフステージ
一人暮らしに人気の設備
カップルに人気の設備
家族に人気の設備
夫婦に人気の設備
三世代で人気の設備
こだわり
キッチン重視
タイパ重視
外で子どもと遊びたい
雨の日でも洗濯したい
洋室で暮らしたい
自炊が多めなあなたに
趣味
料理が好き
服やおしゃれが好き
推し活グッズを飾りたい
ガーデニングが好き
ロイヤルパークス品川 2116号室の賃貸契約情報
毎月支払う |
家賃48.8万円/月共益費30,000円/月 |
|---|---|
初期費用 |
敷金1ヶ月 (48.8万円)礼金-保証金-敷引き償却金- |
更新料 |
488,000円 |
鍵交換費用 |
- |
室内清掃費用 |
- |
室内清掃費 |
122,214円 |
鍵交換費 |
22,000円 |
駐車場料金 |
無 |
損保・ |
借家賠付きの火災保険にご加入いただきます。 |
保証会社 |
加入要 保証会社利用料:保証会社名:クレディセゾン・レジデントアシスタンス株式会社/初回保証委託料(最低15000円):月額賃料等の50%、 2年目以降:10000円/年 |
契約期間 |
2年 |
入居可能日 |
2026年05月上旬 |
フリーレント期間 |
- |
取引形態 |
一般媒介 |
備考 |
1年未満解約違約金あり(賃料共益費1ヶ月分) |
ロイヤルパークス品川 2116号室の建物情報
建物名称 |
ロイヤルパークス品川 |
|---|---|
最寄駅 |
|
所在地 |
東京都港区港南 |
階層 |
21階部分(地上28階建) |
構造 |
RC |
築年数 |
2025年1月(築2年) |
駐車場 |
無 |
小学校学区 |
港南小学校 |
中学校学区 |
港南中学校 |
- 学区データについて
- ※学区データは必ずしも正確とは限りません。詳細に関しては最寄店舗または各自治体の教育委員会に必ずご確認ください。
無料この物件に問い合わせ
- ロイヤルパークス品川 2116号室

-
48.8万円
(共益費
30,000円)
- 敷
- 1ヶ月
- 礼
- -
- 保
- -
- 償
- -
ロイヤルパークス品川 2116号室の物件のお問い合わせ先・取り扱い店舗
ハウスコム 五反田店
- アクセス
-
山手線「五反田駅」東口徒歩1分
都営浅草線「五反田駅」A6出口より徒歩1分
- 住所
- 〒141-0022 東京都品川区東五反田1丁目12−12 落合ビル 2F
- 営業時間
- 10:00~18:00
- 定休日
- 水曜日
- 営業エリア
- 品川区,大田区,港区,目黒区
- 取引態様
- 賃貸仲介業


















