パークアクシス名駅南 1202号室(12階/1R)の賃貸物件(賃貸マンション)
愛知県名古屋市中村区にあるパークアクシス名駅南 1202号室はシステムキッチン、ルーフバルコニー、室内洗濯機置場、CS、エレベーターなどが特徴です。最寄り駅の名古屋市営地下鉄 東山線名古屋駅から徒歩12分です。パークアクシス名駅南 1202号室の詳細はハウスコム 中村公園店までお気軽にお問い合わせください!
情報更新日:
次回更新予定日:
※次回更新予定日について:お店側では順次空室確認を行っていますが、次回更新予定日までに空室確認が行えない場合には、この物件情報は自動的に削除されます。
パークアクシス名駅南 1202号室の賃貸物件部屋概要
家賃 |
6万円
初期費用を |
|---|---|
共益費 |
6,000円
入居可能時期 |
敷金/礼金 |
1ヶ月 / 1ヶ月 |
保証金/ |
- / - |
最寄駅 |
|
所在地 |
愛知県名古屋市中村区名駅南 |
部屋番号 |
1202号室 |
間取り |
1R |
専有面積 |
24.12㎡ |
築年数 |
2006年3月(築21年) |
階数 |
12階部分(地上15階建) |
方位・位置 |
西 / その他 |
物件種別 |
賃貸マンション |
構造 |
RC |
駐車場 |
無 |
小学校学区 |
笹島小学校 |
中学校学区 |
笹島中学校 |
他の空き部屋 |
1102号室 1204号室 1213号室 1407号室 206号室 207号室 302号室 312号室 616号室 |
- 学区データについて
- ※学区データは必ずしも正確とは限りません。詳細に関しては最寄店舗または各自治体の教育委員会に必ずご確認ください。
パークアクシス名駅南 1202号室の特徴
契約条件
保証会社との契約が必要となる場合があります。
セキュリティ
この物件の建物には、オートロックや宅配ボックスが設置されております。
室内設備
システムキッチンには、IHコンロが備え付けられています。 お風呂とトイレは別です。お風呂には、追い焚き機能が備わっています。 洗濯に便利な設備として、室内洗濯機置場があります。浴室乾燥機も設置されているので、梅雨時の生乾き臭も比較的防ぐことができます。
居室状況
エアコンが設置されています。
建物設備共用部分
居室外の専有スペースとして、洗濯物を干すなどの用途として利用できるバルコニーがあります。 建物の共用スペースに、日々の出入に便利なエレベーターや、急な外出や不在がちのご家庭の荷物受け取りに便利な宅配ボックスが設置されています。 バイク置き場が利用できます。
周辺施設
この物件の学区は、笹島小学校区・笹島中学校区です。近くには、徒歩15分(1146m)でマックスバリュ太閤店があります。
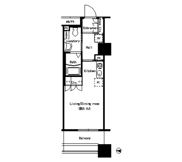
パークアクシス名駅南 1202号室の間取り
間取り:1R
間取詳細:1R
専有面積:24.12㎡
方位:西
部屋位置:その他
パークアクシス名駅南 1202号室の設備
キッチン
システムキッチン
IHコンロ
バス・トイレ
バス・トイレ別
追い焚き
浴室乾燥機
玄関
オートロック
宅配ボックス
バルコニー
バルコニー
ルーフバルコニー
室内設備
エアコン
室内洗濯機置場
位置・立地
2階以上
インフラ
インターネット可
CATV
BS
CS
建物設備
エレベーター
バイク置き場
入居条件
保証会社利用可
即入居可
ライフステージ
一人暮らしに人気の設備
カップルに人気の設備
家族に人気の設備
夫婦に人気の設備
三世代で人気の設備
こだわり
外で子どもと遊びたい
雨の日でも洗濯したい
趣味
ガーデニングが好き
パークアクシス名駅南 1202号室の賃貸契約情報
毎月支払う |
家賃6万円/月共益費6,000円/月 |
|---|---|
初期費用 |
敷金1ヶ月 (6万円)礼金1ヶ月 (6万円)保証金-敷引き償却金- |
更新料 |
- |
鍵交換費用 |
- |
室内清掃費用 |
- |
室内清掃費 |
41,800円 |
鍵交換費 |
16,500円 |
駐車場料金 |
無 |
損保・ |
借家賠付きの火災保険にご加入いただきます。 |
保証会社 |
利用可 保証会社:オリコフォレントインシュア 保証会社利用料:初回保証委託料(最低20000円):月額賃料等の50%、2年目以降:10000円/年 |
契約期間 |
2年 |
入居可能日 |
即入居可 |
フリーレント期間 |
- |
取引形態 |
一般媒介 |
備考 |
- |
パークアクシス名駅南 1202号室の建物情報
建物名称 |
パークアクシス名駅南 |
|---|---|
最寄駅 |
|
所在地 |
愛知県名古屋市中村区名駅南 |
階層 |
12階部分(地上15階建) |
構造 |
RC |
築年数 |
2006年3月(築21年) |
駐車場 |
無 |
小学校学区 |
笹島小学校 |
中学校学区 |
笹島中学校 |
- 学区データについて
- ※学区データは必ずしも正確とは限りません。詳細に関しては最寄店舗または各自治体の教育委員会に必ずご確認ください。
無料この物件に問い合わせ
- パークアクシス名駅南 1202号室

-
6万円
(共益費
6,000円)
- 敷
- 1ヶ月
- 礼
- 1ヶ月
- 保
- -
- 償
- -
パークアクシス名駅南 1202号室の物件のお問い合わせ先・取り扱い店舗
ハウスコム 中村公園店
- アクセス
-
名古屋市営地下鉄 東山線「中村公園駅」徒歩1分
- 住所
- 〒453-0811 愛知県名古屋市中村区太閤通9丁目9 横田ビル 1階
- 営業時間
- 10:00~18:00
- 定休日
- なし
- 営業エリア
- 中村区 中川区 西区 中区 港区 海部郡 あま市 清須市
- 取引態様
- 賃貸仲介業














