ハーモニーレジデンス新宿御苑THE WEST 101号室(1階/1K)の賃貸物件(賃貸マンション)
東京都新宿区にあるハーモニーレジデンス新宿御苑THE WEST 101号室はバス・トイレ別、オートロック、専用庭付、フローリング、CSなどが特徴です。最寄り駅の東京メトロ 副都心線東新宿駅から徒歩8分です。ハーモニーレジデンス新宿御苑THE WEST 101号室の詳細はハウスコム 高田馬場店までお気軽にお問い合わせください!
情報更新日:
次回更新予定日:
※次回更新予定日について:お店側では順次空室確認を行っていますが、次回更新予定日までに空室確認が行えない場合には、この物件情報は自動的に削除されます。
ハーモニーレジデンス新宿御苑THE WEST 101号室の賃貸物件部屋概要
家賃 |
14.6万円
初期費用を |
|---|---|
共益費 |
12,000円
入居可能時期 |
敷金/礼金 |
1ヶ月 / 1ヶ月 |
保証金/ |
- / - |
最寄駅 |
|
所在地 |
東京都新宿区新宿 |
部屋番号 |
101号室 |
間取り |
1K(洋8) |
専有面積 |
25.50㎡ |
築年数 |
2018年7月(築8年) |
階数 |
1階部分(地上4階建) |
方位・位置 |
東 / 角部屋 |
物件種別 |
賃貸マンション |
構造 |
RC |
駐車場 |
- |
小学校学区 |
天神小学校 |
中学校学区 |
新宿中学校 |
他の空き部屋 |
308号室 308号室 |
- 学区データについて
- ※学区データは必ずしも正確とは限りません。詳細に関しては最寄店舗または各自治体の教育委員会に必ずご確認ください。
ハーモニーレジデンス新宿御苑THE WEST 101号室の特徴
セキュリティ
この物件の建物には、オートロックや宅配ボックスが設置されております。
室内設備
システムキッチンが備え付けられています。 女性に嬉しい設備の独立した洗面化粧台があります。
居室状況
お部屋の床は、フローリングとなっており、エアコンが設置されています。 収納スペースとして、基本的な居室にクローゼットを設置、玄関にはシューズボックスがあります。
建物設備共用部分
居室外の専有スペースとして、洗濯物を干すなどの用途として利用できるバルコニーがあります。 建物の共用スペースに、日々の出入に便利なエレベーターや、急な外出や不在がちのご家庭の荷物受け取りに便利な宅配ボックスが設置されています。
周辺施設
この物件の学区は、天神小学校区・新宿中学校区です。
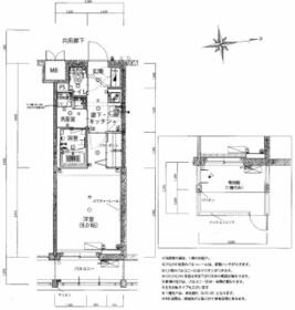
ハーモニーレジデンス新宿御苑THE WEST 101号室の間取り
間取り:1K
間取詳細:1K(洋8)
専有面積:25.50㎡
方位:東
部屋位置:角部屋
ハーモニーレジデンス新宿御苑THE WEST 101号室の設備
キッチン
システムキッチン
バス・トイレ
バス・トイレ別
独立洗面台
玄関
オートロック
宅配ボックス
収納
クローゼット
シューズボックス
バルコニー
バルコニー
ルーフバルコニー
専用庭付
室内設備
エアコン
フローリング
位置・立地
1階
角部屋
インフラ
インターネット可
CATV
BS
CS
プロパンガス
建物設備
エレベーター
ライフステージ
一人暮らしに人気の設備
カップルに人気の設備
家族に人気の設備
夫婦に人気の設備
三世代で人気の設備
こだわり
外で子どもと遊びたい
洋室で暮らしたい
趣味
緑のある環境が好き
ガーデニングが好き
家庭菜園が好き
ハーモニーレジデンス新宿御苑THE WEST 101号室の賃貸契約情報
毎月支払う |
家賃14.6万円/月共益費12,000円/月 |
|---|---|
初期費用 |
敷金1ヶ月 (14.6万円)礼金1ヶ月 (14.6万円)保証金-敷引き償却金- |
更新料 |
- |
鍵交換費用 |
33,000円 |
室内清掃費用 |
- |
SYLAプレミアムクラブ |
24,200円 |
室内清掃費用 |
52,800円 |
駐車場料金 |
- |
損保・ |
借家賠付きの火災保険にご加入いただきます。 |
保証会社 |
加入要 保証会社利用料:エルズサポート 初回50%、月額保証料700円、月額事務手数料330円~外国籍の方:GTNを利用。初回保証料100%(最低保証料40,000円)、月額保証料1,000円 |
契約期間 |
定期借家 2年 |
入居可能日 |
2026年05月下旬 |
フリーレント期間 |
- |
取引形態 |
一般媒介 |
備考 |
- |
ハーモニーレジデンス新宿御苑THE WEST 101号室の建物情報
建物名称 |
ハーモニーレジデンス新宿御苑THE WEST |
|---|---|
最寄駅 |
|
所在地 |
東京都新宿区新宿 |
階層 |
1階部分(地上4階建) |
構造 |
RC |
築年数 |
2018年7月(築8年) |
駐車場 |
- |
小学校学区 |
天神小学校 |
中学校学区 |
新宿中学校 |
- 学区データについて
- ※学区データは必ずしも正確とは限りません。詳細に関しては最寄店舗または各自治体の教育委員会に必ずご確認ください。
無料この物件に問い合わせ
- ハーモニーレジデンス新宿御苑THE WEST 101号室

-
14.6万円
(共益費
12,000円)
- 敷
- 1ヶ月
- 礼
- 1ヶ月
- 保
- -
- 償
- -
ハーモニーレジデンス新宿御苑THE WEST 101号室の物件のお問い合わせ先・取り扱い店舗
ハウスコム 高田馬場店
- アクセス
-
山手線「高田馬場駅」徒歩5分
- 住所
- 〒169-0075 東京都新宿区高田馬場1-17-18 マルシメビル1階
- 営業時間
- 10:00~18:00
- 定休日
- 水曜日
- 営業エリア
- 新宿区 豊島区 杉並区 中野区 文京区
- 取引態様
- 賃貸仲介業












