ソシエ北大阪壱期棟 914号室(9階/1LDK)の賃貸物件(賃貸マンション)
大阪府大阪市淀川区にあるソシエ北大阪壱期棟 914号室はカウンターキッチン、浴室乾燥機、シャワー付洗面化粧台、オートロック、バルコニーなどが特徴です。最寄り駅の大阪メトロ 御堂筋線東三国駅から徒歩7分です。ソシエ北大阪壱期棟 914号室の詳細はミニミニ FC江坂店までお気軽にお問い合わせください!
情報更新日:
次回更新予定日:
※次回更新予定日について:お店側では順次空室確認を行っていますが、次回更新予定日までに空室確認が行えない場合には、この物件情報は自動的に削除されます。
ソシエ北大阪壱期棟 914号室の賃貸物件部屋概要
家賃 |
16万円
初期費用を |
|---|---|
共益費 |
-
入居可能時期 |
敷金/礼金 |
1ヶ月 / 2ヶ月 |
保証金/ |
- / - |
最寄駅 |
|
所在地 |
大阪府大阪市淀川区東三国 |
部屋番号 |
914号室 |
間取り |
1LDK |
専有面積 |
67.55㎡ |
築年数 |
1994年3月(築32年) |
階数 |
9階部分(地上15階建) |
方位・位置 |
南 / その他 |
物件種別 |
賃貸マンション |
構造 |
SRC |
駐車場 |
25,000円 |
小学校学区 |
新東三国小学校 |
中学校学区 |
東三国中学校 |
他の空き部屋 |
***号室 |
- 学区データについて
- ※学区データは必ずしも正確とは限りません。詳細に関しては最寄店舗または各自治体の教育委員会に必ずご確認ください。
ソシエ北大阪壱期棟 914号室の特徴
-
一人暮らしに人気の設備

-
カップルに人気の設備

-
家族に人気の設備

-
夫婦に人気の設備

-
三世代で人気の設備

-
セキュリティ対策重視

-
キッチン重視

-
外で子どもと遊びたい

-
雨の日でも洗濯したい

-
苦手な冬を暖かく過ごしたい

-
お風呂が大好き

-
推し活グッズを飾りたい

-
ガーデニングが好き

契約条件
この物件は、2人入居もご契約できます。 ペットの飼育もご相談ください。
セキュリティ
この物件の建物には、オートロックや防犯カメラが設置されており、来客時には居室内のテレビモニターにて訪問者の顔を確認することができます。
室内設備
システムキッチンには、ガスコンロが設置されており、キッチン設備として食洗機が備え付けられています。 お風呂とトイレは別です。お風呂には、追い焚き機能が備わっています。 トイレは、温水洗浄便座機能付きになります。 女性に嬉しい設備のシャワーの付いている洗面化粧台があります。 洗濯に便利な設備として、室内洗濯機置場があります。浴室乾燥機も設置されているので、梅雨時の生乾き臭も比較的防ぐことができます。
居室状況
エアコンと一部床下暖房が設置されています。 照明器具が備え付けられており、入居後すぐ生活が始められます。 収納スペースとして、基本的な居室にクローゼットを設置、玄関にはシューズボックスがあります。
建物設備共用部分
居室外の専有スペースとして、洗濯物を干すなどの用途として利用できるバルコニーがあります。 建物の共用スペースに、日々の出入に便利なエレベーターや、いざという時の防犯カメラが設置されています。
周辺施設
この物件の学区は、新東三国小学校区・東三国中学校区です。
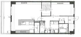
ソシエ北大阪壱期棟 914号室の間取り
間取り:1LDK
間取詳細:1LDK
専有面積:67.55㎡
方位:南
部屋位置:その他
ソシエ北大阪壱期棟 914号室の設備
キッチン
システムキッチン
カウンターキッチン
ガスコンロ
食洗機
バス・トイレ
バス・トイレ別
追い焚き
浴室乾燥機
温水洗浄便座
独立洗面台
シャワー付洗面化粧台
玄関
TVモニタ付インターホン
オートロック
収納
クローゼット
シューズボックス
バルコニー
バルコニー
ルーフバルコニー
室内設備
エアコン
床下暖房
室内洗濯機置場
照明器具付
バリアフリー
位置・立地
2階以上
南向き
インフラ
インターネット可
CATV
都市ガス
建物設備
エレベーター
防犯カメラ
入居条件
ペット可・相談
2人入居可
ライフステージ
一人暮らしに人気の設備
カップルに人気の設備
家族に人気の設備
夫婦に人気の設備
三世代で人気の設備
こだわり
セキュリティ対策重視
キッチン重視
外で子どもと遊びたい
雨の日でも洗濯したい
苦手な冬を暖かく過ごしたい
趣味
お風呂が大好き
推し活グッズを飾りたい
ガーデニングが好き
ソシエ北大阪壱期棟 914号室の賃貸契約情報
毎月支払う |
家賃16万円/月共益費- |
|---|---|
初期費用 |
敷金1ヶ月 (16万円)礼金2ヶ月 (32万円)保証金-敷引き償却金- |
更新料 |
- |
鍵交換費用 |
- |
室内清掃費用 |
- |
駐車場料金 |
25,000円 |
損保・ |
借家賠付きの火災保険にご加入いただきます。 |
保証会社 |
加入要 保証会社利用料:初回保証委託料賃料の60%年間保証委託料10,000円 |
契約期間 |
2年 |
入居可能日 |
相談 |
フリーレント期間 |
- |
取引形態 |
一般媒介 |
備考 |
- |
ソシエ北大阪壱期棟 914号室の建物情報
建物名称 |
ソシエ北大阪壱期棟 |
|---|---|
最寄駅 |
|
所在地 |
大阪府大阪市淀川区東三国 |
階層 |
9階部分(地上15階建) |
構造 |
SRC |
築年数 |
1994年3月(築32年) |
駐車場 |
25,000円 |
小学校学区 |
新東三国小学校 |
中学校学区 |
東三国中学校 |
- 学区データについて
- ※学区データは必ずしも正確とは限りません。詳細に関しては最寄店舗または各自治体の教育委員会に必ずご確認ください。
無料この物件に問い合わせ
- ソシエ北大阪壱期棟 914号室

-
16万円
(共益費
-)
- 敷
- 1ヶ月
- 礼
- 2ヶ月
- 保
- -
- 償
- -
ソシエ北大阪壱期棟 914号室の物件のお問い合わせ先・取り扱い店舗
ミニミニ FC江坂店
- アクセス
-
大阪メトロ 御堂筋線「江坂駅」徒歩1分
- 住所
- 〒564-0063 大阪府吹田市江坂町1-23-34 第二梓ビル2F
- 営業時間
- 10:00~18:00
- 定休日
- なし
- 営業エリア
- 大阪府下全域
- 取引態様
- 賃貸仲介業














