リーガル新大阪 ***号室(8階/1K)の賃貸物件(賃貸マンション)
大阪府大阪市淀川区にあるリーガル新大阪 ***号室はシステムキッチン、冷蔵庫付、オートロック、エアコン、バイク置き場などが特徴です。最寄り駅の大阪メトロ 御堂筋線東三国駅から徒歩1分です。リーガル新大阪 ***号室の詳細はミニミニ FC東三国店までお気軽にお問い合わせください!
情報更新日:
次回更新予定日:
※次回更新予定日について:お店側では順次空室確認を行っていますが、次回更新予定日までに空室確認が行えない場合には、この物件情報は自動的に削除されます。
リーガル新大阪 ***号室の賃貸物件部屋概要
家賃 |
4.7万円
初期費用を |
|---|---|
共益費 |
6,600円
入居可能時期 |
敷金/礼金 |
- / 47,000円 |
保証金/ |
- / - |
最寄駅 |
|
所在地 |
大阪府大阪市淀川区東三国 |
部屋番号 |
***号室 |
間取り |
1K(K2・洋6) |
専有面積 |
17.55㎡ |
築年数 |
1996年6月(築30年) |
階数 |
8階部分(地上8階建) |
方位・位置 |
西 / 角部屋 |
物件種別 |
賃貸マンション |
構造 |
RC |
駐車場 |
近隣 20,000円 |
小学校学区 |
北中島小学校 |
中学校学区 |
宮原中学校 |
他の空き部屋 |
***号室 ***号室 ***号室 ***号室 ***号室 ***号室 |
- 学区データについて
- ※学区データは必ずしも正確とは限りません。詳細に関しては最寄店舗または各自治体の教育委員会に必ずご確認ください。
リーガル新大阪 ***号室の特徴
-
一人暮らしに人気の設備

-
カップルに人気の設備

-
家族に人気の設備

-
夫婦に人気の設備

-
三世代で人気の設備

-
外で子どもと遊びたい

-
雨の日でも洗濯したい

-
洋室で暮らしたい

-
寝るためだけの部屋

-
ガーデニングが好き

契約条件
敷金が無料なため、初期費用が比較的安くなる傾向にあります。
セキュリティ
この物件の建物には、オートロックや防犯カメラが設置されております。
室内設備
システムキッチンには、IHコンロが設置されており、キッチン設備として冷蔵庫が備え付けられています。 トイレは、温水洗浄便座機能付きになります。 洗濯に便利な設備として、室内洗濯機置場があります。
居室状況
お部屋の床は、フローリングとなっており、エアコンが設置されています。 照明器具が備え付けられており、入居後すぐ生活が始められます。 収納スペースとして、基本的な居室にクローゼットを設置、玄関にはシューズボックスがあります。
建物設備共用部分
居室外の専有スペースとして、洗濯物を干すなどの用途として利用できるバルコニーがあります。 建物の共用スペースに、日々の出入に便利なエレベーターや、いざという時の防犯カメラが設置されています。 駐輪場、バイク置き場が利用できます。
周辺施設
この物件の学区は、北中島小学校区・宮原中学校区です。
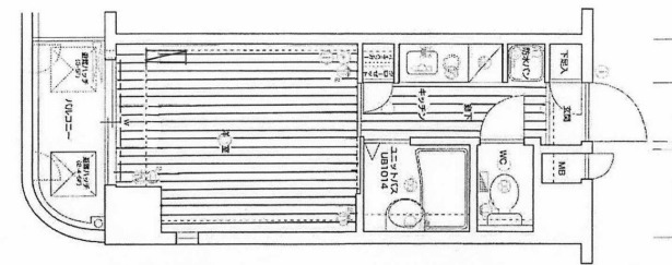
リーガル新大阪 ***号室の間取り
間取り:1K
間取詳細:1K(K2・洋6)
専有面積:17.55㎡
方位:西
部屋位置:角部屋
リーガル新大阪 ***号室の設備
キッチン
システムキッチン
IHコンロ
冷蔵庫付
バス・トイレ
バス・トイレ別
温水洗浄便座
玄関
オートロック
収納
クローゼット
シューズボックス
バルコニー
バルコニー
ルーフバルコニー
室内設備
エアコン
フローリング
室内洗濯機置場
照明器具付
位置・立地
2階以上
最上階
角部屋
インフラ
インターネット可
CATV
BS
オール電化
建物設備
エレベーター
防犯カメラ
駐輪場
バイク置き場
入居条件
オンライン相談可
オンライン内見可
即入居可
ライフステージ
一人暮らしに人気の設備
カップルに人気の設備
家族に人気の設備
夫婦に人気の設備
三世代で人気の設備
こだわり
外で子どもと遊びたい
雨の日でも洗濯したい
洋室で暮らしたい
寝るためだけの部屋
趣味
ガーデニングが好き
リーガル新大阪 ***号室の賃貸契約情報
毎月支払う |
家賃4.7万円/月共益費6,600円/月 |
|---|---|
初期費用 |
敷金-礼金47,000円保証金-敷引き償却金- |
更新料 |
- |
鍵交換費用 |
- |
室内清掃費用 |
- |
駐車場料金 |
近隣 20,000円 |
損保・ |
借家賠付きの火災保険にご加入いただきます。 |
保証会社 |
加入要 保証会社利用料:総賃料50% 更新料 12,000円 |
契約期間 |
1年 |
入居可能日 |
即入居可 |
フリーレント期間 |
- |
取引形態 |
一般媒介 |
備考 |
- |
リーガル新大阪 ***号室の建物情報
建物名称 |
リーガル新大阪 |
|---|---|
最寄駅 |
|
所在地 |
大阪府大阪市淀川区東三国 |
階層 |
8階部分(地上8階建) |
構造 |
RC |
築年数 |
1996年6月(築30年) |
駐車場 |
近隣 20,000円 |
小学校学区 |
北中島小学校 |
中学校学区 |
宮原中学校 |
- 学区データについて
- ※学区データは必ずしも正確とは限りません。詳細に関しては最寄店舗または各自治体の教育委員会に必ずご確認ください。
無料この物件に問い合わせ
- リーガル新大阪 ***号室

-
4.7万円
(共益費
6,600円)
- 敷
- -
- 礼
- 47,000円
- 保
- -
- 償
- -
リーガル新大阪 ***号室の物件のお問い合わせ先・取り扱い店舗
ミニミニ FC東三国店
- アクセス
-
大阪メトロ 御堂筋線「東三国駅」2・3番出口徒歩1分
- 住所
- 〒532-0002 大阪府大阪市淀川区東三国5-1-3 クカワビル1F
- 営業時間
- 10:00~18:00
- 定休日
- 火曜日
- 営業エリア
- 大阪市淀川区,大阪市東淀川区,大阪市西淀川区,北区,豊中市,吹田市,摂津市
- 取引態様
- 賃貸仲介業







