プレール・ドゥーク新中野Ⅱ 105号室(1階/1R)の賃貸物件(賃貸マンション)
東京都杉並区にあるプレール・ドゥーク新中野Ⅱ 105号室はシステムキッチン、浴室乾燥機、TVモニタ付インターホン、CATV、防犯カメラなどが特徴です。最寄り駅の東京メトロ 丸ノ内線新中野駅から徒歩8分です。プレール・ドゥーク新中野Ⅱ 105号室の詳細はハウスコム 高円寺店までお気軽にお問い合わせください!
情報更新日:
次回更新予定日:
※次回更新予定日について:お店側では順次空室確認を行っていますが、次回更新予定日までに空室確認が行えない場合には、この物件情報は自動的に削除されます。
プレール・ドゥーク新中野Ⅱ 105号室の賃貸物件部屋概要
家賃 |
9.2万円
初期費用を |
|---|---|
共益費 |
8,000円
入居可能時期 |
敷金/礼金 |
- / 92,000円 |
保証金/ |
- / - |
最寄駅 |
|
所在地 |
東京都杉並区和田 |
部屋番号 |
105号室 |
間取り |
1R(洋7.3・K1.8) |
専有面積 |
25.41㎡ |
築年数 |
2013年12月(築13年) |
階数 |
1階部分(地上5階建) |
方位・位置 |
西 / その他 |
物件種別 |
賃貸マンション |
構造 |
RC |
駐車場 |
28,600円 |
小学校学区 |
和田小学校 |
中学校学区 |
和田中学校 |
他の空き部屋 |
ー |
- 学区データについて
- ※学区データは必ずしも正確とは限りません。詳細に関しては最寄店舗または各自治体の教育委員会に必ずご確認ください。
プレール・ドゥーク新中野Ⅱ 105号室の特徴
契約条件
ペットの飼育もご相談ください。 敷金が無料なため、初期費用が比較的安くなる傾向にあります。
セキュリティ
この物件の建物には、オートロックや防犯カメラが設置されており、来客時には居室内のテレビモニターにて訪問者の顔を確認することができます。
室内設備
システムキッチンが備え付けられています。 トイレは、温水洗浄便座機能付きになります。 洗濯に便利な設備として、室内洗濯機置場があります。浴室乾燥機も設置されているので、梅雨時の生乾き臭も比較的防ぐことができます。
居室状況
お部屋の床は、フローリングとなっており、エアコンが設置されています。
建物設備共用部分
建物の共用スペースに、いざという時の防犯カメラが設置されています。
周辺施設
この物件の学区は、和田小学校区・和田中学校区です。
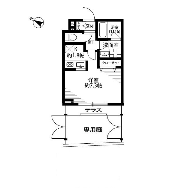
プレール・ドゥーク新中野Ⅱ 105号室の間取り
間取り:1R
間取詳細:1R(洋7.3・K1.8)
専有面積:25.41㎡
方位:西
部屋位置:その他
プレール・ドゥーク新中野Ⅱ 105号室の設備
キッチン
システムキッチン
バス・トイレ
バス・トイレ別
浴室乾燥機
温水洗浄便座
玄関
TVモニタ付インターホン
オートロック
室内設備
エアコン
フローリング
室内洗濯機置場
位置・立地
1階
インフラ
CATV
BS
CS
建物設備
防犯カメラ
入居条件
ペット可・相談
ライフステージ
一人暮らしに人気の設備
カップルに人気の設備
家族に人気の設備
夫婦に人気の設備
三世代で人気の設備
こだわり
雨の日でも洗濯したい
洋室で暮らしたい
プレール・ドゥーク新中野Ⅱ 105号室の賃貸契約情報
毎月支払う |
家賃9.2万円/月共益費8,000円/月 |
|---|---|
初期費用 |
敷金-礼金92,000円保証金-敷引き償却金- |
更新料 |
- |
鍵交換費用 |
- |
室内清掃費用 |
- |
駐車場料金 |
28,600円 |
損保・ |
借家賠付きの火災保険にご加入いただきます。 |
保証会社 |
加入要 保証会社利用料:株式会社木下グループ 初回保証料月額総費用の80%、利用手数料550円、継続保証料20,000円(2 |
契約期間 |
- |
入居可能日 |
即入居可 |
フリーレント期間 |
- |
取引形態 |
一般媒介 |
備考 |
- |
プレール・ドゥーク新中野Ⅱ 105号室の建物情報
建物名称 |
プレール・ドゥーク新中野Ⅱ |
|---|---|
最寄駅 |
|
所在地 |
東京都杉並区和田 |
階層 |
1階部分(地上5階建) |
構造 |
RC |
築年数 |
2013年12月(築13年) |
駐車場 |
28,600円 |
小学校学区 |
和田小学校 |
中学校学区 |
和田中学校 |
- 学区データについて
- ※学区データは必ずしも正確とは限りません。詳細に関しては最寄店舗または各自治体の教育委員会に必ずご確認ください。
無料この物件に問い合わせ
- プレール・ドゥーク新中野Ⅱ 105号室

-
9.2万円
(共益費
8,000円)
- 敷
- -
- 礼
- 92,000円
- 保
- -
- 償
- -
プレール・ドゥーク新中野Ⅱ 105号室の物件のお問い合わせ先・取り扱い店舗
ハウスコム 高円寺店
- アクセス
-
中央本線(JR東日本)「高円寺駅」北口徒歩1分
- 住所
- 〒166-0002 東京都杉並区高円寺北2-4-5 ロータリービル2階
- 営業時間
- 10:00~18:00
- 定休日
- 水曜日
- 営業エリア
- 【杉並区・中野区・練馬区・新宿区・世田谷区・武蔵野市】
- 取引態様
- 賃貸仲介業


























