エフパークレジデンス妙蓮寺 102号室(1階/1R)の賃貸物件(賃貸マンション)
神奈川県横浜市港北区にあるエフパークレジデンス妙蓮寺 102号室はシステムキッチン、温水洗浄便座、クローゼット、1階、BSなどが特徴です。最寄り駅の東急東横線妙蓮寺駅から徒歩6分です。エフパークレジデンス妙蓮寺 102号室の詳細はハウスコム 鶴見店までお気軽にお問い合わせください!
情報更新日:
次回更新予定日:
※次回更新予定日について:お店側では順次空室確認を行っていますが、次回更新予定日までに空室確認が行えない場合には、この物件情報は自動的に削除されます。
エフパークレジデンス妙蓮寺 102号室の賃貸物件部屋概要
家賃 |
7.7万円
初期費用を |
|---|---|
共益費 |
12,000円
入居可能時期 |
敷金/礼金 |
- / - |
保証金/ |
- / - |
最寄駅 |
|
所在地 |
神奈川県横浜市港北区仲手原 |
部屋番号 |
102号室 |
間取り |
1R(洋6.6) |
専有面積 |
20.34㎡ |
築年数 |
2013年10月(築13年) |
階数 |
1階部分(地上3階建) |
方位・位置 |
北東 / その他 |
物件種別 |
賃貸マンション |
構造 |
鉄骨造 |
駐車場 |
無 |
小学校学区 |
白幡小学校 |
中学校学区 |
神奈川中学校 |
他の空き部屋 |
102号室 |
- 学区データについて
- ※学区データは必ずしも正確とは限りません。詳細に関しては最寄店舗または各自治体の教育委員会に必ずご確認ください。
エフパークレジデンス妙蓮寺 102号室の特徴
契約条件
この物件は、2人入居もご契約できます。 ペットの飼育もご相談ください。 敷金と礼金が無料なため、初期費用が比較的安くなる傾向にあります。
セキュリティ
この物件の建物には、オートロックや宅配ボックスが設置されております。
室内設備
システムキッチンには、IHコンロが備え付けられています。 トイレは、温水洗浄便座機能付きになります。 洗濯に便利な設備として、室内洗濯機置場があります。浴室乾燥機も設置されているので、梅雨時の生乾き臭も比較的防ぐことができます。
居室状況
お部屋の床は、フローリングとなっており、エアコンが設置されています。 収納スペースとして、基本的な居室にクローゼットがあります。
建物設備共用部分
居室外の専有スペースとして、洗濯物を干すなどの用途として利用できるバルコニーがあります。 建物の共用スペースに、急な外出や不在がちのご家庭の荷物受け取りに便利な宅配ボックスが設置されています。
周辺施設
この物件の学区は、白幡小学校区・神奈川中学校区です。
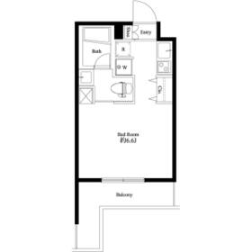
エフパークレジデンス妙蓮寺 102号室の間取り
間取り:1R
間取詳細:1R(洋6.6)
専有面積:20.34㎡
方位:北東
部屋位置:その他
エフパークレジデンス妙蓮寺 102号室の設備
キッチン
システムキッチン
IHコンロ
バス・トイレ
バス・トイレ別
浴室乾燥機
温水洗浄便座
玄関
オートロック
宅配ボックス
収納
クローゼット
バルコニー
バルコニー
ルーフバルコニー
室内設備
エアコン
フローリング
室内洗濯機置場
位置・立地
1階
インフラ
インターネット可
BS
CS
オール電化
入居条件
ペット可・相談
2人入居可
ライフステージ
一人暮らしに人気の設備
カップルに人気の設備
家族に人気の設備
夫婦に人気の設備
三世代で人気の設備
こだわり
外で子どもと遊びたい
雨の日でも洗濯したい
洋室で暮らしたい
趣味
ガーデニングが好き
エフパークレジデンス妙蓮寺 102号室の賃貸契約情報
毎月支払う |
家賃7.7万円/月共益費12,000円/月 |
|---|---|
初期費用 |
敷金-礼金-保証金-敷引き償却金- |
更新料 |
77,000円 |
鍵交換費用 |
- |
室内清掃費用 |
- |
駐車場料金 |
無 |
損保・ |
借家賠付きの火災保険にご加入いただきます。 |
保証会社 |
加入要 保証会社利用料:エムぞう君(C) 初回保証料55%~ ※最低保証料55,000円~ 年間:11,000円~ |
契約期間 |
1年 |
入居可能日 |
即入居可 |
フリーレント期間 |
- |
取引形態 |
一般媒介 |
備考 |
- |
エフパークレジデンス妙蓮寺 102号室の建物情報
建物名称 |
エフパークレジデンス妙蓮寺 |
|---|---|
最寄駅 |
|
所在地 |
神奈川県横浜市港北区仲手原 |
階層 |
1階部分(地上3階建) |
構造 |
鉄骨造 |
築年数 |
2013年10月(築13年) |
駐車場 |
無 |
小学校学区 |
白幡小学校 |
中学校学区 |
神奈川中学校 |
- 学区データについて
- ※学区データは必ずしも正確とは限りません。詳細に関しては最寄店舗または各自治体の教育委員会に必ずご確認ください。
無料この物件に問い合わせ
- エフパークレジデンス妙蓮寺 102号室

-
7.7万円
(共益費
12,000円)
- 敷
- -
- 礼
- -
- 保
- -
- 償
- -
エフパークレジデンス妙蓮寺 102号室の物件のお問い合わせ先・取り扱い店舗
ハウスコム 鶴見店
- アクセス
-
京浜東北・根岸線「鶴見駅」西口徒歩1分
- 住所
- 〒230-0062 神奈川県横浜市鶴見区豊岡町2−2 鶴見フーガ2 3階
- 営業時間
- 10:00~18:00
- 定休日
- 木曜日
- 営業エリア
- 鶴見区・神奈川区・川崎区・幸区
- 取引態様
- 賃貸仲介業
























