アーヴェル峰岡町 103号室(1階/1R)の賃貸物件(賃貸アパート)
神奈川県横浜市保土ケ谷区にあるアーヴェル峰岡町 103号室はシステムキッチン、バス・トイレ別、温水洗浄便座、エアコン、フローリングなどが特徴です。最寄り駅の相鉄本線和田町駅から徒歩10分です。アーヴェル峰岡町 103号室の詳細はハウスコム 二俣川店までお気軽にお問い合わせください!
情報更新日:
次回更新予定日:
※次回更新予定日について:お店側では順次空室確認を行っていますが、次回更新予定日までに空室確認が行えない場合には、この物件情報は自動的に削除されます。
アーヴェル峰岡町 103号室の賃貸物件部屋概要
家賃 |
4.5万円
初期費用を |
|---|---|
共益費 |
5,000円
入居可能時期 |
敷金/礼金 |
- / - |
保証金/ |
- / - |
最寄駅 |
|
所在地 |
神奈川県横浜市保土ケ谷区峰岡町 |
部屋番号 |
103号室 |
間取り |
1R |
専有面積 |
14.56㎡ |
築年数 |
2018年3月(築9年) |
階数 |
1階部分(地上2階建) |
方位・位置 |
東 / その他 |
物件種別 |
賃貸アパート |
構造 |
木造 |
駐車場 |
無 |
小学校学区 |
常盤台小学校 |
中学校学区 |
保土ケ谷中学校 |
他の空き部屋 |
205号室 |
- 学区データについて
- ※学区データは必ずしも正確とは限りません。詳細に関しては最寄店舗または各自治体の教育委員会に必ずご確認ください。
アーヴェル峰岡町 103号室の特徴
契約条件
敷金と礼金が無料なため、初期費用が比較的安くなる傾向にあります。
セキュリティ
来客時には居室内のテレビモニターにて訪問者の顔を確認することができます。
室内設備
システムキッチンには、IHコンロが備え付けられています。 お風呂とトイレは別です。お風呂には、追い焚き機能が備わっています。 トイレは、温水洗浄便座機能付きになります。 洗濯に便利な設備として、浴室乾燥機も設置されているので、梅雨時の生乾き臭も比較的防ぐことができます。
居室状況
お部屋の床は、フローリングとなっており、エアコンが設置されています。 インターネットも無料で入居後すぐ生活が始められます。
建物設備共用部分
駐輪場が利用できます。
周辺施設
この物件の学区は、常盤台小学校区・保土ケ谷中学校区です。
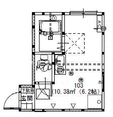
アーヴェル峰岡町 103号室の間取り
間取り:1R
間取詳細:1R
専有面積:14.56㎡
方位:東
部屋位置:その他
アーヴェル峰岡町 103号室の設備
キッチン
システムキッチン
IHコンロ
バス・トイレ
バス・トイレ別
追い焚き
浴室乾燥機
温水洗浄便座
玄関
TVモニタ付インターホン
室内設備
エアコン
フローリング
位置・立地
1階
インフラ
インターネット可
都市ガス
建物設備
駐輪場
ライフステージ
一人暮らしに人気の設備
カップルに人気の設備
家族に人気の設備
夫婦に人気の設備
三世代で人気の設備
こだわり
雨の日でも洗濯したい
洋室で暮らしたい
お得な条件
インターネット無料
アーヴェル峰岡町 103号室の賃貸契約情報
毎月支払う |
家賃4.5万円/月共益費5,000円/月 |
|---|---|
初期費用 |
敷金-礼金-保証金-敷引き償却金- |
更新料 |
45,000円 |
鍵交換費用 |
33,000円 |
室内清掃費用 |
- |
契約事務手数料 |
11,000円 |
抗菌消臭代 |
16,500円 |
駐車場料金 |
無 |
損保・ |
借家賠付きの火災保険にご加入いただきます。 |
保証会社 |
加入要 保証会社利用料:セゾンの家賃保証(RentQuick)初回保証料家賃総額の50%、年間保証料1万円、口座振替手数料なし※審査状況により内容変更となる場合有 |
契約期間 |
2年 |
入居可能日 |
2026年04月下旬 |
フリーレント期間 |
- |
取引形態 |
一般媒介 |
備考 |
- |
アーヴェル峰岡町 103号室の建物情報
建物名称 |
アーヴェル峰岡町 |
|---|---|
最寄駅 |
|
所在地 |
神奈川県横浜市保土ケ谷区峰岡町 |
階層 |
1階部分(地上2階建) |
構造 |
木造 |
築年数 |
2018年3月(築9年) |
駐車場 |
無 |
小学校学区 |
常盤台小学校 |
中学校学区 |
保土ケ谷中学校 |
- 学区データについて
- ※学区データは必ずしも正確とは限りません。詳細に関しては最寄店舗または各自治体の教育委員会に必ずご確認ください。
無料この物件に問い合わせ
- アーヴェル峰岡町 103号室

-
4.5万円
(共益費
5,000円)
- 敷
- -
- 礼
- -
- 保
- -
- 償
- -
アーヴェル峰岡町 103号室の物件のお問い合わせ先・取り扱い店舗
ハウスコム 二俣川店
- アクセス
-
相鉄本線「二俣川駅」徒歩3分
- 住所
- 〒241-0821 神奈川県横浜市旭区二俣川2丁目58−6 大洋ビル 1階
- 営業時間
- 10:00~18:00
- 定休日
- なし
- 営業エリア
- 横浜市旭区、瀬谷区、泉区、保土ヶ谷区、神奈川区
- 取引態様
- 賃貸仲介業















