レグラス武蔵新城モーターガラージュ 301号室(3階/1SK)の賃貸物件(賃貸マンション)
神奈川県川崎市高津区にあるレグラス武蔵新城モーターガラージュ 301号室はオートロック、宅配ボックス、2階以上、エレベーター、バイク置き場などが特徴です。最寄り駅の南武線武蔵新城駅から徒歩8分です。レグラス武蔵新城モーターガラージュ 301号室の詳細はハウスコム 登戸店までお気軽にお問い合わせください!
情報更新日:
次回更新予定日:
※次回更新予定日について:お店側では順次空室確認を行っていますが、次回更新予定日までに空室確認が行えない場合には、この物件情報は自動的に削除されます。
レグラス武蔵新城モーターガラージュ 301号室の賃貸物件部屋概要
家賃 |
9.5万円
初期費用を |
|---|---|
共益費 |
10,000円
入居可能時期 |
敷金/礼金 |
- / 1ヶ月 |
保証金/ |
- / - |
最寄駅 |
|
所在地 |
神奈川県川崎市高津区末長 |
部屋番号 |
301号室 |
間取り |
1SK |
専有面積 |
29.60㎡ |
築年数 |
2008年2月(築19年) |
階数 |
3階部分(地上7階建) |
方位・位置 |
北西 / 角部屋 |
物件種別 |
賃貸マンション |
構造 |
RC |
駐車場 |
- |
小学校学区 |
末長小学校 |
中学校学区 |
東高津中学校 |
他の空き部屋 |
ー |
- 学区データについて
- ※学区データは必ずしも正確とは限りません。詳細に関しては最寄店舗または各自治体の教育委員会に必ずご確認ください。
レグラス武蔵新城モーターガラージュ 301号室の特徴
-
一人暮らしに人気の設備

-
カップルに人気の設備

-
家族に人気の設備

-
夫婦に人気の設備

-
三世代で人気の設備

-
タイパ重視

-
外で子どもと遊びたい

-
雨の日でも洗濯したい

-
洋室で暮らしたい

-
オークション・通販が好き

-
ガーデニングが好き

契約条件
敷金が無料なため、初期費用が比較的安くなる傾向にあります。
セキュリティ
この物件の建物には、オートロックや宅配ボックスが設置されており、来客時には居室内のテレビモニターにて訪問者の顔を確認することができます。
室内設備
システムキッチンには、2つ以上のガスコンロが備え付けられています。 トイレは、温水洗浄便座機能付きになります。 洗濯に便利な設備として、浴室乾燥機も設置されているので、梅雨時の生乾き臭も比較的防ぐことができます。
居室状況
お部屋の床は、フローリングとなっており、エアコンが設置されています。 インターネットも無料で入居後すぐ生活が始められます。 収納スペースとして、玄関にはシューズボックスがあります。
建物設備共用部分
居室外の専有スペースとして、洗濯物を干すなどの用途として利用できるバルコニーがあります。 建物の共用スペースに、日々の出入に便利なエレベーターや、急な外出や不在がちのご家庭の荷物受け取りに便利な宅配ボックスや、居室内を常に清潔に保てる24時間利用可能なゴミ捨て置き場が設置されています。 駐輪場、バイク置き場が利用できます。
周辺施設
この物件の学区は、末長小学校区・東高津中学校区です。
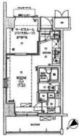
レグラス武蔵新城モーターガラージュ 301号室の間取り
間取り:1SK
間取詳細:1SK
専有面積:29.60㎡
方位:北西
部屋位置:角部屋
レグラス武蔵新城モーターガラージュ 301号室の設備
キッチン
システムキッチン
ガスコンロ
ガスコンロ二口以上
バス・トイレ
バス・トイレ別
浴室乾燥機
温水洗浄便座
玄関
TVモニタ付インターホン
オートロック
宅配ボックス
収納
シューズボックス
バルコニー
バルコニー
ルーフバルコニー
室内設備
エアコン
フローリング
位置・立地
2階以上
角部屋
インフラ
BS
CS
都市ガス
建物設備
エレベーター
24時間ゴミ出しOK
駐輪場
バイク置き場
ライフステージ
一人暮らしに人気の設備
カップルに人気の設備
家族に人気の設備
夫婦に人気の設備
三世代で人気の設備
こだわり
タイパ重視
外で子どもと遊びたい
雨の日でも洗濯したい
洋室で暮らしたい
趣味
オークション・通販が好き
ガーデニングが好き
お得な条件
インターネット無料
レグラス武蔵新城モーターガラージュ 301号室の賃貸契約情報
毎月支払う |
家賃9.5万円/月共益費10,000円/月 |
|---|---|
初期費用 |
敷金-礼金1ヶ月 (9.5万円)保証金-敷引き償却金- |
更新料 |
142,500円 |
鍵交換費用 |
38,500円 |
室内清掃費用 |
- |
契約事務手数料 |
5,500円 |
室内消毒代 |
22,000円 |
駐車場料金 |
- |
損保・ |
借家賠付きの火災保険にご加入いただきます。 |
保証会社 |
加入要 保証会社利用料:(初回)総賃料の80%~ (月額)総賃料の1%~(決済サービス料)500円(税抜)/月 |
契約期間 |
2年 |
入居可能日 |
相談 |
フリーレント期間 |
- |
取引形態 |
一般媒介 |
備考 |
- |
レグラス武蔵新城モーターガラージュ 301号室の建物情報
建物名称 |
レグラス武蔵新城モーターガラージュ |
|---|---|
最寄駅 |
|
所在地 |
神奈川県川崎市高津区末長 |
階層 |
3階部分(地上7階建) |
構造 |
RC |
築年数 |
2008年2月(築19年) |
駐車場 |
- |
小学校学区 |
末長小学校 |
中学校学区 |
東高津中学校 |
- 学区データについて
- ※学区データは必ずしも正確とは限りません。詳細に関しては最寄店舗または各自治体の教育委員会に必ずご確認ください。
無料この物件に問い合わせ
- レグラス武蔵新城モーターガラージュ 301号室

-
9.5万円
(共益費
10,000円)
- 敷
- -
- 礼
- 1ヶ月
- 保
- -
- 償
- -
レグラス武蔵新城モーターガラージュ 301号室の物件のお問い合わせ先・取り扱い店舗
ハウスコム 登戸店
- アクセス
-
小田急小田原線「登戸駅」徒歩2分
南武線「登戸駅」徒歩1分
- 住所
- 〒214-0014 神奈川県川崎市多摩区登戸3414-2 DESIRE登戸3階
- 営業時間
- 10:00~18:00
- 定休日
- 水曜日
- 営業エリア
- 神奈川県川崎市(多摩区・麻生区・高津区)、東京都狛江市・稲城市・調布市
- 取引態様
- 賃貸仲介業











