ベルシード川崎大師 904号室(9階/1K)の賃貸物件(賃貸マンション)
神奈川県川崎市川崎区にあるベルシード川崎大師 904号室はガスコンロ二口以上、宅配ボックス、最上階、防犯カメラ、オンライン内見可などが特徴です。最寄り駅の京急大師線鈴木町駅から徒歩6分です。ベルシード川崎大師 904号室の詳細はハウスコム 川崎駅前店までお気軽にお問い合わせください!
情報更新日:
次回更新予定日:
※次回更新予定日について:お店側では順次空室確認を行っていますが、次回更新予定日までに空室確認が行えない場合には、この物件情報は自動的に削除されます。
ベルシード川崎大師 904号室の賃貸物件部屋概要
家賃 |
7.9万円
初期費用を |
|---|---|
共益費 |
10,500円
入居可能時期 |
敷金/礼金 |
- / 1ヶ月 |
保証金/ |
1ヶ月 / - |
最寄駅 |
|
所在地 |
神奈川県川崎市川崎区伊勢町 |
部屋番号 |
904号室 |
間取り |
1K(洋6.1) |
専有面積 |
20.83㎡ |
築年数 |
2020年9月(築6年) |
階数 |
9階部分(地上9階建) |
方位・位置 |
北 / 角部屋 |
物件種別 |
賃貸マンション |
構造 |
RC |
駐車場 |
- |
小学校学区 |
旭町小学校 |
中学校学区 |
富士見中学校 |
他の空き部屋 |
ー |
- 学区データについて
- ※学区データは必ずしも正確とは限りません。詳細に関しては最寄店舗または各自治体の教育委員会に必ずご確認ください。
ベルシード川崎大師 904号室の特徴
-
一人暮らしに人気の設備

-
カップルに人気の設備

-
家族に人気の設備

-
夫婦に人気の設備

-
三世代で人気の設備

-
セキュリティ対策重視

-
外で子どもと遊びたい

-
身だしなみに気をつかいたい

-
雨の日でも洗濯したい

-
洋室で暮らしたい

-
ガーデニングが好き

契約条件
ご契約時に保証人は不要です。 敷金が無料なため、初期費用が比較的安くなる傾向にあります。
セキュリティ
この物件の建物には、オートロックや防犯カメラや宅配ボックスが設置されており、来客時には居室内のテレビモニターにて訪問者の顔を確認することができます。
室内設備
システムキッチンには、2つ以上のガスコンロが備え付けられています。 トイレは、温水洗浄便座機能付きになります。 女性に嬉しい設備の独立した洗面化粧台があります。 洗濯に便利な設備として、室内洗濯機置場があります。浴室乾燥機も設置されているので、梅雨時の生乾き臭も比較的防ぐことができます。
居室状況
お部屋の床は、フローリングとなっており、エアコンが設置されています。 収納スペースとして、基本的な居室にクローゼットを設置、玄関にはシューズボックスがあります。
建物設備共用部分
居室外の専有スペースとして、洗濯物を干すなどの用途として利用できるバルコニーがあります。 建物の共用スペースに、日々の出入に便利なエレベーターや、いざという時の防犯カメラや、急な外出や不在がちのご家庭の荷物受け取りに便利な宅配ボックスが設置されています。 駐輪場、バイク置き場が利用できます。
周辺施設
この物件の学区は、旭町小学校区・富士見中学校区です。
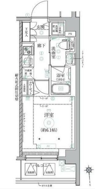
ベルシード川崎大師 904号室の間取り
間取り:1K
間取詳細:1K(洋6.1)
専有面積:20.83㎡
方位:北
部屋位置:角部屋
ベルシード川崎大師 904号室の設備
キッチン
システムキッチン
ガスコンロ
ガスコンロ二口以上
バス・トイレ
バス・トイレ別
浴室乾燥機
温水洗浄便座
独立洗面台
玄関
TVモニタ付インターホン
オートロック
宅配ボックス
収納
クローゼット
シューズボックス
バルコニー
バルコニー
ルーフバルコニー
室内設備
エアコン
フローリング
室内洗濯機置場
位置・立地
2階以上
最上階
角部屋
インフラ
インターネット可
建物設備
エレベーター
防犯カメラ
駐輪場
バイク置き場
分譲賃貸
入居条件
オンライン相談可
オンライン内見可
保証人不要
ライフステージ
一人暮らしに人気の設備
カップルに人気の設備
家族に人気の設備
夫婦に人気の設備
三世代で人気の設備
こだわり
セキュリティ対策重視
外で子どもと遊びたい
身だしなみに気をつかいたい
雨の日でも洗濯したい
洋室で暮らしたい
趣味
ガーデニングが好き
ベルシード川崎大師 904号室の賃貸契約情報
毎月支払う |
家賃7.9万円/月共益費10,500円/月 |
|---|---|
初期費用 |
敷金-礼金1ヶ月 (7.9万円)保証金1ヶ月敷引き償却金- |
更新料 |
79,000円 |
鍵交換費用 |
30,800円 |
室内清掃費用 |
- |
駐車場料金 |
- |
損保・ |
借家賠付きの火災保険にご加入いただきます。 |
保証会社 |
加入要 保証会社利用料:50 |
契約期間 |
2年 |
入居可能日 |
2026年05月下旬 |
フリーレント期間 |
- |
取引形態 |
一般媒介 |
備考 |
バイク置き場:有料 駐輪場:有料 |
ベルシード川崎大師 904号室の建物情報
建物名称 |
ベルシード川崎大師 |
|---|---|
最寄駅 |
|
所在地 |
神奈川県川崎市川崎区伊勢町 |
階層 |
9階部分(地上9階建) |
構造 |
RC |
築年数 |
2020年9月(築6年) |
駐車場 |
- |
小学校学区 |
旭町小学校 |
中学校学区 |
富士見中学校 |
- 学区データについて
- ※学区データは必ずしも正確とは限りません。詳細に関しては最寄店舗または各自治体の教育委員会に必ずご確認ください。
無料この物件に問い合わせ
- ベルシード川崎大師 904号室

-
7.9万円
(共益費
10,500円)
- 敷
- -
- 礼
- 1ヶ月
- 保
- 1ヶ月
- 償
- -
ベルシード川崎大師 904号室の物件のお問い合わせ先・取り扱い店舗
ハウスコム 川崎駅前店
- アクセス
-
東海道本線(JR東日本)「川崎駅」北口東徒歩2分
京浜東北・根岸線「川崎駅」北口東徒歩2分
京急本線「京急川崎駅」徒歩2分
- 住所
- 〒210-0007 神奈川県川崎市川崎区駅前本町11−1 パシフィックマークス川崎 5F
- 営業時間
- 10:00~18:00
- 定休日
- なし
- 営業エリア
- 川崎市川崎区,川崎市幸区,川崎市中原区,横浜市神奈川区,横浜市鶴見区,東京都大田区
- 取引態様
- 賃貸仲介業
















