VINTAGE COURT 202号室(2階/2DK)の賃貸物件(賃貸マンション)
愛知県津島市にあるVINTAGE COURT 202号室はバス・トイレ別、和室あり、2階以上、角部屋、オンライン相談可などが特徴です。最寄り駅の名鉄尾西線日比野駅から徒歩12分です。VINTAGE COURT 202号室の詳細はハウスコム 高畑店までお気軽にお問い合わせください!
情報更新日:
次回更新予定日:
※次回更新予定日について:お店側では順次空室確認を行っていますが、次回更新予定日までに空室確認が行えない場合には、この物件情報は自動的に削除されます。
VINTAGE COURT 202号室の賃貸物件部屋概要
家賃 |
3.8万円
初期費用を |
|---|---|
共益費 |
4,000円
入居可能時期 |
敷金/礼金 |
- / 1ヶ月 |
保証金/ |
- / - |
最寄駅 |
|
所在地 |
愛知県津島市南本町 |
部屋番号 |
202号室 |
間取り |
2DK(DK10.2・洋7.3・和6) |
専有面積 |
51.84㎡ |
築年数 |
1990年9月(築36年) |
階数 |
2階部分(地上3階建) |
方位・位置 |
南 / 角部屋 |
物件種別 |
賃貸マンション |
構造 |
鉄骨造 |
駐車場 |
5,000円 |
小学校学区 |
南小学校 |
中学校学区 |
天王中学校 |
他の空き部屋 |
ー |
- 学区データについて
- ※学区データは必ずしも正確とは限りません。詳細に関しては最寄店舗または各自治体の教育委員会に必ずご確認ください。
VINTAGE COURT 202号室の特徴
契約条件
敷金が無料なため、初期費用が比較的安くなる傾向にあります。
居室状況
居室には、和室の居室もあり、子育てやリラックススペースとしての利用もできます。 お部屋の床は、フローリングとなっています。
周辺施設
この物件の学区は、南小学校区・天王中学校区です。
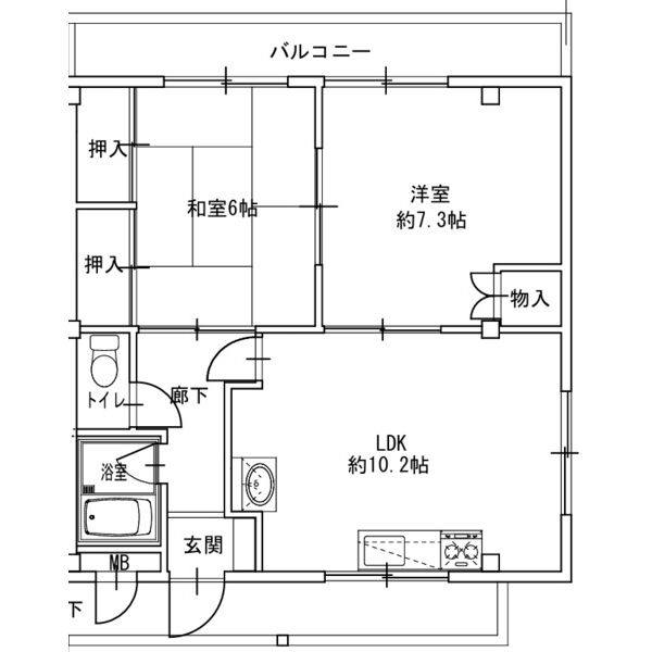
VINTAGE COURT 202号室の間取り
間取り:2DK
間取詳細:2DK(DK10.2・洋7.3・和6)
専有面積:51.84㎡
方位:南
部屋位置:角部屋
VINTAGE COURT 202号室の設備
バス・トイレ
バス・トイレ別
室内設備
フローリング
和室あり
位置・立地
2階以上
角部屋
南向き
入居条件
オンライン相談可
ライフステージ
一人暮らしに人気の設備
カップルに人気の設備
家族に人気の設備
夫婦に人気の設備
三世代で人気の設備
こだわり
洋室で暮らしたい
VINTAGE COURT 202号室の賃貸契約情報
毎月支払う |
家賃3.8万円/月共益費4,000円/月 |
|---|---|
初期費用 |
敷金-礼金1ヶ月 (3.8万円)保証金-敷引き償却金- |
更新料 |
- |
鍵交換費用 |
- |
室内清掃費用 |
- |
駐車場料金 |
5,000円 |
損保・ |
借家賠付きの火災保険にご加入いただきます。 |
保証会社 |
加入要 保証会社利用料:初回:月額総賃料の50%・毎月:月額総賃料の1%・更新料:無 法人契約で保証会社利用不可の場合:礼金1ヶ月分 |
契約期間 |
- |
入居可能日 |
相談 |
フリーレント期間 |
- |
取引形態 |
一般媒介 |
備考 |
カギ交換費用 退去時 44000円 ハウスクリーニング費用 退去時 55000円 短期解約違約金:1年未満2ヶ月、2年未満1ヶ月分 |
VINTAGE COURT 202号室の建物情報
建物名称 |
VINTAGE COURT |
|---|---|
最寄駅 |
|
所在地 |
愛知県津島市南本町 |
階層 |
2階部分(地上3階建) |
構造 |
鉄骨造 |
築年数 |
1990年9月(築36年) |
駐車場 |
5,000円 |
小学校学区 |
南小学校 |
中学校学区 |
天王中学校 |
1/6 外観
- 学区データについて
- ※学区データは必ずしも正確とは限りません。詳細に関しては最寄店舗または各自治体の教育委員会に必ずご確認ください。
無料この物件に問い合わせ
- VINTAGE COURT 202号室

-
3.8万円
(共益費
4,000円)
- 敷
- -
- 礼
- 1ヶ月
- 保
- -
- 償
- -
VINTAGE COURT 202号室の物件のお問い合わせ先・取り扱い店舗
ハウスコム 高畑店
駅徒歩3分以内
駅徒歩5分以内
水曜日営業
- アクセス
-
名古屋市営地下鉄 東山線「高畑駅」4番出口徒歩2分
- 住所
- 〒454-0911 愛知県名古屋市中川区高畑2丁目110 サンライズ第2ビル 1階
- 営業時間
- 10:00~18:00
- 定休日
- なし
- 営業エリア
- 名古屋市中川区,名古屋市中村区,名古屋市港区,海部郡七宝町,海部郡大治町,海部郡弥富町,海部郡甚目寺町,海部郡蟹江町
- 取引態様
- 賃貸仲介業
お問い合わせNo. HC2-5379671-202-0011























