レオネクストセレンディップ川島 ***号室(1階/1K)の賃貸物件(賃貸アパート)
群馬県館林市にあるレオネクストセレンディップ川島 ***号室はバス・トイレ別、温水洗浄便座、室内洗濯機置場、1階、インターネット可などが特徴です。最寄り駅の東武スカイツリーライン・伊勢崎線・大師線館林駅から徒歩15分です。レオネクストセレンディップ川島 ***号室の詳細はハウスコム 久喜店までお気軽にお問い合わせください!
情報更新日:
次回更新予定日:
※次回更新予定日について:お店側では順次空室確認を行っていますが、次回更新予定日までに空室確認が行えない場合には、この物件情報は自動的に削除されます。
レオネクストセレンディップ川島 ***号室の賃貸物件部屋概要
家賃 |
5万円
初期費用を |
|---|---|
共益費 |
4,000円
入居可能時期 |
敷金/礼金 |
- / 50,000円 |
保証金/ |
- / - |
最寄駅 |
|
所在地 |
群馬県館林市新宿 |
部屋番号 |
***号室 |
間取り |
1K |
専有面積 |
23.61㎡ |
築年数 |
2010年1月(築17年) |
階数 |
1階部分(地上2階建) |
方位・位置 |
ー / その他 |
物件種別 |
賃貸アパート |
構造 |
木造 |
駐車場 |
4,400円 |
小学校学区 |
第六小学校 |
中学校学区 |
第三中学校 |
他の空き部屋 |
***号室 107号室 108号室 203号室 |
- 学区データについて
- ※学区データは必ずしも正確とは限りません。詳細に関しては最寄店舗または各自治体の教育委員会に必ずご確認ください。
レオネクストセレンディップ川島 ***号室の特徴
契約条件
敷金が無料なため、初期費用が比較的安くなる傾向にあります。
セキュリティ
来客時には居室内のテレビモニターにて訪問者の顔を確認することができます。
室内設備
電気コンロが備え付けられています。 トイレは、温水洗浄便座機能付きになります。 洗濯に便利な設備として、室内洗濯機置場があります。
居室状況
エアコンが設置されています。
周辺施設
この物件の学区は、第六小学校区・第三中学校区です。
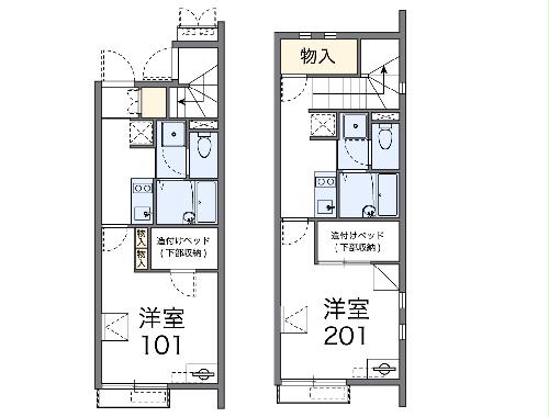
レオネクストセレンディップ川島 ***号室の間取り
間取り:1K
間取詳細:1K
専有面積:23.61㎡
方位:ー
部屋位置:その他
レオネクストセレンディップ川島 ***号室の設備
キッチン
電気コンロ
バス・トイレ
バス・トイレ別
温水洗浄便座
玄関
TVモニタ付インターホン
室内設備
エアコン
室内洗濯機置場
位置・立地
1階
インフラ
インターネット可
ライフステージ
一人暮らしに人気の設備
カップルに人気の設備
家族に人気の設備
夫婦に人気の設備
三世代で人気の設備
こだわり
雨の日でも洗濯したい
寝るためだけの部屋
レオネクストセレンディップ川島 ***号室の賃貸契約情報
毎月支払う |
家賃5万円/月共益費4,000円/月 |
|---|---|
初期費用 |
敷金-礼金50,000円保証金-敷引き償却金- |
更新料 |
- |
鍵交換費用 |
16,500円 |
室内清掃費用 |
41,800円 |
抗菌施工(任意) |
23,760円 |
駐車場料金 |
4,400円 |
損保・ |
借家賠付きの火災保険にご加入いただきます。 |
保証会社 |
加入要 保証会社利用料:保証料:58790円(契約内容により100~120%で変動有)※記載金額は120%の場合 |
契約期間 |
- |
入居可能日 |
相談 |
フリーレント期間 |
- |
取引形態 |
一般媒介 |
備考 |
- |
レオネクストセレンディップ川島 ***号室の建物情報
建物名称 |
レオネクストセレンディップ川島 |
|---|---|
最寄駅 |
|
所在地 |
群馬県館林市新宿 |
階層 |
1階部分(地上2階建) |
構造 |
木造 |
築年数 |
2010年1月(築17年) |
駐車場 |
4,400円 |
小学校学区 |
第六小学校 |
中学校学区 |
第三中学校 |
1/10 外観
- 学区データについて
- ※学区データは必ずしも正確とは限りません。詳細に関しては最寄店舗または各自治体の教育委員会に必ずご確認ください。
無料この物件に問い合わせ
- レオネクストセレンディップ川島 ***号室

-
5万円
(共益費
4,000円)
- 敷
- -
- 礼
- 50,000円
- 保
- -
- 償
- -
レオネクストセレンディップ川島 ***号室の物件のお問い合わせ先・取り扱い店舗
ハウスコム 久喜店
駅徒歩3分以内
駅徒歩5分以内
水曜日営業
- アクセス
-
東北本線「久喜駅」徒歩2分
- 住所
- 〒346-0003 埼玉県久喜市久喜中央2丁目2−6 YAORIビル 1階
- 営業時間
- 10:00~18:00
- 定休日
- なし
- 営業エリア
- 久喜市内はもちろんのこと、埼玉県東部全域・茨城県南西部・群馬県南部など、お任せ下さい!
- 取引態様
- 賃貸仲介業
お問い合わせNo. HC5-2128272-101-0168




























