プレサンスTHE新栄 602号室(6階/1LDK)の賃貸物件(賃貸マンション)
愛知県名古屋市中区にあるプレサンスTHE新栄 602号室はオートロック、バルコニー、ルーフバルコニー、エアコン、2階以上などが特徴です。最寄り駅の名古屋市営地下鉄 東山線新栄町駅から徒歩3分です。プレサンスTHE新栄 602号室の詳細はハウスコム 中村公園店までお気軽にお問い合わせください!
情報更新日:
次回更新予定日:
※次回更新予定日について:お店側では順次空室確認を行っていますが、次回更新予定日までに空室確認が行えない場合には、この物件情報は自動的に削除されます。
プレサンスTHE新栄 602号室の賃貸物件部屋概要
家賃 |
9.25万円
初期費用を |
|---|---|
共益費 |
8,500円
入居可能時期 |
敷金/礼金 |
- / 101,000円 |
保証金/ |
- / - |
最寄駅 |
|
所在地 |
愛知県名古屋市中区新栄 |
部屋番号 |
602号室 |
間取り |
1LDK(LDK8.8・洋3.8) |
専有面積 |
34.00㎡ |
築年数 |
2022年2月(築5年) |
階数 |
6階部分(地上13階建) |
方位・位置 |
南 / その他 |
物件種別 |
賃貸マンション |
構造 |
RC |
駐車場 |
無 |
小学校学区 |
新栄小学校 |
中学校学区 |
白山中学校 |
他の空き部屋 |
1010号室 1202号室 308号室 608号室 703号室 803号室 |
- 学区データについて
- ※学区データは必ずしも正確とは限りません。詳細に関しては最寄店舗または各自治体の教育委員会に必ずご確認ください。
プレサンスTHE新栄 602号室の特徴
-
一人暮らしに人気の設備

-
カップルに人気の設備

-
家族に人気の設備

-
夫婦に人気の設備

-
三世代で人気の設備

-
セキュリティ対策重視

-
外で子どもと遊びたい

-
雨の日でも洗濯したい

-
オークション・通販が好き

-
ガーデニングが好き

契約条件
敷金が無料なため、初期費用が比較的安くなる傾向にあります。
セキュリティ
この物件の建物には、オートロックや防犯カメラや宅配ボックスが設置されており、来客時には居室内のテレビモニターにて訪問者の顔を確認することができます。
室内設備
お風呂とトイレは一緒のユニットバスです。お風呂には、追い焚き機能が備わっています。 トイレは、温水洗浄便座機能付きになります。 女性に嬉しい設備のシャワーの付いている洗面化粧台があります。 洗濯に便利な設備として、浴室乾燥機も設置されているので、梅雨時の生乾き臭も比較的防ぐことができます。
居室状況
エアコンが設置されています。 照明器具が備え付けられており、インターネットも無料で入居後すぐ生活が始められます。 収納スペースとして、玄関にはシューズボックスがあります。
建物設備共用部分
居室外の専有スペースとして、洗濯物を干すなどの用途として利用できるバルコニーがあります。 建物の共用スペースに、日々の出入に便利なエレベーターや、いざという時の防犯カメラや、急な外出や不在がちのご家庭の荷物受け取りに便利な宅配ボックスが設置されています。
周辺施設
この物件の学区は、新栄小学校区・白山中学校区です。
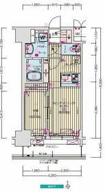
プレサンスTHE新栄 602号室の間取り
間取り:1LDK
間取詳細:1LDK(LDK8.8・洋3.8)
専有面積:34.00㎡
方位:南
部屋位置:その他
プレサンスTHE新栄 602号室の設備
バス・トイレ
追い焚き
浴室乾燥機
温水洗浄便座
独立洗面台
シャワー付洗面化粧台
玄関
TVモニタ付インターホン
オートロック
宅配ボックス
収納
シューズボックス
バルコニー
バルコニー
ルーフバルコニー
室内設備
エアコン
照明器具付
位置・立地
2階以上
南向き
インフラ
BS
建物設備
エレベーター
防犯カメラ
ライフステージ
一人暮らしに人気の設備
カップルに人気の設備
家族に人気の設備
夫婦に人気の設備
三世代で人気の設備
こだわり
セキュリティ対策重視
外で子どもと遊びたい
雨の日でも洗濯したい
趣味
オークション・通販が好き
ガーデニングが好き
お得な条件
インターネット無料
プレサンスTHE新栄 602号室の賃貸契約情報
毎月支払う |
家賃9.25万円/月共益費8,500円/月 |
|---|---|
初期費用 |
敷金-礼金101,000円保証金-敷引き償却金- |
更新料 |
11,000円 |
鍵交換費用 |
- |
室内清掃費用 |
- |
カギ交換代 |
29,700円 |
駐車場料金 |
無 |
損保・ |
借家賠付きの火災保険にご加入いただきます。 |
保証会社 |
加入要 保証会社利用料:株式会社プレサンスギャランティ ギャランティ 初回50% 月1.5%・セーフティー 初回50% 年10,000円 |
契約期間 |
1年 |
入居可能日 |
相談 |
フリーレント期間 |
- |
取引形態 |
一般媒介 |
備考 |
- |
プレサンスTHE新栄 602号室の建物情報
建物名称 |
プレサンスTHE新栄 |
|---|---|
最寄駅 |
|
所在地 |
愛知県名古屋市中区新栄 |
階層 |
6階部分(地上13階建) |
構造 |
RC |
築年数 |
2022年2月(築5年) |
駐車場 |
無 |
小学校学区 |
新栄小学校 |
中学校学区 |
白山中学校 |
- 学区データについて
- ※学区データは必ずしも正確とは限りません。詳細に関しては最寄店舗または各自治体の教育委員会に必ずご確認ください。
無料この物件に問い合わせ
- プレサンスTHE新栄 602号室

-
9.25万円
(共益費
8,500円)
- 敷
- -
- 礼
- 101,000円
- 保
- -
- 償
- -
プレサンスTHE新栄 602号室の物件のお問い合わせ先・取り扱い店舗
ハウスコム 中村公園店
- アクセス
-
名古屋市営地下鉄 東山線「中村公園駅」徒歩1分
- 住所
- 〒453-0811 愛知県名古屋市中村区太閤通9丁目9 横田ビル 1階
- 営業時間
- 10:00~18:00
- 定休日
- なし
- 営業エリア
- 中村区 中川区 西区 中区 港区 海部郡 あま市 清須市
- 取引態様
- 賃貸仲介業


