シーブリーズ金沢 1-406号室(4階/3DK)の賃貸物件(賃貸マンション)
神奈川県横浜市金沢区にあるシーブリーズ金沢 1-406号室は追い焚き、ルーフバルコニー、フローリング、インターネット可、2人入居可などが特徴です。最寄り駅の金沢シーサイドライン海の公園柴口駅から徒歩7分です。シーブリーズ金沢 1-406号室の詳細はハウスコム 上大岡店までお気軽にお問い合わせください!
情報更新日:
次回更新予定日:
※次回更新予定日について:お店側では順次空室確認を行っていますが、次回更新予定日までに空室確認が行えない場合には、この物件情報は自動的に削除されます。
シーブリーズ金沢 1-406号室の賃貸物件部屋概要
家賃 |
11.3万円
初期費用を |
|---|---|
共益費 |
4,000円
入居可能時期 |
敷金/礼金 |
2ヶ月 / - |
保証金/ |
- / - |
最寄駅 |
|
所在地 |
神奈川県横浜市金沢区柴町 |
部屋番号 |
1-406号室 |
間取り |
3DK(和6・洋6・洋4.5・DK12) |
専有面積 |
62.29㎡ |
築年数 |
1989年11月(築37年) |
階数 |
4階部分(地上5階建) |
方位・位置 |
南 / その他 |
物件種別 |
賃貸マンション |
構造 |
RC |
駐車場 |
8,800円 |
小学校学区 |
並木第四小学校 |
中学校学区 |
並木中学校 |
他の空き部屋 |
1-202号室 1-202号室 1-205号室 1-406号室 4-307号室 4-307号室 |
- 学区データについて
- ※学区データは必ずしも正確とは限りません。詳細に関しては最寄店舗または各自治体の教育委員会に必ずご確認ください。
シーブリーズ金沢 1-406号室の特徴
契約条件
この物件は、2人入居もご契約できます。 礼金が無料なため、初期費用が比較的安くなる傾向にあります。
室内設備
お風呂とトイレは別です。お風呂には、追い焚き機能が備わっています。 女性に嬉しい設備の独立した洗面化粧台があります。
居室状況
居室には、和室の居室もあり、子育てやリラックススペースとしての利用もできます。 お部屋の床は、フローリングとなっています。収納スペースとして、玄関にはシューズボックスがあります。
建物設備共用部分
居室外の専有スペースとして、洗濯物を干すなどの用途として利用できるバルコニーがあります。 駐輪場、バイク置き場が利用できます。
周辺施設
この物件の学区は、並木第四小学校区・並木中学校区です。
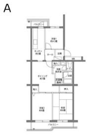
シーブリーズ金沢 1-406号室の間取り
間取り:3DK
間取詳細:3DK(和6・洋6・洋4.5・DK12)
専有面積:62.29㎡
方位:南
部屋位置:その他
シーブリーズ金沢 1-406号室の設備
バス・トイレ
バス・トイレ別
追い焚き
独立洗面台
収納
シューズボックス
バルコニー
バルコニー
ルーフバルコニー
室内設備
フローリング
和室あり
位置・立地
2階以上
南向き
インフラ
インターネット可
CATV
都市ガス
建物設備
駐輪場
バイク置き場
入居条件
2人入居可
ライフステージ
一人暮らしに人気の設備
カップルに人気の設備
家族に人気の設備
夫婦に人気の設備
三世代で人気の設備
こだわり
外で子どもと遊びたい
洋室で暮らしたい
趣味
ガーデニングが好き
シーブリーズ金沢 1-406号室の賃貸契約情報
毎月支払う |
家賃11.3万円/月共益費4,000円/月 |
|---|---|
初期費用 |
敷金2ヶ月 (22.6万円)礼金-保証金-敷引き償却金- |
更新料 |
- |
鍵交換費用 |
16,500円 |
室内清掃費用 |
- |
駐車場料金 |
8,800円 |
損保・ |
借家賠付きの火災保険にご加入いただきます。 |
保証会社 |
加入要 保証会社利用料:エルズサポート株式会社(1)分割プラン、初回4%、毎月2%(2)2年毎プラン、初回45%、2年毎2.5万円(3)一括プラン70%、お選びいただけます。(1)(2)(3)毎月決済手数料440円 |
契約期間 |
2年 |
入居可能日 |
相談 |
フリーレント期間 |
- |
取引形態 |
一般媒介 |
備考 |
- |
シーブリーズ金沢 1-406号室の建物情報
建物名称 |
シーブリーズ金沢 |
|---|---|
最寄駅 |
|
所在地 |
神奈川県横浜市金沢区柴町 |
階層 |
4階部分(地上5階建) |
構造 |
RC |
築年数 |
1989年11月(築37年) |
駐車場 |
8,800円 |
小学校学区 |
並木第四小学校 |
中学校学区 |
並木中学校 |
- 学区データについて
- ※学区データは必ずしも正確とは限りません。詳細に関しては最寄店舗または各自治体の教育委員会に必ずご確認ください。
無料この物件に問い合わせ
- シーブリーズ金沢 1-406号室

-
11.3万円
(共益費
4,000円)
- 敷
- 2ヶ月
- 礼
- -
- 保
- -
- 償
- -
シーブリーズ金沢 1-406号室の物件のお問い合わせ先・取り扱い店舗
ハウスコム 上大岡店
- アクセス
-
京急本線「上大岡駅」徒歩2分
- 住所
- 〒233-0002 神奈川県横浜市港南区上大岡西1丁目11−7 第10オーヴァルビル 1階
- 営業時間
- 10:00~18:00
- 定休日
- なし
- 営業エリア
- 横浜市南区,横浜市港南区,横浜市磯子区
- 取引態様
- 賃貸仲介業





















