ハイグランド中井坂Ⅱ ***号室(1階/3LDK)の賃貸物件(賃貸一戸建て)
神奈川県横浜市都筑区にあるハイグランド中井坂Ⅱ ***号室は独立洗面台、ルーフバルコニー、フローリング、1階、CATVなどが特徴です。最寄り駅の横浜市営地下鉄 グリーンライン北山田駅から徒歩10分です。ハイグランド中井坂Ⅱ ***号室の詳細はハウスコム 鷺沼店までお気軽にお問い合わせください!
情報更新日:
次回更新予定日:
※次回更新予定日について:お店側では順次空室確認を行っていますが、次回更新予定日までに空室確認が行えない場合には、この物件情報は自動的に削除されます。
ハイグランド中井坂Ⅱ ***号室の賃貸物件部屋概要
家賃 |
14.5万円
初期費用を |
|---|---|
共益費 |
3,000円
入居可能時期 |
敷金/礼金 |
1ヶ月 / 1ヶ月 |
保証金/ |
- / - |
最寄駅 |
|
所在地 |
神奈川県横浜市都筑区東山田 |
部屋番号 |
***号室 |
間取り |
3LDK(和6・洋6・洋6・LDK14) |
専有面積 |
80.58㎡ |
築年数 |
2000年12月(築26年) |
階数 |
1階部分(地上2階建) |
方位・位置 |
南東 / 角部屋 |
物件種別 |
賃貸一戸建て |
構造 |
木造 |
駐車場 |
空有 賃料に含む |
小学校学区 |
東山田小学校 |
中学校学区 |
東山田中学校 |
他の空き部屋 |
ー |
- 学区データについて
- ※学区データは必ずしも正確とは限りません。詳細に関しては最寄店舗または各自治体の教育委員会に必ずご確認ください。
ハイグランド中井坂Ⅱ ***号室の特徴
-
一人暮らしに人気の設備

-
カップルに人気の設備

-
家族に人気の設備

-
夫婦に人気の設備

-
三世代で人気の設備

-
外で子どもと遊びたい

-
雨の日でも洗濯したい

-
洋室で暮らしたい

-
推し活グッズを飾りたい

-
ガーデニングが好き

契約条件
この物件は、2人入居もご契約できます。
室内設備
カウンターキッチンが備え付けられています。 お風呂とトイレは別です。お風呂には、追い焚き機能が備わっています。 女性に嬉しい設備の独立した洗面化粧台があります。 洗濯に便利な設備として、室内洗濯機置場があります。
居室状況
居室には、和室の居室もあり、子育てやリラックススペースとしての利用もできます。 お部屋の床は、フローリングとなっています。収納スペースとして、基本的な居室にクローゼットを設置、玄関にはシューズボックスがあります。
建物設備共用部分
居室外の専有スペースとして、洗濯物を干すなどの用途として利用できるバルコニーがあります。 駐車場があり、無料で利用することができます。駐輪場が利用できます。
周辺施設
この物件の学区は、東山田小学校区・東山田中学校区です。
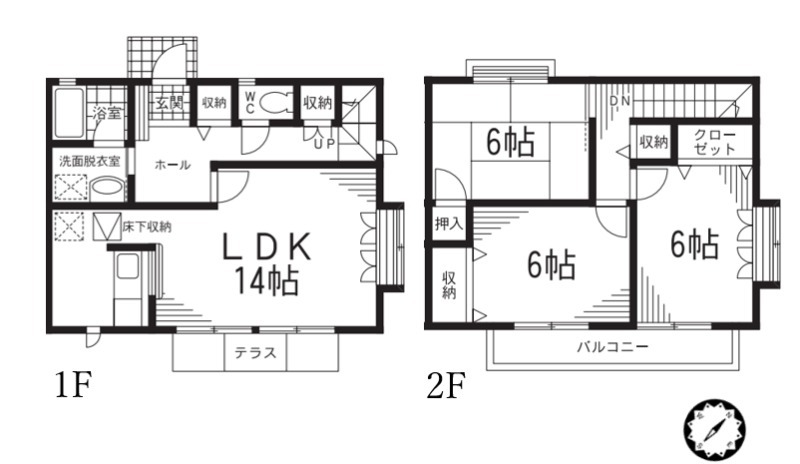
ハイグランド中井坂Ⅱ ***号室の間取り
間取り:3LDK
間取詳細:3LDK(和6・洋6・洋6・LDK14)
専有面積:80.58㎡
方位:南東
部屋位置:角部屋
ハイグランド中井坂Ⅱ ***号室の設備
キッチン
カウンターキッチン
バス・トイレ
バス・トイレ別
追い焚き
独立洗面台
収納
クローゼット
シューズボックス
バルコニー
バルコニー
ルーフバルコニー
室内設備
フローリング
室内洗濯機置場
和室あり
位置・立地
1階
角部屋
インフラ
インターネット可
CATV
都市ガス
建物設備
駐輪場
入居条件
2人入居可
オンライン相談可
ライフステージ
一人暮らしに人気の設備
カップルに人気の設備
家族に人気の設備
夫婦に人気の設備
三世代で人気の設備
こだわり
外で子どもと遊びたい
雨の日でも洗濯したい
洋室で暮らしたい
趣味
推し活グッズを飾りたい
ガーデニングが好き
お得な条件
駐車場無料
ハイグランド中井坂Ⅱ ***号室の賃貸契約情報
毎月支払う |
家賃14.5万円/月共益費3,000円/月 |
|---|---|
初期費用 |
敷金1ヶ月 (14.5万円)礼金1ヶ月 (14.5万円)保証金-敷引き償却金- |
更新料 |
145,000円 |
鍵交換費用 |
33,000円 |
室内清掃費用 |
- |
防災対策ボックス |
14,300円 |
駐車場料金 |
空有 賃料に含む |
損保・ |
借家賠付きの火災保険にご加入いただきます。 |
保証会社 |
加入要 保証会社利用料:初回保証料総賃料の50%、毎月月額総賃料の1% |
契約期間 |
2年 |
入居可能日 |
2026年05月下旬 |
フリーレント期間 |
- |
取引形態 |
一般媒介 |
備考 |
鍵交換代 33000円 月額:入居者総合補償サービス 2750円 初期:防災対策ボックス 14300円 |
ハイグランド中井坂Ⅱ ***号室の建物情報
建物名称 |
ハイグランド中井坂Ⅱ |
|---|---|
最寄駅 |
|
所在地 |
神奈川県横浜市都筑区東山田 |
階層 |
1階部分(地上2階建) |
構造 |
木造 |
築年数 |
2000年12月(築26年) |
駐車場 |
空有 賃料に含む |
小学校学区 |
東山田小学校 |
中学校学区 |
東山田中学校 |
- 学区データについて
- ※学区データは必ずしも正確とは限りません。詳細に関しては最寄店舗または各自治体の教育委員会に必ずご確認ください。
無料この物件に問い合わせ
- ハイグランド中井坂Ⅱ ***号室

-
14.5万円
(共益費
3,000円)
- 敷
- 1ヶ月
- 礼
- 1ヶ月
- 保
- -
- 償
- -
ハイグランド中井坂Ⅱ ***号室の物件のお問い合わせ先・取り扱い店舗
ハウスコム 鷺沼店
- アクセス
-
東急田園都市線「鷺沼駅」徒歩2分
- 住所
- 〒216-0004 神奈川県川崎市宮前区鷺沼3丁目1−26 増美屋ビル 1階
- 営業時間
- 10:00~18:00
- 定休日
- なし
- 営業エリア
- 川崎市宮前区,川崎市高津区,横浜市緑区,横浜市都筑区,横浜市青葉区
- 取引態様
- 賃貸仲介業


















