レオパレスKAWAGUCHI1 102号室(1階/2DK)の賃貸物件(賃貸アパート)
神奈川県秦野市にあるレオパレスKAWAGUCHI1 102号室はバルコニー、ルーフバルコニー、エアコン、2人入居可、即入居可などが特徴です。最寄り駅の小田急小田原線秦野駅から徒歩21分です。レオパレスKAWAGUCHI1 102号室の詳細はハウスコム 秦野店までお気軽にお問い合わせください!
情報更新日:
次回更新予定日:
※次回更新予定日について:お店側では順次空室確認を行っていますが、次回更新予定日までに空室確認が行えない場合には、この物件情報は自動的に削除されます。
レオパレスKAWAGUCHI1 102号室の賃貸物件部屋概要
家賃 |
5.6万円
初期費用を |
|---|---|
共益費 |
5,000円
入居可能時期 |
敷金/礼金 |
- / - |
保証金/ |
- / - |
最寄駅 |
|
所在地 |
神奈川県秦野市ひばりケ丘 |
部屋番号 |
102号室 |
間取り |
2DK(洋6・洋4.5・LDK10) |
専有面積 |
39.74㎡ |
築年数 |
1997年9月(築29年) |
階数 |
1階部分(地上2階建) |
方位・位置 |
南 / その他 |
物件種別 |
賃貸アパート |
構造 |
木造 |
駐車場 |
7,150円 |
小学校学区 |
本町小学校 |
中学校学区 |
本町中学校 |
他の空き部屋 |
202号室 |
- 学区データについて
- ※学区データは必ずしも正確とは限りません。詳細に関しては最寄店舗または各自治体の教育委員会に必ずご確認ください。
レオパレスKAWAGUCHI1 102号室の特徴
契約条件
この物件は、2人入居もご契約できます。 敷金と礼金が無料なため、初期費用が比較的安くなる傾向にあります。
室内設備
洗濯に便利な設備として、室内洗濯機置場があります。
居室状況
エアコンが設置されています。 収納スペースとして、玄関にはシューズボックスがあります。
建物設備共用部分
居室外の専有スペースとして、洗濯物を干すなどの用途として利用できるバルコニーがあります。
周辺施設
この物件の学区は、本町小学校区・本町中学校区です。
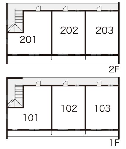
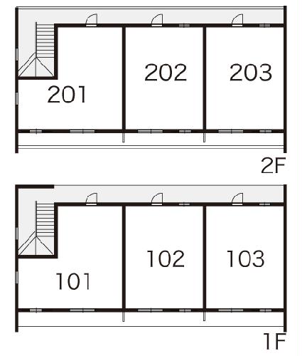
レオパレスKAWAGUCHI1 102号室の間取り
間取り:2DK
間取詳細:2DK(洋6・洋4.5・LDK10)
専有面積:39.74㎡
方位:南
部屋位置:その他
レオパレスKAWAGUCHI1 102号室の設備
収納
シューズボックス
バルコニー
バルコニー
ルーフバルコニー
室内設備
エアコン
室内洗濯機置場
位置・立地
1階
南向き
入居条件
2人入居可
即入居可
ライフステージ
カップルに人気の設備
家族に人気の設備
夫婦に人気の設備
三世代で人気の設備
こだわり
外で子どもと遊びたい
雨の日でも洗濯したい
寝るためだけの部屋
趣味
ガーデニングが好き
レオパレスKAWAGUCHI1 102号室の賃貸契約情報
毎月支払う |
家賃5.6万円/月共益費5,000円/月 |
|---|---|
初期費用 |
敷金-礼金-保証金-敷引き償却金- |
更新料 |
- |
鍵交換費用 |
16,500円 |
室内清掃費用 |
49,500円 |
抗菌施工(任意) |
23,760円 |
駐車場料金 |
7,150円 |
損保・ |
借家賠付きの火災保険にご加入いただきます。 |
保証会社 |
加入要 保証会社利用料:保証料:49190円(契約内容により100~120%で変動有)※記載金額は120%の場合 |
契約期間 |
- |
入居可能日 |
即入居可 |
フリーレント期間 |
- |
取引形態 |
一般媒介 |
備考 |
退去時清掃費49500円、抗菌施工(任意)18040円から23760円(税込)/環境維持費550円/月、更新手数料16500円/2年(税込)/退去時清掃費:49500円(税込) |
レオパレスKAWAGUCHI1 102号室の建物情報
建物名称 |
レオパレスKAWAGUCHI1 |
|---|---|
最寄駅 |
|
所在地 |
神奈川県秦野市ひばりケ丘 |
階層 |
1階部分(地上2階建) |
構造 |
木造 |
築年数 |
1997年9月(築29年) |
駐車場 |
7,150円 |
小学校学区 |
本町小学校 |
中学校学区 |
本町中学校 |
- 学区データについて
- ※学区データは必ずしも正確とは限りません。詳細に関しては最寄店舗または各自治体の教育委員会に必ずご確認ください。
無料この物件に問い合わせ
- レオパレスKAWAGUCHI1 102号室

-
5.6万円
(共益費
5,000円)
- 敷
- -
- 礼
- -
- 保
- -
- 償
- -
レオパレスKAWAGUCHI1 102号室の物件のお問い合わせ先・取り扱い店舗
ハウスコム 秦野店
駅徒歩1分以内
駅徒歩3分以内
駅徒歩5分以内
- アクセス
-
小田急小田原線「秦野駅」徒歩1分
- 住所
- 〒257-0034 神奈川県秦野市大秦町1−1 小田急マルシェ秦野 2階
- 営業時間
- 10:00~18:00
- 定休日
- 水曜日
- 営業エリア
- 秦野市 伊勢原市 平塚市 南足柄市 足柄上郡中井町 開成町 松田町 大井町 足柄上郡二宮町
- 取引態様
- 賃貸仲介業
お問い合わせNo. HC5-391964-102-0185













