ビレッジハウス下島第二2号棟 0101号室(1階/2DK)の賃貸物件(賃貸マンション)
神奈川県平塚市にあるビレッジハウス下島第二2号棟 0101号室はバス・トイレ別、バルコニー、エアコン、角部屋、2人入居可などが特徴です。最寄り駅の小田急小田原線伊勢原駅からバスで12分、城島小学校前から徒歩7分です。ビレッジハウス下島第二2号棟 0101号室の詳細はハウスコム 平塚店までお気軽にお問い合わせください!
情報更新日:
次回更新予定日:
※次回更新予定日について:お店側では順次空室確認を行っていますが、次回更新予定日までに空室確認が行えない場合には、この物件情報は自動的に削除されます。
ビレッジハウス下島第二2号棟 0101号室の賃貸物件部屋概要
家賃 |
4.91万円
初期費用を |
|---|---|
共益費 |
-
入居可能時期 |
敷金/礼金 |
- / - |
保証金/ |
- / - |
最寄駅 |
|
所在地 |
神奈川県平塚市下島 |
部屋番号 |
0101号室 |
間取り |
2DK |
専有面積 |
38.46㎡ |
築年数 |
1975年5月(築51年) |
階数 |
1階部分(地上5階建) |
方位・位置 |
南 / 角部屋 |
物件種別 |
賃貸マンション |
構造 |
RC |
駐車場 |
6,600円 |
小学校学区 |
城島小学校 |
中学校学区 |
大住中学校 |
他の空き部屋 |
ー |
- 学区データについて
- ※学区データは必ずしも正確とは限りません。詳細に関しては最寄店舗または各自治体の教育委員会に必ずご確認ください。
ビレッジハウス下島第二2号棟 0101号室の特徴
契約条件
この物件は、2人入居もご契約できます。 敷金と礼金が無料なため、初期費用が比較的安くなる傾向にあります。
室内設備
お風呂とトイレは別です。お風呂には、追い焚き機能が備わっています。
居室状況
エアコンが設置されています。
建物設備共用部分
居室外の専有スペースとして、洗濯物を干すなどの用途として利用できるバルコニーがあります。
周辺施設
この物件の学区は、城島小学校区・大住中学校区です。
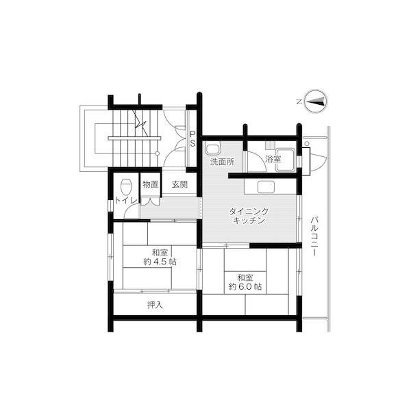
ビレッジハウス下島第二2号棟 0101号室の間取り
間取り:2DK
間取詳細:2DK
専有面積:38.46㎡
方位:南
部屋位置:角部屋
ビレッジハウス下島第二2号棟 0101号室の設備
バス・トイレ
バス・トイレ別
追い焚き
バルコニー
バルコニー
ルーフバルコニー
室内設備
エアコン
位置・立地
1階
角部屋
南向き
インフラ
インターネット可
プロパンガス
入居条件
2人入居可
ライフステージ
一人暮らしに人気の設備
カップルに人気の設備
家族に人気の設備
夫婦に人気の設備
三世代で人気の設備
こだわり
外で子どもと遊びたい
趣味
ガーデニングが好き
ビレッジハウス下島第二2号棟 0101号室の賃貸契約情報
毎月支払う |
家賃4.91万円/月共益費- |
|---|---|
初期費用 |
敷金-礼金-保証金-敷引き償却金- |
更新料 |
- |
鍵交換費用 |
- |
室内清掃費用 |
- |
退去時クリーニング費用 |
46,536円 |
駐車場料金 |
6,600円 |
損保・ |
借家賠付きの火災保険にご加入いただきます。 |
保証会社 |
|
契約期間 |
2年 |
入居可能日 |
2026年04月上旬 |
フリーレント期間 |
- |
取引形態 |
一般媒介 |
備考 |
- |
ビレッジハウス下島第二2号棟 0101号室の建物情報
建物名称 |
ビレッジハウス下島第二2号棟 |
|---|---|
最寄駅 |
|
所在地 |
神奈川県平塚市下島 |
階層 |
1階部分(地上5階建) |
構造 |
RC |
築年数 |
1975年5月(築51年) |
駐車場 |
6,600円 |
小学校学区 |
城島小学校 |
中学校学区 |
大住中学校 |
1/3 外観
- 学区データについて
- ※学区データは必ずしも正確とは限りません。詳細に関しては最寄店舗または各自治体の教育委員会に必ずご確認ください。
無料この物件に問い合わせ
- ビレッジハウス下島第二2号棟 0101号室

-
4.91万円
(共益費
-)
- 敷
- -
- 礼
- -
- 保
- -
- 償
- -
ビレッジハウス下島第二2号棟 0101号室の物件のお問い合わせ先・取り扱い店舗
ハウスコム 平塚店
駅徒歩3分以内
駅徒歩5分以内
土日営業
- アクセス
-
東海道本線(JR東日本)「平塚駅」北口徒歩2分
- 住所
- 〒254-0043 神奈川県平塚市紅谷町2−21
- 営業時間
- 10:00~18:00
- 定休日
- 水曜日
- 営業エリア
- 平塚市,茅ヶ崎市,秦野市、二宮町,伊勢原市,大磯町,寒川町,小田原市,
- 取引態様
- 賃貸仲介業
お問い合わせNo. HC5-3502268-0101-0018






















