プライムアーバン大崎 909号室(9階/1K)の賃貸物件(賃貸マンション)
東京都品川区にあるプライムアーバン大崎 909号室はガスコンロ、温水洗浄便座、TVモニタ付インターホン、都市ガス、オンライン内見可などが特徴です。最寄り駅の山手線大崎駅から徒歩5分です。プライムアーバン大崎 909号室の詳細はハウスコム 五反田店までお気軽にお問い合わせください!
情報更新日:
次回更新予定日:
※次回更新予定日について:お店側では順次空室確認を行っていますが、次回更新予定日までに空室確認が行えない場合には、この物件情報は自動的に削除されます。
プライムアーバン大崎 909号室の賃貸物件部屋概要
家賃 |
11.3万円
初期費用を |
|---|---|
共益費 |
6,000円
入居可能時期 |
敷金/礼金 |
1ヶ月 / 1ヶ月 |
保証金/ |
- / - |
最寄駅 |
|
所在地 |
東京都品川区大崎 |
部屋番号 |
909号室 |
間取り |
1K(洋6.5・K0) |
専有面積 |
21.75㎡ |
築年数 |
2004年2月(築23年) |
階数 |
9階部分(地上11階建) |
方位・位置 |
南東 / 角部屋 |
物件種別 |
賃貸マンション |
構造 |
RC |
駐車場 |
- |
小学校学区 |
芳水小学校 |
中学校学区 |
大崎中学校 |
他の空き部屋 |
ー |
- 学区データについて
- ※学区データは必ずしも正確とは限りません。詳細に関しては最寄店舗または各自治体の教育委員会に必ずご確認ください。
プライムアーバン大崎 909号室の特徴
セキュリティ
この物件の建物には、オートロックや宅配ボックスが設置されており、来客時には居室内のテレビモニターにて訪問者の顔を確認することができます。
室内設備
システムキッチンには、2つ以上のガスコンロが備え付けられています。 トイレは、温水洗浄便座機能付きになります。 洗濯に便利な設備として、室内洗濯機置場があります。浴室乾燥機も設置されているので、梅雨時の生乾き臭も比較的防ぐことができます。
居室状況
お部屋の床は、フローリングとなっており、エアコンが設置されています。 照明器具が備え付けられており、入居後すぐ生活が始められます。 収納スペースとして、基本的な居室にクローゼットがあります。
建物設備共用部分
居室外の専有スペースとして、洗濯物を干すなどの用途として利用できるバルコニーがあります。 建物の共用スペースに、日々の出入に便利なエレベーターや、急な外出や不在がちのご家庭の荷物受け取りに便利な宅配ボックスが設置されています。 駐輪場が利用できます。
周辺施設
この物件の学区は、芳水小学校区・大崎中学校区です。近くには、徒歩3分(203m)でセブンイレブン品川大崎3丁目店があります。
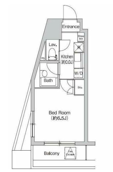
プライムアーバン大崎 909号室の間取り
間取り:1K
間取詳細:1K(洋6.5・K0)
専有面積:21.75㎡
方位:南東
部屋位置:角部屋
プライムアーバン大崎 909号室の設備
キッチン
システムキッチン
ガスコンロ
ガスコンロ二口以上
バス・トイレ
バス・トイレ別
浴室乾燥機
温水洗浄便座
玄関
TVモニタ付インターホン
オートロック
宅配ボックス
収納
クローゼット
バルコニー
バルコニー
ルーフバルコニー
室内設備
エアコン
フローリング
室内洗濯機置場
照明器具付
位置・立地
2階以上
角部屋
インフラ
インターネット可
CATV
CS
都市ガス
建物設備
エレベーター
駐輪場
入居条件
オンライン相談可
オンライン内見可
ライフステージ
一人暮らしに人気の設備
カップルに人気の設備
家族に人気の設備
夫婦に人気の設備
三世代で人気の設備
こだわり
外で子どもと遊びたい
雨の日でも洗濯したい
洋室で暮らしたい
趣味
ガーデニングが好き
プライムアーバン大崎 909号室の賃貸契約情報
毎月支払う |
家賃11.3万円/月共益費6,000円/月 |
|---|---|
初期費用 |
敷金1ヶ月 (11.3万円)礼金1ヶ月 (11.3万円)保証金-敷引き償却金- |
更新料 |
113,000円 |
鍵交換費用 |
36,300円 |
室内清掃費用 |
- |
駐車場料金 |
- |
損保・ |
借家賠付きの火災保険にご加入いただきます。 |
保証会社 |
加入要 保証会社利用料:初回保証料:賃料総額の40% 月々800円 |
契約期間 |
2年 |
入居可能日 |
2026年04月 |
フリーレント期間 |
- |
取引形態 |
一般媒介 |
備考 |
プライムアーバン大崎 909号室の建物情報
建物名称 |
プライムアーバン大崎 |
|---|---|
最寄駅 |
|
所在地 |
東京都品川区大崎 |
階層 |
9階部分(地上11階建) |
構造 |
RC |
築年数 |
2004年2月(築23年) |
駐車場 |
- |
小学校学区 |
芳水小学校 |
中学校学区 |
大崎中学校 |
- 学区データについて
- ※学区データは必ずしも正確とは限りません。詳細に関しては最寄店舗または各自治体の教育委員会に必ずご確認ください。
無料この物件に問い合わせ
- プライムアーバン大崎 909号室

-
11.3万円
(共益費
6,000円)
- 敷
- 1ヶ月
- 礼
- 1ヶ月
- 保
- -
- 償
- -
プライムアーバン大崎 909号室の物件のお問い合わせ先・取り扱い店舗
ハウスコム 五反田店
- アクセス
-
山手線「五反田駅」東口徒歩1分
都営浅草線「五反田駅」A6出口より徒歩1分
- 住所
- 〒141-0022 東京都品川区東五反田1丁目12−12 落合ビル 2F
- 営業時間
- 10:00~18:00
- 定休日
- 水曜日
- 営業エリア
- 品川区,大田区,港区,目黒区
- 取引態様
- 賃貸仲介業






































