ミモザハイツA 101号室(1階/2LDK)の賃貸物件(賃貸アパート)
神奈川県横浜市泉区にあるミモザハイツA 101号室はバス・トイレ別、追い焚き、温水洗浄便座、バルコニー、2人入居可などが特徴です。最寄り駅の相鉄いずみ野線弥生台駅から徒歩11分です。ミモザハイツA 101号室の詳細はハウスコム 戸塚店までお気軽にお問い合わせください!
情報更新日:
次回更新予定日:
※次回更新予定日について:お店側では順次空室確認を行っていますが、次回更新予定日までに空室確認が行えない場合には、この物件情報は自動的に削除されます。
ミモザハイツA 101号室の賃貸物件部屋概要
家賃 |
10.5万円
初期費用を |
|---|---|
共益費 |
3,000円
入居可能時期 |
敷金/礼金 |
- / 105,000円 |
保証金/ |
- / - |
最寄駅 |
|
所在地 |
神奈川県横浜市泉区新橋町 |
部屋番号 |
101号室 |
間取り |
2LDK(洋6.2・洋6.1・LDK12.1) |
専有面積 |
71.40㎡ |
築年数 |
2016年12月(築10年) |
階数 |
1階部分(地上2階建) |
方位・位置 |
東 / 角部屋 |
物件種別 |
賃貸アパート |
構造 |
木造 |
駐車場 |
8,800円 |
小学校学区 |
新橋小学校 |
中学校学区 |
岡津中学校 |
他の空き部屋 |
***号室 |
- 学区データについて
- ※学区データは必ずしも正確とは限りません。詳細に関しては最寄店舗または各自治体の教育委員会に必ずご確認ください。
ミモザハイツA 101号室の特徴
契約条件
この物件は、2人入居もご契約できます。 敷金が無料なため、初期費用が比較的安くなる傾向にあります。
セキュリティ
来客時には居室内のテレビモニターにて訪問者の顔を確認することができます。
室内設備
システムキッチンが備え付けられています。 お風呂とトイレは別です。お風呂には、追い焚き機能が備わっています。 トイレは、温水洗浄便座機能付きになります。 洗濯に便利な設備として、室内洗濯機置場があります。浴室乾燥機も設置されているので、梅雨時の生乾き臭も比較的防ぐことができます。
居室状況
お部屋の床は、フローリングとなっており、エアコンが設置されています。
建物設備共用部分
居室外の専有スペースとして、洗濯物を干すなどの用途として利用できるバルコニーがあります。
周辺施設
この物件の学区は、新橋小学校区・岡津中学校区です。
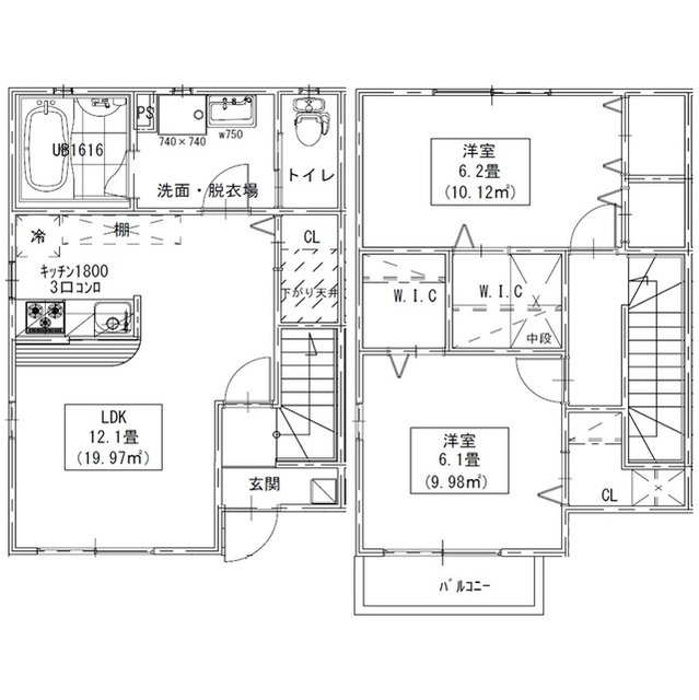
ミモザハイツA 101号室の間取り
間取り:2LDK
間取詳細:2LDK(洋6.2・洋6.1・LDK12.1)
専有面積:71.40㎡
方位:東
部屋位置:角部屋
ミモザハイツA 101号室の設備
キッチン
システムキッチン
バス・トイレ
バス・トイレ別
追い焚き
浴室乾燥機
温水洗浄便座
玄関
TVモニタ付インターホン
バルコニー
バルコニー
ルーフバルコニー
室内設備
エアコン
フローリング
室内洗濯機置場
位置・立地
1階
角部屋
インフラ
CATV
入居条件
2人入居可
ライフステージ
一人暮らしに人気の設備
カップルに人気の設備
家族に人気の設備
夫婦に人気の設備
三世代で人気の設備
こだわり
外で子どもと遊びたい
雨の日でも洗濯したい
洋室で暮らしたい
趣味
ガーデニングが好き
ミモザハイツA 101号室の賃貸契約情報
毎月支払う |
家賃10.5万円/月共益費3,000円/月 |
|---|---|
初期費用 |
敷金-礼金105,000円保証金-敷引き償却金- |
更新料 |
- |
鍵交換費用 |
- |
室内清掃費用 |
- |
駐車場料金 |
8,800円 |
損保・ |
借家賠付きの火災保険にご加入いただきます。 |
保証会社 |
加入要 保証会社利用料:株式会社木下グループ |
契約期間 |
- |
入居可能日 |
2026年05月中旬 |
フリーレント期間 |
- |
取引形態 |
一般媒介 |
備考 |
- |
ミモザハイツA 101号室の建物情報
建物名称 |
ミモザハイツA |
|---|---|
最寄駅 |
|
所在地 |
神奈川県横浜市泉区新橋町 |
階層 |
1階部分(地上2階建) |
構造 |
木造 |
築年数 |
2016年12月(築10年) |
駐車場 |
8,800円 |
小学校学区 |
新橋小学校 |
中学校学区 |
岡津中学校 |
- 学区データについて
- ※学区データは必ずしも正確とは限りません。詳細に関しては最寄店舗または各自治体の教育委員会に必ずご確認ください。
無料この物件に問い合わせ
- ミモザハイツA 101号室

-
10.5万円
(共益費
3,000円)
- 敷
- -
- 礼
- 105,000円
- 保
- -
- 償
- -
ミモザハイツA 101号室の物件のお問い合わせ先・取り扱い店舗
ハウスコム 戸塚店
- アクセス
-
東海道本線(JR東日本)「戸塚駅」徒歩1分
横須賀線「戸塚駅」徒歩1分
横浜市営地下鉄 ブルーライン「戸塚駅」徒歩1分
- 住所
- 〒244-0003 神奈川県横浜市戸塚区戸塚町16−1 トツカーナモール 2階
- 営業時間
- 10:00~18:00
- 定休日
- 水曜日
- 営業エリア
- 横浜市戸塚区・横浜市泉区・横浜市栄区・藤沢市北東部・鎌倉市北部
- 取引態様
- 賃貸仲介業






















